3161, 2920 Kingsview Boulevard Se, Airdrie, Alberta T4A 0A9

Listed for:
$24
0 beds
0 baths
Listed 200 days ago
3161, 2920 Kingsview Boulevard Se, Airdrie, Alberta T4A 0A9

View all 12 photos

Learn more about this property
Listing provided by:
Century 21 Masters
MLS® number:
A2231218
Agent:
Andre Aubut
*Indicates required field
Name is required
Email is required
Please enter a valid phone number (e.g., 416-111-1111).

About

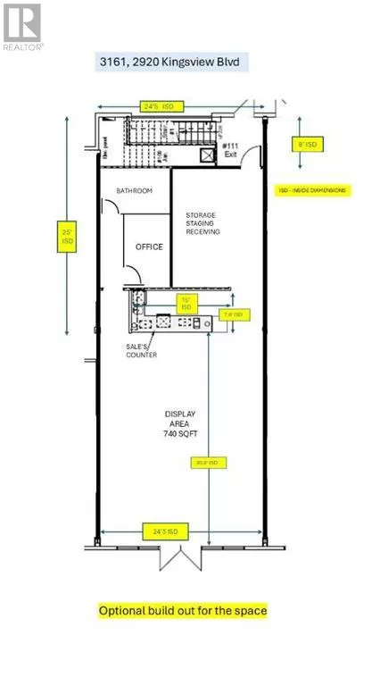
Main floor Commercial Bay for lease including 1475 sqft of open space. There are plenty of opportunities to complete a custom-built space for your business. This unit also comes complete with a washroom, great lighting and a large store front. The current zoning is IB-1 in this mixed-use complex with many classifications for your business including Business Support, Financial Services, Health Care Limited, Office, Public Assembly, Restaurant and many more. There is plenty of parking and great access off the new 40th Ave overpass. Monthly lease cost is Net lease $2950.00 + $263.88 condo fee + $275.00 prop tax =$3488.88 Plus gst, plus utilities, plus internet. (id:27476)

Property Highlights

MLS® Number
A2231218
Type
Industrial
Community Name
Kingsview Industrial Park
Maintenance Fee
230.00
Ownership Type
Bare Land Condo/Strata
Land Size
151.2 m2|0-4,050 sqft

Building

Square Footage
1475 sqft
Fireplace Present
No
Basement Type
Basement Features
Building Heating Type
Heating Fuel
Building Cooling Type

Location