4070 Sawgrass Street Nw, Airdrie, Alberta T4B 5V4

Listed for:
$668,000
3 beds
3 baths
Listed 43 days ago
House for rent: 4070 Sawgrass Street Nw, Airdrie, Alberta T4B 5V4

View all 3 photos

Learn more about this property
Listing provided by:
Manor Real Estate Ltd.
MLS® number:
A2256522
Agent:
Satya Meenavalli
*Indicates required field
Name is required
Email is required
Please enter a valid phone number (e.g., 416-111-1111).

About

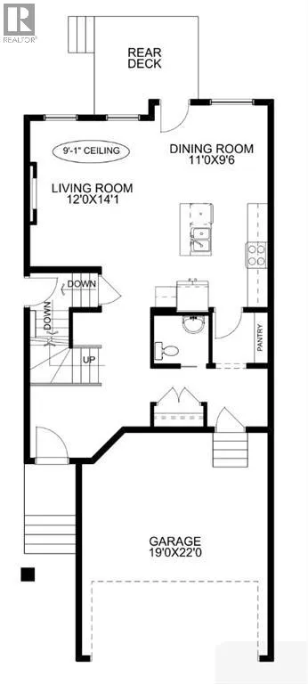
Welcome to the Ardboe by McKee Homes! This beautifully designed 1,800 sq ft Ardboe model by McKee Homes offers the perfect blend of style, function, and comfort in the community of Sawgrass Park. Featuring 3 spacious bedrooms, 2.5 bathrooms, and thoughtfully curated finishes, this home is ideal for families or those looking for extra space. Step inside to a bright and inviting open-concept main floor, centered around a cozy electric fireplace in the living room – perfect for relaxing or entertaining year-round. The gourmet kitchen flows seamlessly into the dining and living areas, offering a warm and welcoming atmosphere. Upstairs, you will find all three bedrooms, including a luxurious primary suite complete with a 5-piece ensuite, walk-in closet, and abundant natural light. A versatile lifestyle room on the upper level provides the perfect space for a home office, media room, or play area. A well-appointed main bathroom and a convenient laundry to complete the upper floor. Enjoy outdoor living on the rear deck, equipped with a gas line hookup – perfect for barbecues and evenings outside with family and friends.Don’t miss your chance to own this thoughtfully designed home in Sawgrass Park. Experience the quality and craftsmanship McKee Homes is known for – book your showing today! (id:27476)

Property Highlights

MLS® Number
A2256522
Type
Single Family
Community Name
Sawgrass Park
Ownership Type
Freehold
Land Size
297.3 m2|0-4,050 sqft
Parking Space Total
4

Building

Building Type
House
Storeys
2.00
Square Footage
1800 sqft
Bathrooms Total
3
Bedrooms Above Ground
3
Bedrooms Total
3
Amenities
Playground
Fireplace Present
Yes
Basement Type
Full (Unfinished)
Basement Features
Building Heating Type
Central heating
Heating Fuel
Natural gas
Building Cooling Type
None

Location

Street Spotlight - For sale