5302 50 Avenue, Athabasca, Alberta T9S 1G8

Listed for:
$749,900
0 beds
0 baths
Listed 63 days ago
Commercial Mix for rent: 5302 50 Avenue, Athabasca, Alberta T9S 1G8

View all 27 photos

About

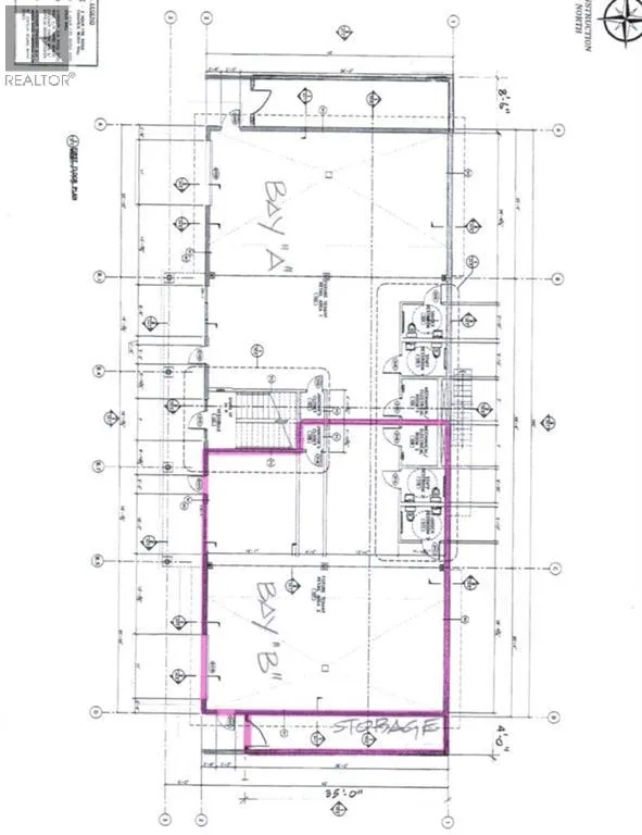
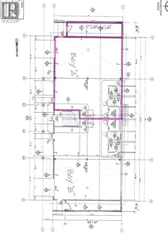
Prime location close to the downtown core with high visibility on Highway 2. Over 6,000 sq ft of flexible space, this structure was developed to accommodate any type of business. Whether you require maximum open space for large projects, warehouse storage, studio style or separated office space, this building can deliver. Already separated into 3 units, if you require more space the upper and lower units could easily be combined for separate work and office space. Unit A - 2128 sq ft, is already occupied by an established long term tenant, providing stable income. Unit B – 1870 sq ft, ground level, has a finished front office space, back work area is mainly open with kitchen, 2 private bathrooms and utility. Unit C – 1967 sq ft, upper level, is a wide open, versatile space with a wall of windows facing the Athabasca River, creating a pleasant environment full of natural light. Private bathroom and utility. Could easily be sectioned into closed stations for privacy. With the prime highway frontage, the second level has an advantage of reduced road noise, and private balcony that’s only accessible from inside the unit. Large overhead doors on the ground level units provide easy access for vehicles or deliveries, or if not required still offer tons of natural light. Units A and C have central air conditioning. Raise the bar, this exceptional building will attract clients, and keep them wanting to come back. Seller is motivated and will consider trades for land or residential real estate. (id:27476)

Property Highlights

MLS® Number
A2282381
Type
Other
Community Name
Athabasca Town
Land Size
12000 sqft|10,890 - 21,799 sqft (1/4 - 1/2 ac)

Building

Building Type
Commercial Mix
Square Footage
6365 sqft
Fireplace Present
No
Basement Type
Basement Features
Building Heating Type
Heating Fuel
Natural gas
Building Cooling Type

Location

Learn more about this property
Listing provided by:
3% Realty Progress
MLS® number:
A2282381
Agent:
Pamela Ergang
*Indicates required field
Name is required
Email is required
Please enter a valid phone number (e.g., 416-111-1111).