14, 831 2 Avenue, Bassano, Alberta T0J 0B0

Listed for:
$179,900
2 beds
1 baths
Listed 85 days ago
Mobile Home for rent: 14, 831 2 Avenue, Bassano, Alberta T0J 0B0

View all 14 photos

About

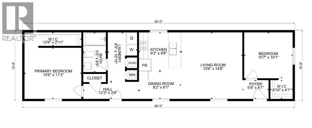
MODERN, EFFICIENT & AFFORDABLE! Brand new, quality built "Shelter" manufactured home will give you peace of mind, easy maintenance & budget conscious payments of $950 monthly OAC. Low maintenance home exterior has vinyl siding, upgraded skirting & vinyl windows. Bright open plan has kitchen, dining & living room centered between the bedrooms at either end of the home. Functional & beautiful kitchen has plenty of cabinets & appliances under warranty. You'll love the kitchen window with the south view. King sized primary bdrm has extra large walk-in closet. Laundry is quietly tucked away around the corner, out of sight of the main living area. Roomy 4 pc bath has easy care tub / shower combo & good storage. Partially fenced, the landscaping is a blank slate, waiting for your plans. Lot rent of $510 monthly. Bassano has excellent amenities with a friendly, small town feeling. Hospital, k-12 school, shopping, golf course, arena & more! You won't find a new home like this at a better price! Take the virtual tour & expect to be impressed. Park manager approval applies. Taxes are not yet assessed. QUICK POSSESSION POSSIBLE. (id:27476)

Property Highlights

MLS® Number
A2288380
Type
Single Family
Land Size
Mobile Home Pad (MHP)
Parking Space Total
2

Building

Building Type
Mobile Home
Storeys
1.00
Square Footage
960 sqft
Bathrooms Total
1
Bedrooms Above Ground
2
Bedrooms Total
2
Amenities
Airport, Golf Course, Park, Playground, Schools, Shopping, Water Nearby
Fireplace Present
No
Basement Type
Basement Features
Building Heating Type
Forced air
Heating Fuel
Building Cooling Type

Location

Learn more about this property
Listing provided by:
Royal LePage Community Realty
MLS® number:
A2288380
Agent:
Jolene Ledene Reimer
*Indicates required field
Name is required
Email is required
Please enter a valid phone number (e.g., 416-111-1111).