14 Vista Close, Blackfalds, Alberta T4M 0L3

Listed for:
$659,900
3 beds
3 baths
Listed 16 days ago
House for rent: 14 Vista Close, Blackfalds, Alberta T4M 0L3

View all 2 photos

Learn more about this property
Listing provided by:
Maxwell Real Estate Solutions Ltd.
MLS® number:
A2268213
Agent:
Andrew Mcwilliam
*Indicates required field
Name is required
Email is required
Please enter a valid phone number (e.g., 416-111-1111).

About

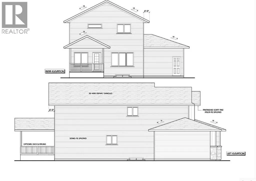
A brand new home by Loewen Legacy Homes available February 1st in desirable Valley Ridge!! The curb appeal is accented by the front attached Triple car garage & the covered front composite porch. Deck facing south is great for sunsets, quartz countertops, Bonus room upstairs as well as den/office on the main level. Close to Schools, Playgrounds, Abbey Centre, The All Star bike Park Blackfalds community park, Garage World, the Iron Ridge Campus, shopping and a quick access to the highway and QEII. (id:27476)

Property Highlights

MLS® Number
A2268213
Type
Single Family
Community Name
Valley Ridge
Ownership Type
Freehold
Land Size
5737 sqft|4,051 - 7,250 sqft
Parking Space Total
5

Building

Building Type
House
Storeys
2.00
Square Footage
1910 sqft
Bathrooms Total
3
Bedrooms Above Ground
3
Bedrooms Total
3
Amenities
Park, Playground, Schools
Exterior Finish
Vinyl siding
Fireplace Present
No
Basement Type
None
Basement Features
Building Heating Type
Forced air
Heating Fuel
Building Cooling Type
None

Location

Street Spotlight - For sale