Portion Of Ne 33 & Nw 34 College Drive E, Brooks, Alberta T1R 1C8

Listed for:
$2,834,000
0 beds
0 baths
Listed 60 days ago
Portion Of Ne 33 & Nw 34 College Drive E, Brooks, Alberta T1R 1C8

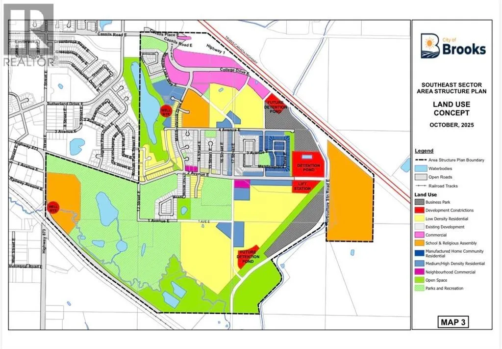
View all 15 photos

About

Prime 70.85 Acre Development Opportunity in Brooks. Seize this exceptional opportunity to develop 2 parcels totaling 70.85 acres of prime commercial, residential and multi-family land, strategically located on the south side of Highway 1 in the vibrant City of Brooks. Boasting Direct Control (DC) zoning, this property offers unparalleled flexibility, allowing for a wide variety of residential and commercial uses with a new Southeast Area Structure Plan now in place within the City of Brooks. Whether you envision a thriving mixed use community, commercial hub, or diverse residential development, these parcels are poised to accommodate your vision.Ideally situated near key amenities, including the Francophone School École Le Ruisseau, Medicine Hat College (Brooks Campus), and the established Meadowbrook residential neighborhood, this property is primed for growth. With its close proximity to Highway 1, it offers excellent visibility and accessibility, making it an attractive option for developers and investors.The surrounding area is experiencing new growth, presenting a strong market for both residential and commercial developments. Residential opportunities include single family homes, multi-family complexes, or a combination of both to cater to the needs of this thriving community. Additionally, the potential for commercial development ensures the creation of a well rounded and sustainable space.City of Brooks sewer lines run through this parcel.Explore the flexibility of Direct Control zoning and review the land-use bylaw and Southeast Area Structure Plan available in the supplement section of the listing for more details. Don’t miss out on this rare chance to shape the future of Brooks in a prime and expanding location! (id:27476)

Property Highlights

MLS® Number
A2286688
Type
Vacant Land
Ownership Type
Freehold
Land Size
70.85 ac|50 - 79 acres

Building

Fireplace Present
No
Basement Type
Basement Features
Building Heating Type
Heating Fuel
Building Cooling Type

Utilities

Water
None
Utility Sewer
No sewage system

Location

Learn more about this property
Listing provided by:
Royal LePage Community Realty
MLS® number:
A2286688
Agent:
Tracy Hazzard
*Indicates required field
Name is required
Email is required
Please enter a valid phone number (e.g., 416-111-1111).