7710 5 Street Se, Calgary, Alberta T2H 2L9

Listed for:
$10
0 beds
0 baths
Listed 221 days ago
Offices for rent: 7710 5 Street Se, Calgary, Alberta T2H 2L9

View all 8 photos

About

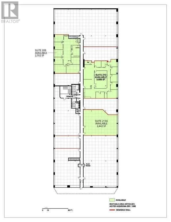
Looking for an office space but not the long commute to downtown? Glenmore Business Park is a central location with immediate access to and from Blackfoot Trail, Deerfoot Trail and Heritage Drive. This location offers office units FOR LEASE ranging from 1,460 SF to 4,047 SF. There is abundant street parking, unreserved parking stalls and reserved underground parking. Excellent nearby amenities including daycare, the Calgary Farmer's Market and Deerfoot Meadows. Public transit route 410 services the park. (id:27476)

Property Highlights

MLS® Number
A2191914
Type
Office
Community Name
East Fairview Industrial
Land Size
Unknown

Building

Building Type
Offices
Square Footage
4047 sqft
Fireplace Present
No
Basement Type
Basement Features
Building Heating Type
Heating Fuel
Building Cooling Type

Location

Learn more about this property
Listing provided by:
Real Broker
MLS® number:
A2191914
Agent:
Bryan Herman
*Indicates required field
Name is required
Email is required
Please enter a valid phone number (e.g., 416-111-1111).