4452 64 Avenue Se, Calgary, Alberta T2B 2B3

Listed for:
$12
0 beds
0 baths
Listed 32 days ago
4452 64 Avenue Se, Calgary, Alberta T2B 2B3

View all 39 photos

Learn more about this property
Listing provided by:
Century 21 Bravo Realty
MLS® number:
A2230726
Agent:
Jim Lee
*Indicates required field
Name is required
Email is required
Please enter a valid phone number (e.g., 416-111-1111).

About

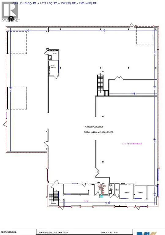
Rare opportunity to lease out a detached building (13,126 SF) situated on 2.79 Acres of land. This building has over 1 Acre+ of secured, fenced off yard/compound! High ceilings with two large overhead doors that open up to the secured compound. Inside offers 600 Amp, 600 Volt, 3 phase power, and large Make Up Air Unit to work on your fleet of vehicles. Rear shop space has a 530 SF mezzanine on top of the work/staff room across from the third Drive in door, along with multiple suspended gas heated rear heaters at various points. There is a 1 Tonne Jib Crane, and a 3 tonne Overhead Crane currently in place, that the new tenant may PURCHASE off the existing tenant or can be removed if not required. Multiple offices in the front space with washroom (one in the rear shop space), and a second floor office area (1,375SF) with bathroom which is perfect for accounting or management office. Ample parking with 9 stalls at the front of the building and even more at the side of the building and lots of street parking. This building is able to be demise able into two units (8,060/5,066 SF) as there are two separate front entry doors. Close to 52nd Street, Barlow and other access roads. Landlord incentives available depending on length of lease signed/negotiated. (id:27476)

Property Highlights

MLS® Number
A2230726
Type
Industrial
Community Name
Foothills
Land Size
2.79 ac|2 - 4.99 acres

Building

Square Footage
13126 sqft
Fireplace Present
No
Basement Type
Basement Features
Building Heating Type
Heating Fuel
Building Cooling Type

Location