13, 10099 15 Street Ne, Calgary, Alberta T3J 0T7

Listed for:
$12
0 beds
0 baths
Listed 200 days ago
13, 10099 15 Street Ne, Calgary, Alberta T3J 0T7

View all 10 photos

Learn more about this property
Listing provided by:
RE/MAX House of Real Estate
MLS® number:
A2230957
Agent:
Ilya Raykhlin
*Indicates required field
Name is required
Email is required
Please enter a valid phone number (e.g., 416-111-1111).

About

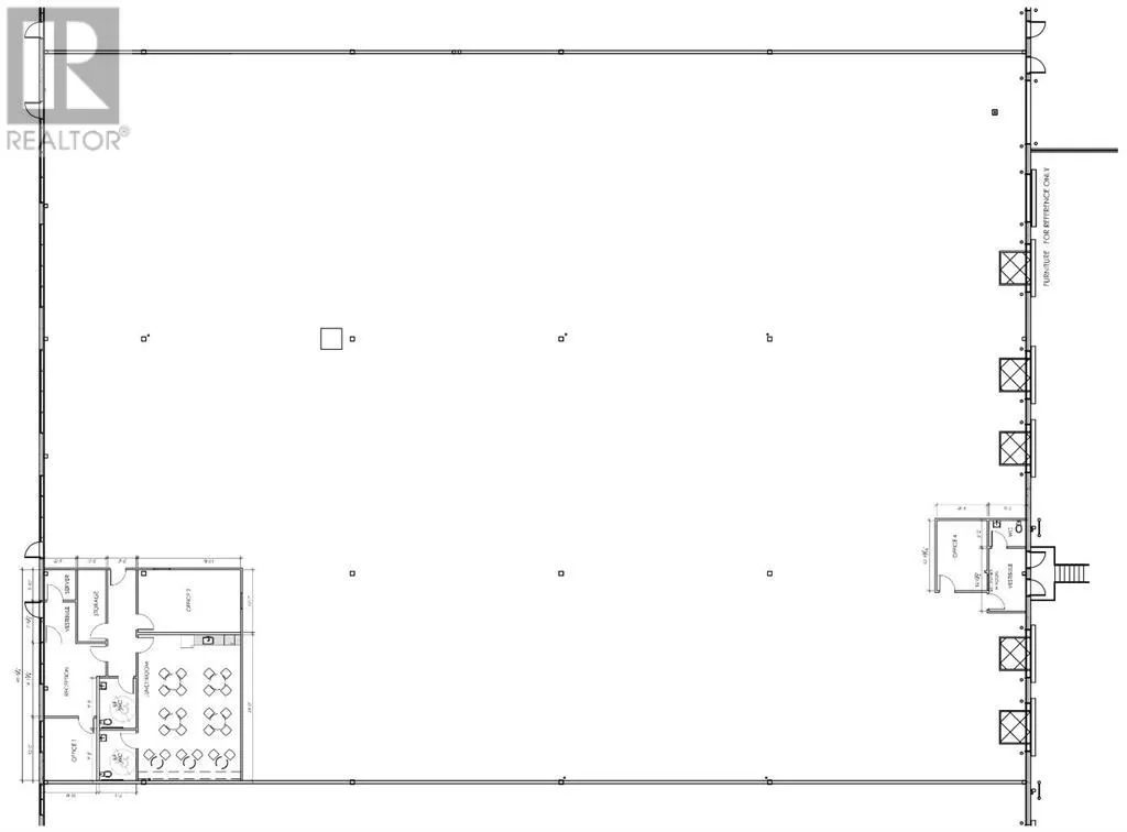
Rare and immediate opportunity for a long-term sublease in a modern industrial building close to Deerfoot Trail and the Calgary Airport. The bay measures 26,736 square feet, of which 1,680 square feet is office and 25,056 square feet is warehouse area. The Net Rent is far below the current market rate for newer warehouse properties in the NE, particularly given the highly desirable features of this unit which also include dock and drive-in loading doors, LED lighting on motion sensors, charging area for forklifts, an extremely high electrical supply, and hydraulic dock levelers. Sublease term expires May 31, 2030. Operating Costs for 2025 are $6.38 per square foot. AUTOMOTIVE AND RECREATIONAL USES WILL NOT BE CONSIDERED. (id:27476)

Property Highlights

MLS® Number
A2230957
Type
Industrial
Community Name
Stoney 2
Land Size
Unknown

Building

Square Footage
26736 sqft
Fireplace Present
No
Basement Type
Basement Features
Building Heating Type
Heating Fuel
Building Cooling Type

Location