1832 17 Avenue Nw, Calgary, Alberta t2m 0s2

Listed for:
$3,150,000
0 beds
0 baths
Listed 277 days ago
Multi-Family for rent: 1832 17 Avenue Nw, Calgary, Alberta t2m 0s2

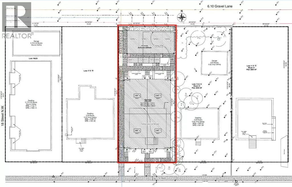
View all 8 photos

About

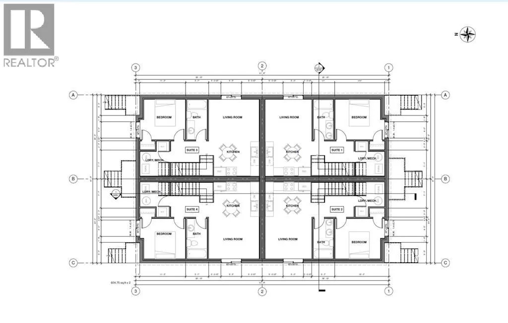
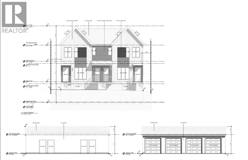
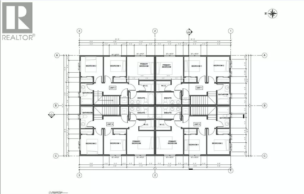
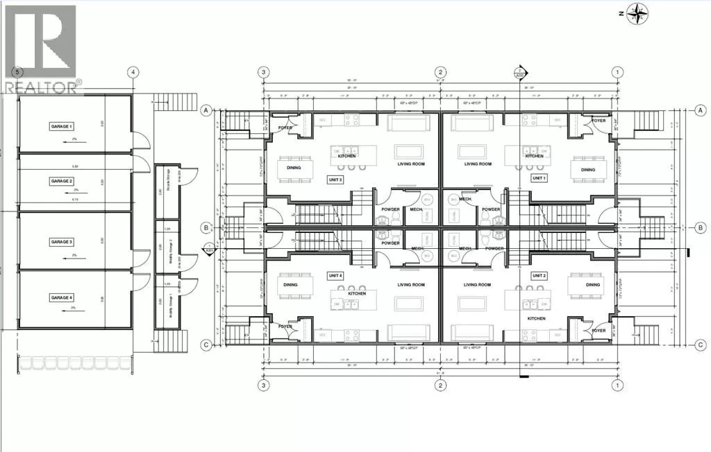
Enhance your real estate portfolio with this premier new construction rental development in Capitol Hill, one of Calgary’s most desirable inner-city communities. Scheduled for completion in the end of 2026, this purpose-built investment property consists of two buildings featuring a total of eight rental suites. Each building includes a spacious upper unit with three bedrooms and 2.5 bathrooms, as well as a well-appointed lower unit offering one bedroom with kitchen and full bathroom. A four-car detached garage with lane access provides added convenience and tenant appeal. Strategically located near downtown Calgary, 17th Avenue, parks, transit, and shopping, the property is ideally positioned to attract quality tenants and command above-average rents. Investors will appreciate the thoughtful design, superior construction, and long-term rental potential of these townhomes.The development is distinguished by its low-maintenance Hardy board exterior, high-efficiency HVAC systems, and durable finishes throughout—ensuring reduced operating costs and long-term durability. These modern, well-designed units are tailor-made for consistent cash flow and minimal upkeep. With estimated rents of $2,850 for upper suites and $1,450 for lower units Whether you're a seasoned investor or looking to diversify your holdings, this exceptional income-generating property offers the perfect blend of location, quality, and financial performance. For more information, contact us and take the next step toward securing a high-performing asset in Calgary’s thriving rental market. (id:27476)

Property Highlights

MLS® Number
A2236306
Type
Multi-family
Community Name
Capitol Hill
Ownership Type
Freehold
Land Size
557 m2|4,051 - 7,250 sqft
Parking Space Total
4

Building

Building Type
Multi-Family
Square Footage
4462 sqft
Fireplace Present
No
Basement Type
Basement Features
Building Heating Type
Heating Fuel
Building Cooling Type

Location

Learn more about this property
Listing provided by:
CIR Realty
MLS® number:
A2236306
Agent:
Wei Liao
*Indicates required field
Name is required
Email is required
Please enter a valid phone number (e.g., 416-111-1111).