41, 6915 Ranchview Drive Nw, Calgary, Alberta T3G 1R8

Listed for:
$359,500
4 beds
2 baths
Listed 4 days ago
Row / Townhouse for rent: 41, 6915 Ranchview Drive Nw, Calgary, Alberta T3G 1R8

View all 31 photos

Learn more about this property
Listing provided by:
RE/MAX House of Real Estate
MLS® number:
A2240382
Agent:
Kevin Haller
*Indicates required field
Name is required
Email is required
Please enter a valid phone number (e.g., 416-111-1111).

About

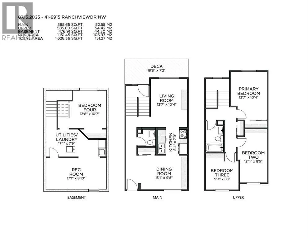
Welcome to this beautifully maintained 4-bedroom, 1.5-bathroom townhome located in the quiet and family-friendly community of Ranchlands Meadows. With over 1600 sq. ft. of living space, this bright and inviting home offers the perfect blend of function and comfort, ideal for first-time buyers, growing families, or anyone seeking a low-maintenance lifestyle in a convenient NW location. Step inside to find a spacious main floor featuring an airy living room filled with natural light, an updated kitchen with modern finishes, and a generous dining area—perfect for everyday meals or entertaining guests. A convenient half bath completes the main level. Upstairs, you'll find a large primary bedroom with a custom closet system, two additional bedrooms, and a well-appointed 4-piece bathroom. The fully developed lower level offers a versatile fourth bedroom, ideal as a home office, guest room, or creative studio. A large rec room/multi-purpose space and laundry area round out the basement level. The convenient back entrance leads out to the private yard with a deck and raised garden boxes—a rare find in a townhome. One assigned parking stall with power is included, with visitor parking nearby. Condo fees include access to a recreation center with amenities, adding value and convenience to your everyday life. Located minutes to Crowfoot Shopping Centre, Safeway, Co-op, and Costco. Nearby schools include: Ranchlands School, St. Rita School, and Robert Thirsk High School. Parks, playgrounds, off-leash dog areas, and tennis courts close by. Quick access to John Laurie Blvd, Crowchild Trail, and Stoney Trail for easy commuting. Short distance to C-Train stations and YMCA at Crowfoot. This turnkey townhome checks all the boxes—comfort, convenience, and community. Don’t miss your chance to call Ranchlands Meadows home! (id:27476)

Property Highlights

MLS® Number
A2240382
Type
Single Family
Community Name
Ranchlands
Maintenance Fee
443.55
Ownership Type
Condominium/Strata
Land Size
Unknown
Parking Space Total
1

Building

Building Type
Row / Townhouse
Storeys
2.00
Square Footage
1151 sqft
Bathrooms Total
2
Bedrooms Above Ground
3
Bedrooms Total
4
Amenities
Clubhouse Schools
Exterior Finish
Brick, Stucco, Wood siding
Fireplace Present
No
Basement Type
Full (Finished)
Basement Features
Building Heating Type
Forced air
Heating Fuel
Natural gas
Building Cooling Type
None

Location

Street Spotlight - For sale