59, 2318 17 Street Se, Calgary, Alberta T2G 5R5

Listed for:
$580,000
4 beds
3 baths
Listed 87 days ago
Row / Townhouse for rent: 59, 2318 17 Street Se, Calgary, Alberta T2G 5R5

View all 50 photos

Learn more about this property
Listing provided by:
Century 21 Bamber Realty LTD.
MLS® number:
A2257915
Agent:
Meghan Doig
*Indicates required field
Name is required
Email is required
Please enter a valid phone number (e.g., 416-111-1111).

About

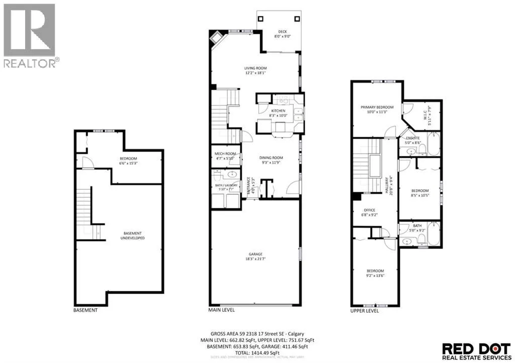
LOCATION, LOCATION, LOCATION!!! This rare 4 BEDROOM TOWNHOME in Inglewood Corners is a true standout, offering a DOUBLE ATTACHED GARAGE and BACKING DIRECTLY ONTO A PEACEFUL GREEN SPACE with walking paths that connect to a protected wildlife reserve and the Inglewood Bird Sanctuary. With no risk of future development behind you, the setting is PRIVATE, QUIET, and SERENE—yet you’re still just steps from the Bow River and only minutes from downtown, shops, dining, and everything you need.Inside, the main floor is both functional and inviting, featuring BAMBOO HARDWOOD FLOORS, excellent storage and closet space, and a comfortable living area that opens onto a PRIVATE DECK OVERLOOKING THE GREEN SPACE. Upstairs, you’ll find three LARGE BEDROOMS, including a spacious primary with a WALK-IN CLOSET and 4-piece ensuite, plus an additional 4-piece bathroom. A SEPARATE OFFICE/DEN provides valuable flexibility for remote work or study, making this upper level as practical as it is spacious.The PARTIALLY FINISHED BASEMENT adds even more potential, already hosting a fourth bedroom while leaving the rest of the space ready for your personal touch—whether that’s a gym, media room, or play area. Families will also appreciate that this property is part of the highly regarded school catchments for COLONEL WALKER SCHOOL (K-6), ELBOYA SCHOOL (7-9), and WESTERN CANADA HIGH SCHOOL (10-12), all offering excellent programs and reputations.In addition to the quiet green spaces at your doorstep, you’re close to COMMUNITY AMENITIES like tennis courts, an outdoor rink, and the Inglewood Aquatic Centre. The walking and bike paths behind the home connect seamlessly to Calgary’s extensive pathway system, leading you along the Bow River, into Pearce Estate Park, through the Inglewood Bird Sanctuary, and directly toward downtown. Add in the local shops, restaurants, and the vibrant cultural scene along 9th Avenue SE, and you’ll see why Inglewood is ONE OF CALGARY'S MOST SOUGHT-AFTER COMMUNITIES.W ith its RARE COMBINATION of SIZE, LOCATION, and SCHOOLS, this townhome is truly a special find—offering the best of Inglewood living in a home that’s ready to welcome its next owners. Contact your favourite REALTOR® today to book a showing! (id:27476)

Property Highlights

MLS® Number
A2257915
Type
Single Family
Community Name
Inglewood
Maintenance Fee
420.78
Ownership Type
Condominium/Strata
Land Size
Unknown
Parking Space Total
4

Building

Building Type
Row / Townhouse
Storeys
2.00
Square Footage
1414 sqft
Bathrooms Total
3
Bedrooms Above Ground
3
Bedrooms Total
4
Amenities
Park, Playground, Recreation Nearby, Schools, Shopping
Exterior Finish
Stucco, Vinyl siding
Fireplace Present
Yes
Basement Type
Full (Partially finished)
Basement Features
Building Heating Type
Forced air
Heating Fuel
Building Cooling Type
None

Location

Street Spotlight - For sale