2006 30 Avenue Sw, Calgary, Alberta T2T 1R2

Listed for:
$849,000
2 beds
1 baths
Listed 59 days ago
House for rent: 2006 30 Avenue Sw, Calgary, Alberta T2T 1R2

View all 19 photos

Learn more about this property
Listing provided by:
eXp Realty
MLS® number:
A2258215
Agent:
Jonida Halili
*Indicates required field
Name is required
Email is required
Please enter a valid phone number (e.g., 416-111-1111).

About

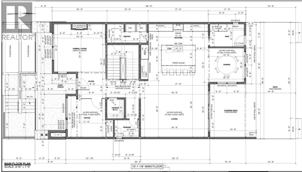
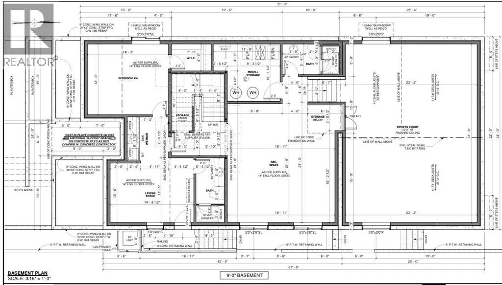
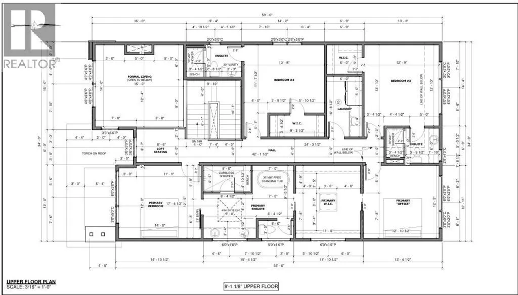
Prime Inner-City Opportunity in Marda Loop with Mountain Views!Attention builders and savvy investors! This is your chance to secure a premium 43’ x 128’ lot in one of Calgary’s most sought-after inner-city communities. Or if you are a buyer looking for a perfect lot to build your dream home. Located just steps from the heart of Marda Loop, this property offers endless potential in a vibrant, amenity-rich neighbourhood known for its boutique shops, trendy restaurants, and walkable lifestyle.Whether you're looking to build a luxury custom home or hold as a long-term investment, this lot delivers big on location and flexibility. Development permits (DP) are approved and full construction plans are available, saving you time and fast-tracking your next project. The lot size easily supports a large two-storey detached home (pontentially a three-storey depending on City review and approval) with plenty of room for a spacious backyard and triple garage.Opportunities like this don’t come around often, especially in a neighbourhood that continues to see strong demand and future growth. Build, invest, or hold. The choice is yours. But in Marda Loop, you’re always winning. (id:27476)

Property Highlights

MLS® Number
A2258215
Type
Single Family
Community Name
South Calgary
Ownership Type
Freehold
Land Size
487 m2|4,051 - 7,250 sqft

Building

Building Type
House
Storeys
1.00
Square Footage
999 sqft
Bathrooms Total
1
Bedrooms Above Ground
2
Bedrooms Total
2
Amenities
Park, Playground, Schools, Shopping
Exterior Finish
Stucco
Fireplace Present
Yes
Basement Type
Full (Partially finished)
Basement Features
Building Heating Type
Forced air
Heating Fuel
Building Cooling Type
None

Location

Street Spotlight - For sale