202, 1729 31 Street Sw, Calgary, Alberta T3C 1N2

Listed for:
$868,000
6 beds
5 baths
Listed 53 days ago
Row / Townhouse for rent: 202, 1729 31 Street Sw, Calgary, Alberta T3C 1N2

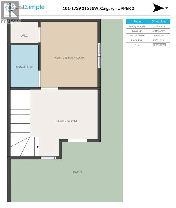
View all 11 photos

Learn more about this property
Listing provided by:
TrustPro Realty
MLS® number:
A2255993
Agent:
Snow Qu
*Indicates required field
Name is required
Email is required
Please enter a valid phone number (e.g., 416-111-1111).

About

Experience modern urban living in this brand-new townhouse in the highly desirable community of Shaganappi!Situated in a prime inner-city location, you’re just a 7-minute walk to EB Westbrook CTrain Station, providing quick access to downtown and beyond. Nearby, enjoy the Shaganappi Point Golf Course, as well as shopping and dining options including Walmart, Shoppers Drug Mart, McDonald’s, and more.Offering 1,621.3 sq.ft. of thoughtfully designed living space, this 6-bedroom, 4.5-bathroom home is currently under construction, with an estimated possession in November 2025 (negotiable). This is a rare opportunity to own a never-lived-in property in one of Calgary’s most convenient and established neighborhoods.Legal Secondary Suite | Rental Potential | Multi-Generational FlexibilityOne of the biggest highlights of this property is the fully legal secondary suite, offering separate entrance, kitchen, bathroom, laundry, and living area. This space can serve as an ideal setup for multi-generational living, a guest suite, or even a private home office or studio. The suite’s independent design ensures privacy and functionality for both you and your tenants. It comes with in floor heating in the basement.The main floor features a bright, open-concept layout where the kitchen, dining, and living areas flow seamlessly together — perfect for both relaxed daily living and entertaining guests. The home showcases luxury finishes throughout, including premium cabinetry, designer fixtures, and high-quality flooring that elevate the space.On the second floor, you’ll find three well-sized bedrooms and two full bathrooms, ideal for family members, guests, or a dedicated home office. The third floor is a private retreat dedicated to the primary suite and bonus room, complete with a walk-in closet and a spacious ensuite. This top-floor layout provides maximum privacy and an elevated sense of space.Enjoy outdoor living on the impressive 10’6” × 20’5” patio, perfect for summer gath erings and BBQs. The exterior design combines modern woodboard and stucco for stylish curb appeal. Low condo fees make ownership even more attractive.Don’t miss this chance to own a brand-new, luxury-finished townhouse with a legal secondary suite — combining rental potential, lifestyle flexibility, and long-term value — all within walking distance to transit, golf, shopping, and restaurants in the heart of Shaganappi.Contact your Realtor today for more details and to secure your new address! (Talk to your accountant about the GST new housing rebate.) (id:27476)

Property Highlights

MLS® Number
A2255993
Type
Single Family
Community Name
Shaganappi
Maintenance Fee
280.00
Ownership Type
Condominium/Strata
Land Size
Unknown
Parking Space Total
1

Building

Building Type
Row / Townhouse
Storeys
3.00
Square Footage
1621 sqft
Bathrooms Total
5
Bedrooms Above Ground
4
Bedrooms Total
6
Amenities
Golf Course, Park, Playground, Schools, Shopping
Exterior Finish
Stucco, Wood siding
Fireplace Present
No
Basement Type
Full
Basement Features
Separate entrance, Walk-up
Building Heating Type
Forced air, In Floor Heating
Heating Fuel
Building Cooling Type
None, See Remarks

Location

Street Spotlight - For sale