3919 19 Street Sw, Calgary, Alberta T2T 4Y1

Listed for:
$1,449,000
4 beds
5 baths
Listed 31 days ago
House for rent: 3919 19 Street Sw, Calgary, Alberta T2T 4Y1

View all 46 photos

Learn more about this property
Listing provided by:
eXp Realty
MLS® number:
A2264412
Agent:
Timothy Green
*Indicates required field
Name is required
Email is required
Please enter a valid phone number (e.g., 416-111-1111).

About

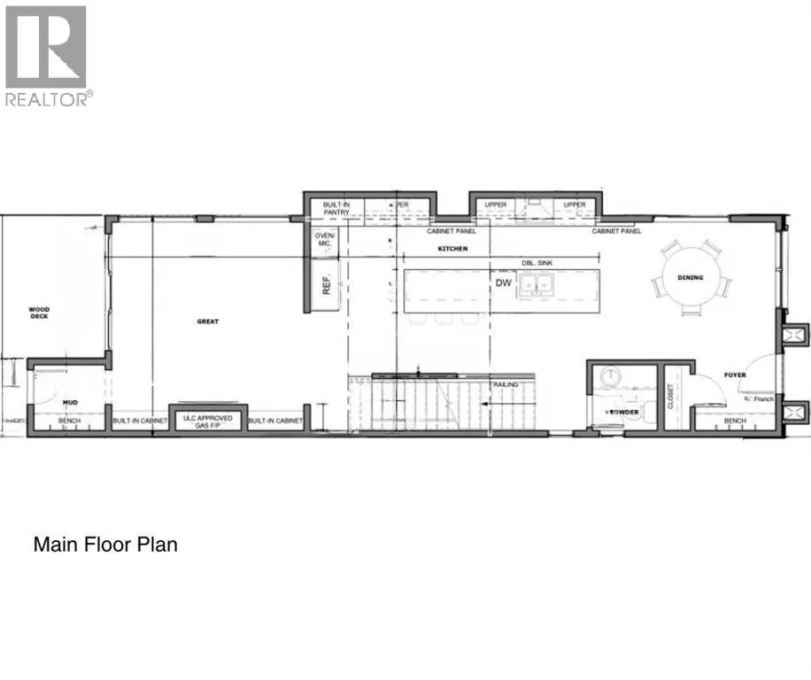
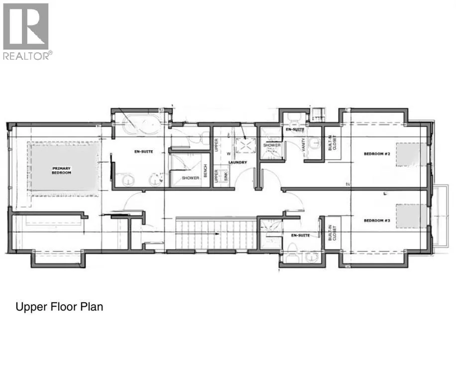
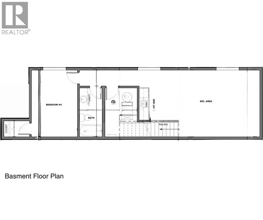
Welcome to 3919 19 Street SW, a beautifully designed home that perfectly blends modern elegance, comfort, and functionality. This thoughtfully crafted residence offers spacious living areas, high-end finishes, and an ideal layout for families and entertainers alike.The fully developed basement provides an inviting space for relaxation or hosting guests, featuring a large rec room, stylish wet bar, comfortable bedroom, and a full bathroom. On the main floor, the open-concept design showcases a sophisticated dining area and a gourmet kitchen with premium finishes, seamlessly flowing into a bright and airy living room complete with a cozy fireplace—the perfect spot to unwind. A well-appointed mudroom adds functionality and organization to the space.Upstairs, the primary suite is a true retreat, offering a spacious walk-in closet and a spa-inspired ensuite designed for ultimate relaxation. Two additional generously sized bedrooms, each with their own ensuite and closet, provide comfort and privacy for family or guests. The convenient upper-floor laundry ensures everyday ease.Situated in a highly desirable location, this exceptional home offers both luxury and convenience—a must-see for those seeking refined living in an incredible community! **Interior photos represent a home by the same builder with a similar layout, though finishes may vary.** (id:27476)

Property Highlights

MLS® Number
A2264412
Type
Single Family
Community Name
Altadore
Ownership Type
Freehold
Land Size
283.31 m2|0-4,050 sqft
Parking Space Total
2

Building

Building Type
House
Storeys
2.00
Square Footage
1971 sqft
Bathrooms Total
5
Bedrooms Above Ground
3
Bedrooms Total
4
Amenities
Park, Playground, Schools, Shopping
Fireplace Present
Yes
Basement Type
Full (Finished)
Basement Features
Building Heating Type
Forced air
Heating Fuel
Building Cooling Type
None

Location

Street Spotlight - For sale