2405 4 Avenue Nw, Calgary, Alberta T2N 0P3

Listed for:
$2,199,000
6 beds
6 baths
Listed 84 days ago
House for rent: 2405 4 Avenue Nw, Calgary, Alberta T2N 0P3

View all 7 photos

About

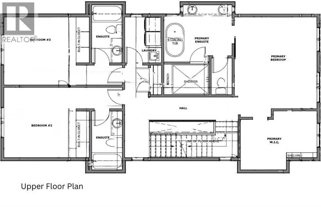
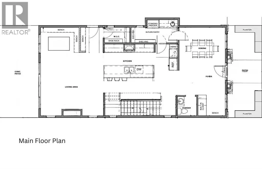
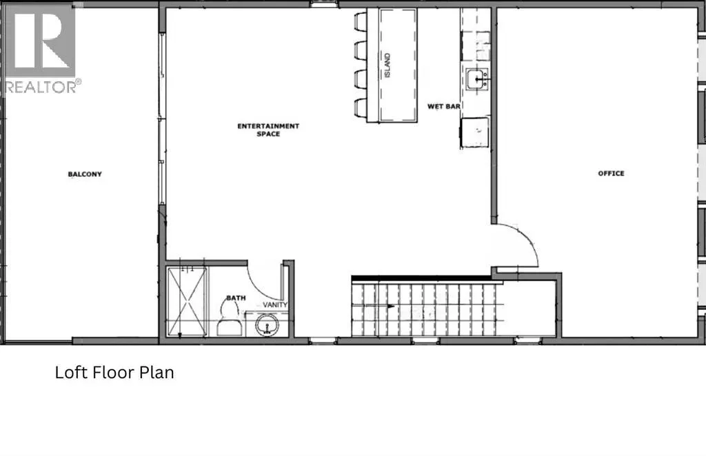
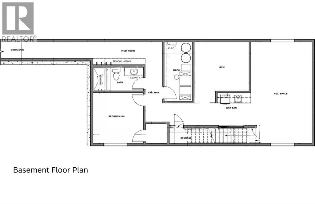
Welcome to luxury living in this stunning detached home offering over 3,000 sqft of thoughtfully designed space. From top to bottom, this residence blends elegance, functionality, and unique features that set it apart.The fully developed basement is an entertainer’s dream, complete with a spacious rec room, wet bar, bedroom, full bathroom, walk-in closet, and a private gym. A one-of-a-kind underground tunnel seamlessly connects the basement to the triple car garage, keeping you sheltered from the elements year-round.On the main floor, a grand foyer welcomes you into an open-concept layout featuring a formal dining room, hidden butler’s pantry, mudroom with a walk-in closet, and a cozy living room with a gas fireplace. A unique booth-style seating area adds charm, while the concrete patio extends the living space outdoors.The second floor is home to a spacious primary suite with a large walk-in closet and spa-like ensuite. Two additional bedrooms, each with their own ensuite, provide comfort and privacy, while the convenient upper-floor laundry completes the level.The third-floor loft elevates the home further, offering a versatile office space, wet bar with an island, entertainment area, bathroom, and a private balcony with beautiful views.A truly exceptional home in an unbeatable location—don’t miss your chance to own this one-of-a-kind masterpiece! (id:27476)

Property Highlights

MLS® Number
A2264372
Type
Single Family
Community Name
West Hillhurst
Ownership Type
Freehold
Land Size
403.27 m2|4,051 - 7,250 sqft
Parking Space Total
3

Building

Building Type
House
Storeys
3.00
Square Footage
3302 sqft
Bathrooms Total
6
Bedrooms Above Ground
4
Bedrooms Total
6
Amenities
Park, Schools, Shopping
Fireplace Present
Yes
Basement Type
Full (Finished)
Basement Features
Building Heating Type
Forced air
Heating Fuel
Building Cooling Type
None

Location

Learn more about this property
Listing provided by:
eXp Realty
MLS® number:
A2264372
Agent:
Timothy Green
*Indicates required field
Name is required
Email is required
Please enter a valid phone number (e.g., 416-111-1111).

Street Spotlight - For sale