306, 437 Alpine Avenue Sw, Calgary, Alberta T2Y 0Z8

Listed for:
$549,900
3 beds
3 baths
Listed 35 days ago
Row / Townhouse for rent: 306, 437 Alpine Avenue Sw, Calgary, Alberta T2Y 0Z8

View all 27 photos

Learn more about this property
Listing provided by:
CIR Realty
MLS® number:
A2266563
Agent:
Jessica D. Holmstrom
*Indicates required field
Name is required
Email is required
Please enter a valid phone number (e.g., 416-111-1111).

About

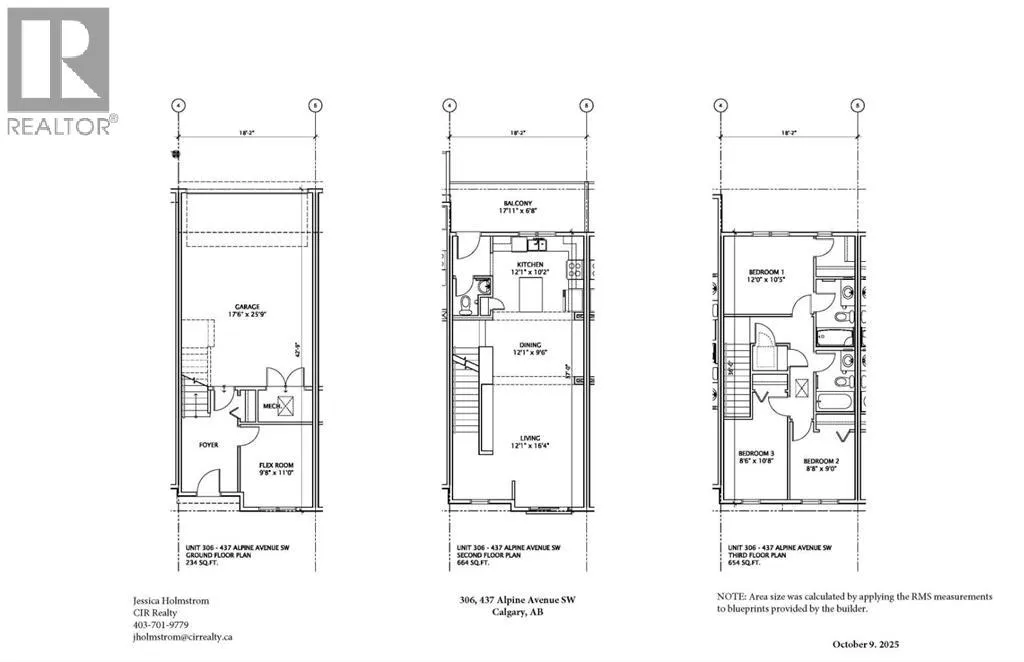
WHEN HOME DOUBLES AS YOUR OFFICE, IT NEEDS TO DO MORE THAN LOOK GOOD.This three-storey townhome in Woodland at Alpine Park was built for the work-from-anywhere crowd — people who want sunlight, flow, and an address that makes getting out of town as easy as logging off.On the ground floor, there’s room to breathe before the day starts. The front entry actually feels like one, not a bottleneck. The flex room catches the western light all afternoon — bright, quiet, and just far enough from the kitchen to feel like you’ve gone somewhere. It’s the kind of workspace that keeps you focused, then doubles as a yoga mat zone or creative corner when the laptop closes. And when it’s time to hit the road, the insulated double garage makes early-morning drives and weekend escapes effortless.Up one level, everything loosens up. The living area takes in the west exposure, keeping the space bright and grounded. At the back, the kitchen layers design and function — quartz counters, full-height backsplash, chimney hood, and an island that becomes whatever the day calls for. Step through to the 17’11” × 6’8” balcony, where coffee breaks, sunset wine, and mountain-planning sessions all feel equally at home.Upstairs, the primary bedroom keeps it calm with a walk-in closet and three-piece ensuite that make mornings feel easy. Two more bedrooms, a full bath, and upper-floor laundry keep everything moving without chaos.Finishes stay timeless: durable LVP, layered lighting, and a modern mix of exterior materials that give Woodland its clean architectural edge.And then there’s Alpine Park — Calgary’s southwest gateway to everywhere. Close enough to the city to keep your commute short, yet perfectly placed for spontaneous mountain runs. Possession is expected in mid-November, just in time to settle in before the snow flies. Come see why Woodland isn’t just where you live — it’s where your week finally finds balance. • PLEASE NOTE: Photos are of a finished Showhome of the same model – fit and finish may differ on finished spec home. Interior selections and floorplans shown in photos. (id:27476)

Property Highlights

MLS® Number
A2266563
Type
Single Family
Community Name
Alpine Park
Maintenance Fee
256.91
Ownership Type
Bare Land Condo/Strata
Land Size
109.36 m2|0-4,050 sqft
Parking Space Total
2

Building

Building Type
Row / Townhouse
Storeys
3.00
Square Footage
1552 sqft
Bathrooms Total
3
Bedrooms Above Ground
3
Bedrooms Total
3
Amenities
Golf Course, Park, Playground, Recreation Nearby, Schools, Shopping
Exterior Finish
Composite Siding, Stucco
Fireplace Present
No
Basement Type
None
Basement Features
Building Heating Type
Central heating, High-Efficiency Furnace, Forced air, Other
Heating Fuel
Natural gas
Building Cooling Type
None

Location

Street Spotlight - For sale