1511 23 Avenue Nw, Calgary, Alberta T2M 1V2

Listed for:
$2,979,000
0 beds
0 baths
Listed 110 days ago
Multi-Family for rent: 1511 23 Avenue Nw, Calgary, Alberta T2M 1V2

View all 8 photos

About

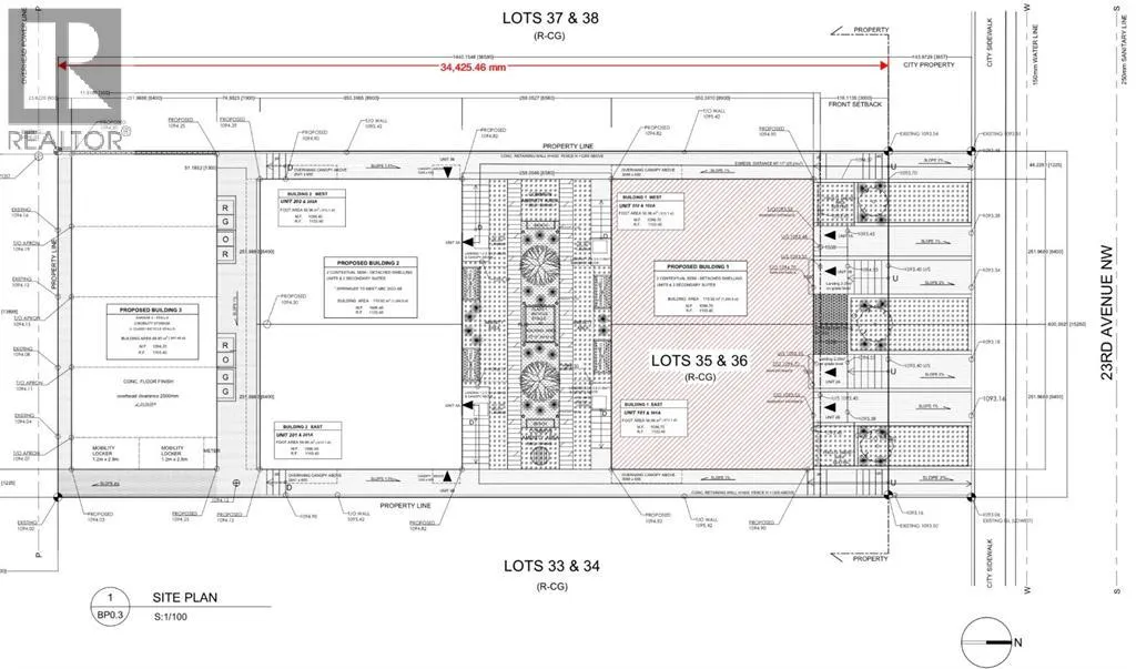
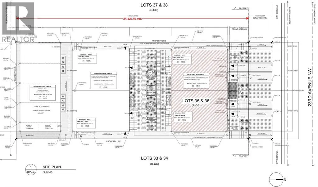
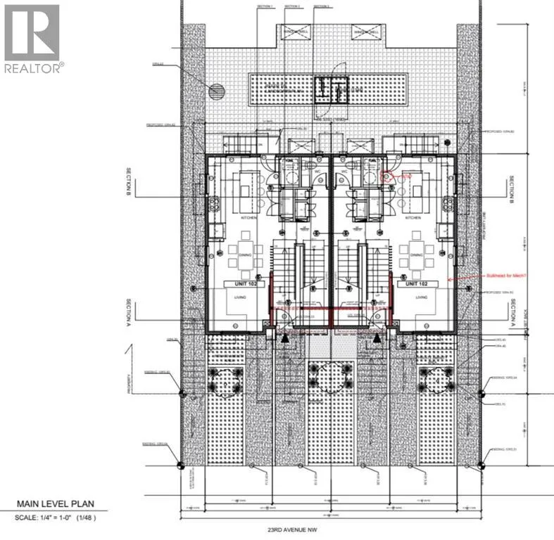
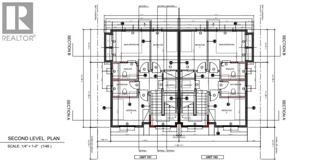
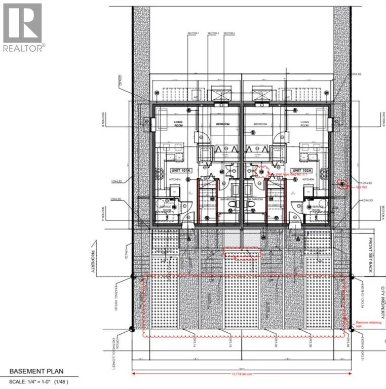
An exceptional opportunity to own a brand-new 4plex with 4 legal basement suites—a total of 8 self-contained rental units complete with 4 single garages, offering outstanding income potential and long-term value. Each basement suite has its own private entrance, ensuring privacy and flexibility for tenants.Showcasing modern architecture and premium finishes, this property stands out as one of Calgary’s most impressive multi-family builds. Perfectly located in Capitol Hill, just off 14th Street NW, it provides unbeatable access to SAIT, the University of Calgary, Confederation Park, hospitals, downtown, and major transit routes.The upper units each offer 3 bedrooms, 2 bathrooms, open-concept living and dining areas, and a spacious kitchen with high-end finishes. The basement suites feature 9-ft ceilings, 1 bedroom, 1 bathroom, and bright, functional layouts designed for comfort and efficiency. Built to a higher standard with superior construction quality and a unique drive-in design, this property combines form and function beautifully.Eligible for CMHC’s MLI Select program, offering potential low down payments and extended amortizations (subject to lender and CMHC approval). A rare chance to secure a turnkey 8-unit property in one of Calgary’s most desirable inner-city neighborhoods. Feel free to reach out for more details (id:27476)

Property Highlights

MLS® Number
A2267276
Type
Multi-family
Community Name
Capitol Hill
Ownership Type
Freehold
Land Size
Unknown
Parking Space Total
8

Building

Building Type
Multi-Family
Square Footage
5190 sqft
Fireplace Present
No
Basement Type
Basement Features
Building Heating Type
Heating Fuel
Building Cooling Type

Location

Learn more about this property
Listing provided by:
MaxWell Canyon Creek
MLS® number:
A2267276
Agent:
Sean Na
*Indicates required field
Name is required
Email is required
Please enter a valid phone number (e.g., 416-111-1111).