602 11 Avenue Ne, Calgary, Alberta T2E 0Z7

Listed for:
$3,250,000
0 beds
0 baths
Listed 10 days ago
Multi-Family for rent: 602 11 Avenue Ne, Calgary, Alberta T2E 0Z7

View all 6 photos

Learn more about this property
Listing provided by:
eXp Realty
MLS® number:
A2269012
Agent:
Jobanpreet Brar
*Indicates required field
Name is required
Email is required
Please enter a valid phone number (e.g., 416-111-1111).

About

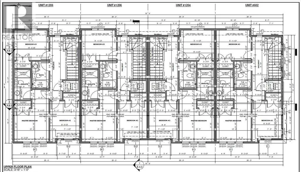
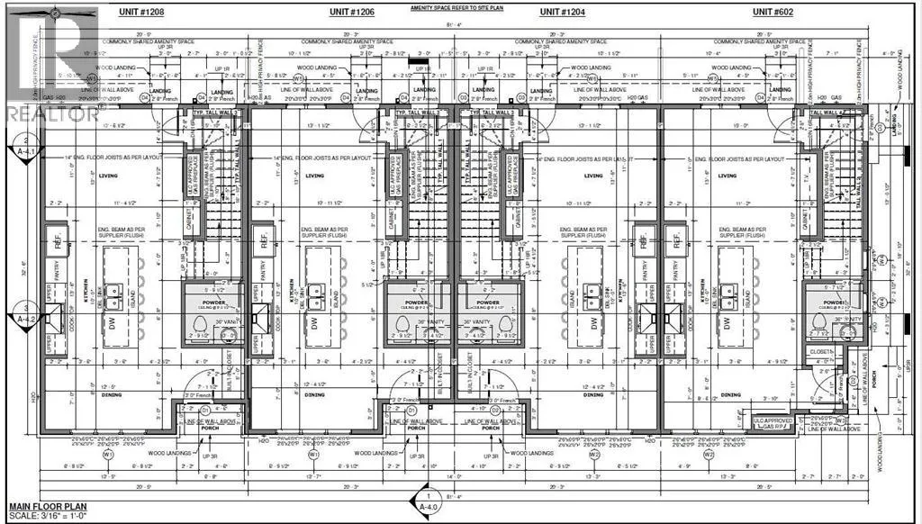
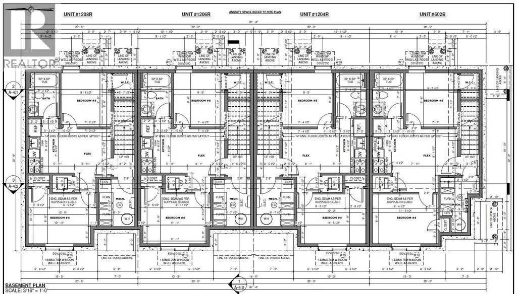
Exceptional Investment Opportunity – Brand-New 4-Plex in Renfrew!Elevate your portfolio with this architecturally striking, purpose-built 4-plex in desirable Renfrew—minutes from downtown Calgary. Each modern townhome features three bedrooms plus a fully legal one-bedroom basement suite, for a total of eight self-contained units, each with private entrances and separate mechanical systems.Built with premium, low-maintenance finishes—stucco, quartz countertops, stainless steel appliances, luxury vinyl plank flooring, and energy-efficient windows—this property offers strong rental appeal and reduced operating costs.Enjoy timeless curb appeal with a cohesive design, professional landscaping, and modern exterior lighting. Close to Deerfoot trail, 16th Ave, transit, parks, and schools, this location ensures consistent demand and excellent returns.Eligible for CMHC’s MLI Select program, offering enhanced financing options.Don’t miss this rare, high-yield multi-family investment—contact us today! Completion in March 2026. (id:27476)

Property Highlights

MLS® Number
A2269012
Type
Multi-family
Community Name
Renfrew
Ownership Type
Freehold
Land Size
6000 sqft|4,051 - 7,250 sqft
Parking Space Total
4

Building

Building Type
Multi-Family
Square Footage
5252 sqft
Amenities
Park, Playground, Schools
Exterior Finish
Stucco
Fireplace Present
No
Basement Type
Full (Finished)
Basement Features
Separate entrance
Building Heating Type
Heating Fuel
Building Cooling Type

Location