3511 42 Street Sw, Calgary, Alberta T3E 3M7

Listed for:
$1,024,900
4 beds
4 baths
Listed 47 days ago
Duplex for rent: 3511 42 Street Sw, Calgary, Alberta T3E 3M7

View all 28 photos

Learn more about this property
Listing provided by:
Real Broker
MLS® number:
A2270058
Agent:
Stirling G. Karlsen
*Indicates required field
Name is required
Email is required
Please enter a valid phone number (e.g., 416-111-1111).

About

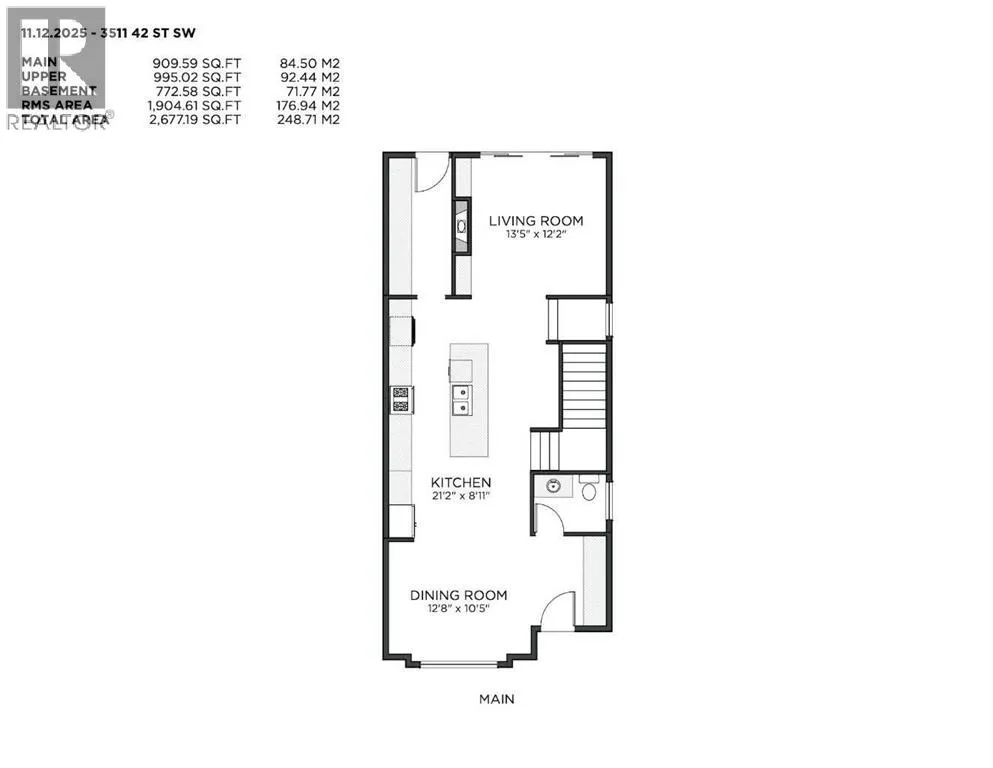
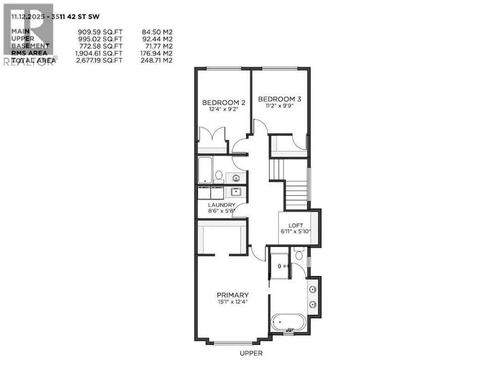
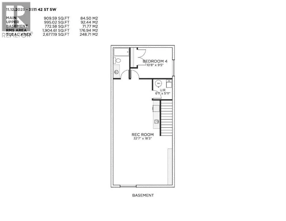
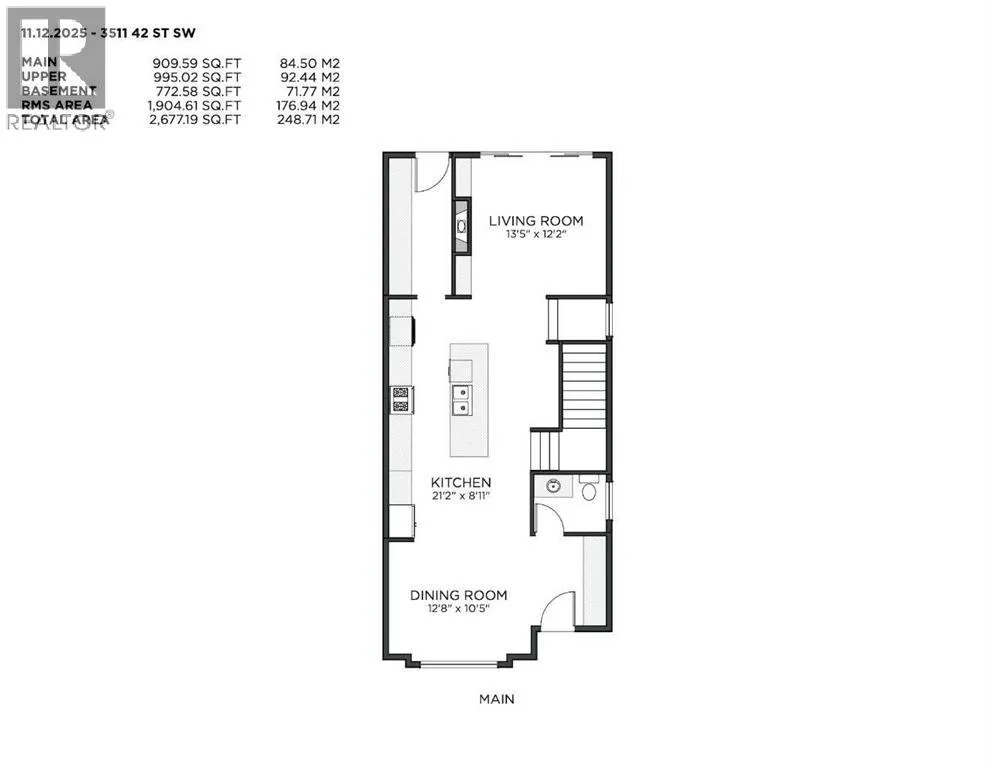
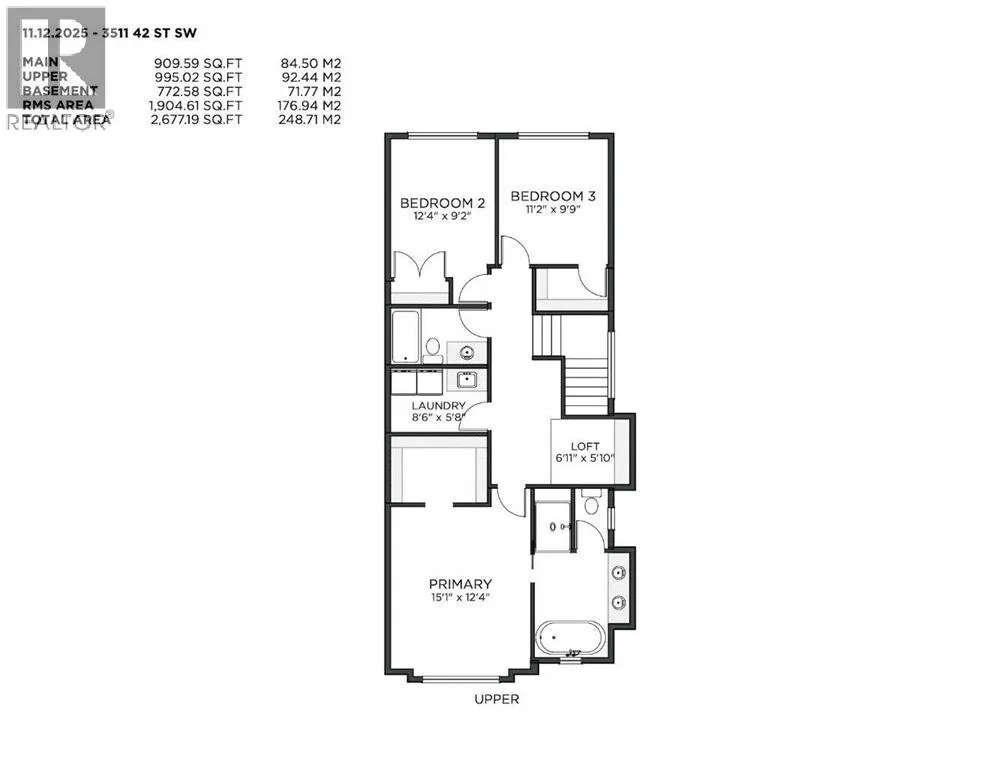
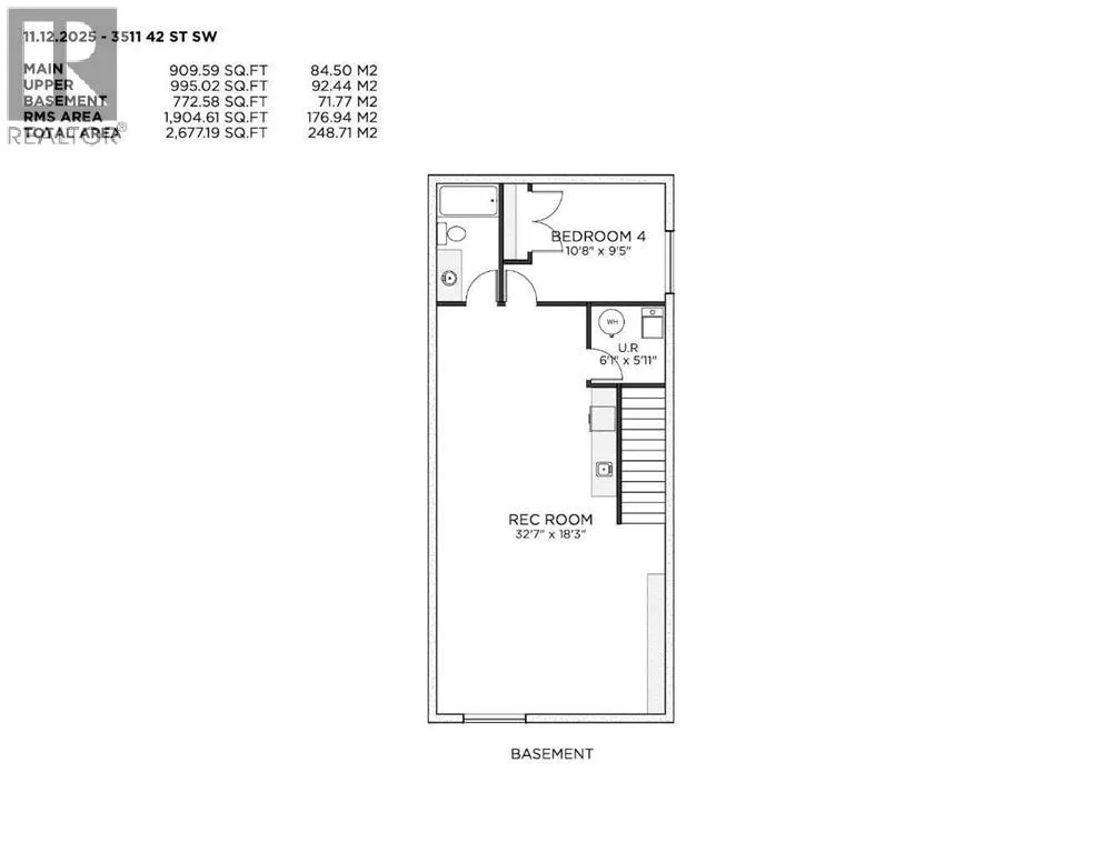
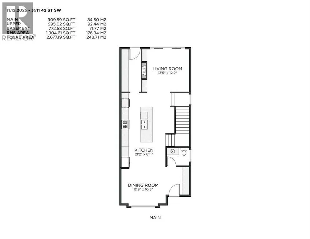
Timeless design, modern comfort, and everyday function come together on a quiet tree-lined street in this brand-new SEMI-DETACHED home in GLENBROOK. With expansive windows, warm natural materials, and elevated finishes throughout, it’s crafted for family living in one of Calgary’s most established neighbourhoods.Step in from the covered entry to a bright foyer with sightlines across the open main floor, where light oak hardwood carries seamlessly through the principal rooms. The front dining room is anchored by a custom feature wall, setting the tone for the thoughtful millwork found throughout. At the heart of the home, the chef-inspired kitchen blends beauty with purpose—two full pantries, crisp white uppers over matching oak lowers, a striking waterfall quartz island, and professional KitchenAid appliances including a flat gas cooktop, built-in wall oven, and French-door fridge. Clean lines, elegant lighting, and generous prep space make this a true culinary hub.The floorplan flows naturally into the inviting living room, where custom built-ins frame a cozy gas fireplace, creating the perfect space to unwind or gather with friends. Large windows and an 8’ sliding patio door pull in west light and open directly to the backyard for easy indoor/outdoor living. A well-designed mudroom with built-ins keeps everyday essentials organized, while an elevated powder room provides privacy and convenience through a hidden door.Upstairs, retreat to the serene primary suite, where vaulted ceilings lift the space and morning sun pours through oversized windows. The ensuite reads like a private spa, offering a massive walk-in shower with body jets, double sinks, a deep free-standing soaker tub, and beautifully curated tile throughout. A custom walk-in closet completes the sanctuary. Two additional bedrooms sit down the hall, each with their own custom cabinetry, and a thoughtfully placed built-in desk creates the perfect homework zone or dedicated home office. A spacious laun dry room with quartz countertop, sink, and extra storage ensures the second floor is as practical as it is comfortable.The lower level flexes effortlessly with family life—an expansive family room with custom built-in TV wall, a generous flex/rec area with a full wet bar, plus an additional bedroom and full bath, ideal for guests, teens, or extended family.Step outside to a sun-soaked west-facing backyard, complete with a large rear deck and BBQ gas line, ready for late summer evenings and weekend gatherings. A double garage and a striking exterior finished in stucco and Hardie-board siding complete this exceptional property.Set in the heart of Glenbrook, this home places you close to schools, parks, playgrounds, shopping, transit, and major routes—offering the perfect blend of community charm & everyday convenience.A refined, functional, and beautifully built home—crafted for real life, designed to be lived in, & ready to enjoy. More photos to follow, as cabinets and flooring have now been installed. (id:27476)

Property Highlights

MLS® Number
A2270058
Type
Single Family
Community Name
Glenbrook
Ownership Type
Freehold
Land Size
2871.31 sqft|0-4,050 sqft
Parking Space Total
4

Building

Building Type
Duplex
Storeys
2.00
Square Footage
1905 sqft
Bathrooms Total
4
Bedrooms Above Ground
3
Bedrooms Total
4
Amenities
Park, Playground, Recreation Nearby, Schools, Shopping
Exterior Finish
Stucco
Fireplace Present
Yes
Basement Type
Full (Finished)
Basement Features
Building Heating Type
Other, Forced air, In Floor Heating
Heating Fuel
Natural gas
Building Cooling Type
None, See Remarks

Location

Street Spotlight - For sale