2105a 7 Street Ne, Calgary, Alberta T2E 4C7

Listed for:
$1,150,000
5 beds
4 baths
Listed 26 days ago
Duplex for rent: 2105a 7 Street Ne, Calgary, Alberta T2E 4C7

View all 9 photos

Learn more about this property
Listing provided by:
PREP Realty
MLS® number:
A2272545
Agent:
Ibadat Bal
*Indicates required field
Name is required
Email is required
Please enter a valid phone number (e.g., 416-111-1111).

About

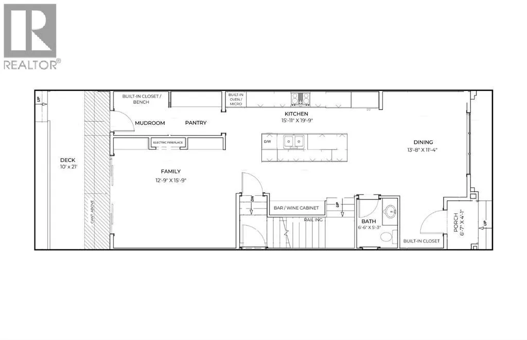
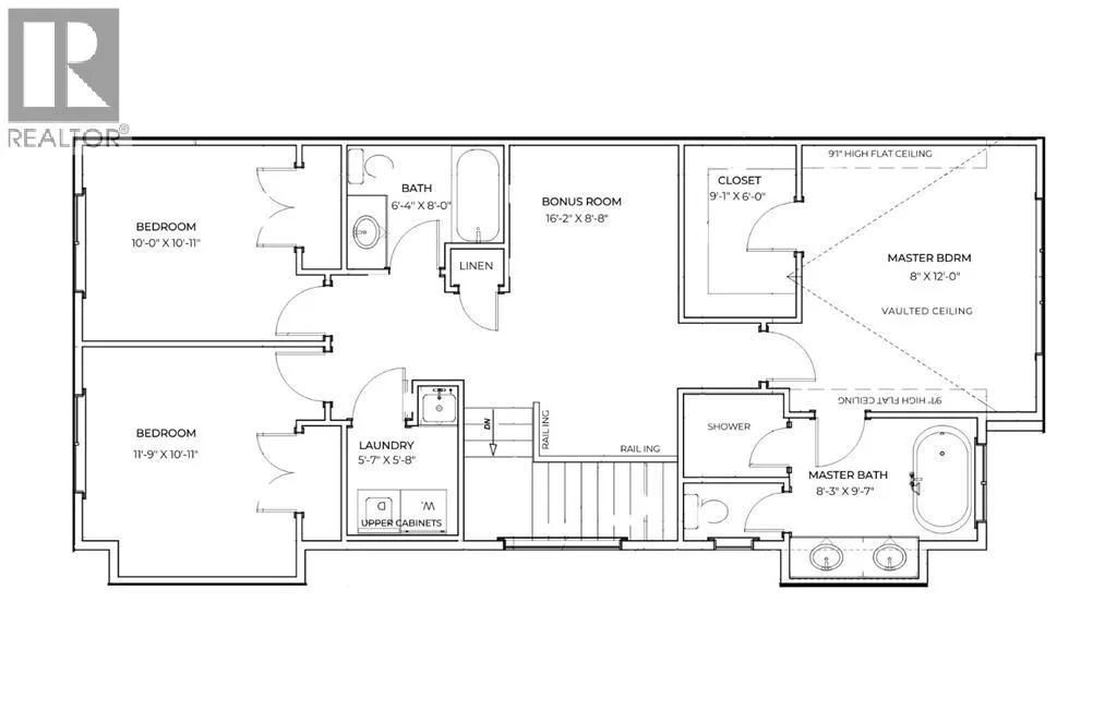
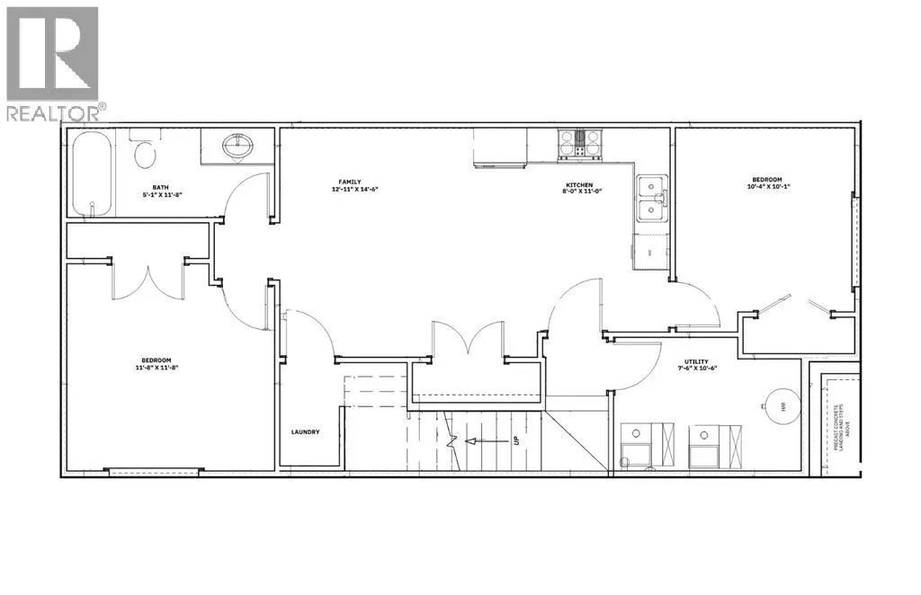
Discover this stunning UNDER-CONSTRUCTION NEW SEMI-DETACHED INFILL featuring a west-facing backyard and an unbeatable location within walking distance to The Winston Golf Club. Step inside and you’re immediately welcomed by an open and airy main floor with soaring 10 ft ceilings, 8 ft doors and hardwood flooring throughout the main and upper levels—a space that instantly feels like home. The bright, spacious dining area with large windows sets the perfect stage for hosting dinner parties or enjoying relaxed family meals. The chef-inspired kitchen is a true showpiece, featuring high-end stainless steel appliances, including a gas cooktop and built-in oven/microwave combo, a massive quartz island with breakfast bar, and sleek full-height custom cabinetry for ample storage. The walk-through pantry with built-in shelving and direct access to the rear mudroom adds everyday convenience. At the back, the inviting living room centres around a cozy fireplace and large 10 ft wide sliding door that open to the west backyard, filling the home with natural light. A stylish designer powder room completes the main level. Upstairs, you’ll find three spacious bedrooms, each thoughtfully designed for comfort. The primary suite is a luxurious retreat, featuring a spa-inspired ensuite with a heated floor, soaking tub, glass-enclosed shower, dual sinks, and a walk-in closet that offers generous storage. Two additional bedrooms, a modern 4-piece bath, a tiled laundry room with sink, and a versatile bonus space—ideal as an office, reading nook, or play area—complete the upper level. The fully developed LEGAL 2-BEDROOM SUITE (subject to permits & approval by the city) on the lower level offers flexibility for a live-in nanny, extended family, or rental income. With a private side entrance, this suite includes a well-appointed kitchen with full-height cabinetry and quartz countertops, stainless steel appliances, a spacious living area, modern 4-piece bath, separate laundry, and two generous bedrooms. Outside, enjoy your private backyard oasis with a wooden deck and full fencing, perfect for relaxation or entertaining. The double detached garage provides ample room for vehicles, tools, and storage. Located in the vibrant community of Winston Heights, you’ll love the friendly atmosphere and nearby amenities—top-rated schools, grocery stores, recreation and aquatic centre, golf course, soccer fields, tennis courts, and off-leash dog parks. Scenic walking and cycling pathways are just steps away, while shopping, dining, and downtown Calgary are only a short drive with easy access to 16 Ave and Deerfoot Trail. Both sides are available. (id:27476)

Property Highlights

MLS® Number
A2272545
Type
Single Family
Community Name
Winston Heights/Mountview
Ownership Type
Freehold
Land Size
3000 sqft|0-4,050 sqft
Parking Space Total
2

Building

Building Type
Duplex
Storeys
2.00
Square Footage
2026 sqft
Bathrooms Total
4
Bedrooms Above Ground
3
Bedrooms Total
5
Amenities
Golf Course, Playground, Recreation Nearby, Schools, Shopping
Exterior Finish
Stucco
Fireplace Present
Yes
Basement Type
Full (Finished)
Basement Features
Separate entrance, Suite
Building Heating Type
Forced air
Heating Fuel
Natural gas
Building Cooling Type
See Remarks

Location

Street Spotlight - For sale