2916 17 Street Se, Calgary, Alberta T2G 3W3

Listed for:
$549,000
1 beds
1 baths
Listed 16 days ago
House for rent: 2916 17 Street Se, Calgary, Alberta T2G 3W3

View all 13 photos

Learn more about this property
Listing provided by:
Grand Realty
MLS® number:
A2275237
Agent:
Farhod Shamsiyev
*Indicates required field
Name is required
Email is required
Please enter a valid phone number (e.g., 416-111-1111).

About

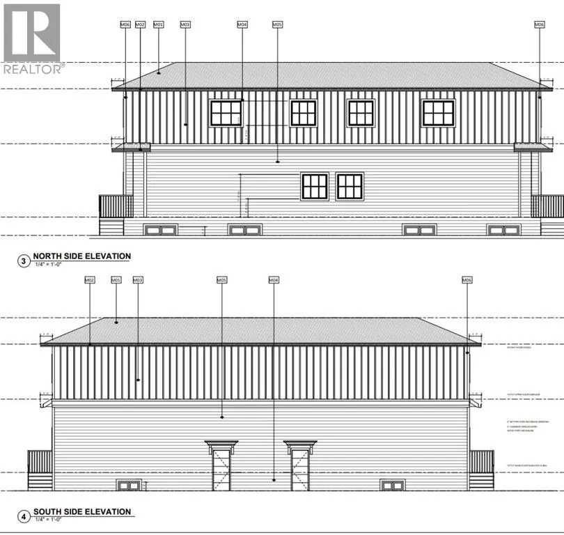
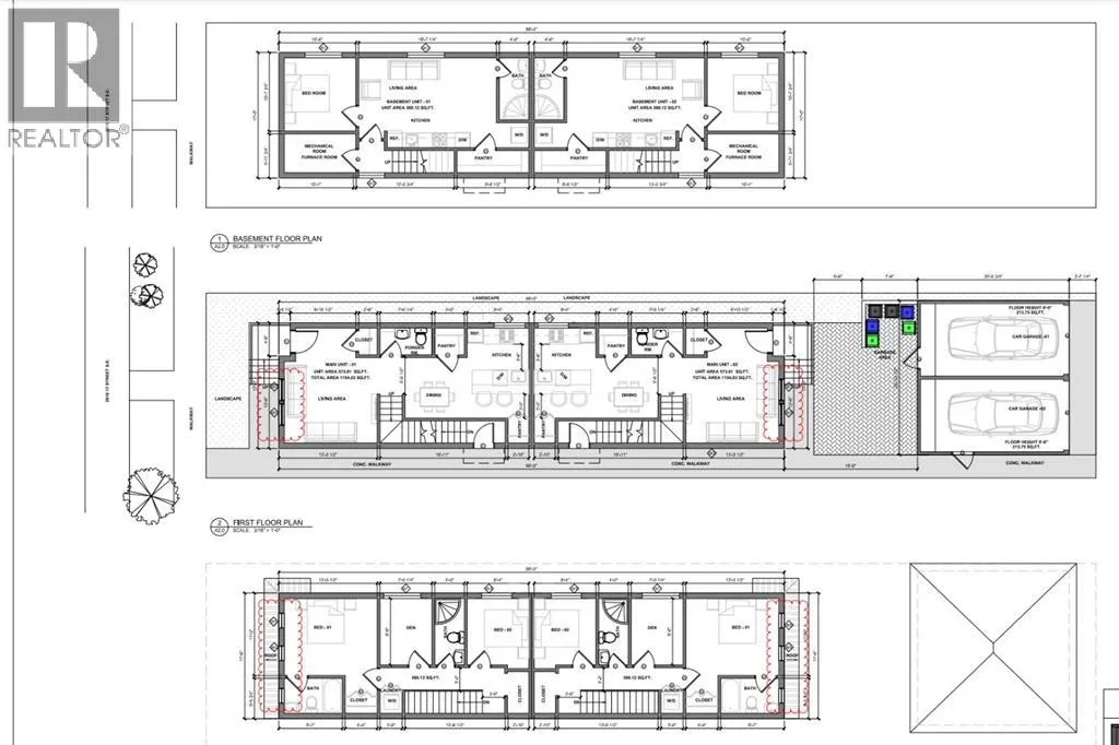
Attention Builders, Developers & Investors! Exceptional DP APPROVED for 4 UNITS, infill opportunity in Inglewood, one of Calgary’s most iconic and in-demand inner-city communities. Approved for a back-to-back duplex with two legal basement suites (4 units total), this project is truly shovel-ready. Utilities have been disconnected, the demolition permit is approved, and the interior of the existing home has already been stripped down to the studs — no asbestos remediation required. Build immediately and capitalize this season. Situated just 8 minutes from downtown, Inglewood is renowned for its vibrant character, strong rental demand, and long-term appreciation. The neighbourhood offers an unbeatable lifestyle with river pathways, parks, schools, breweries, boutiques, music venues, and some of Calgary’s top restaurants, all within walking distance. Easy access to transit and major roadways further enhances appeal for both end-users and tenants. This is a rare opportunity to develop in a high-barrier, mature inner-city location where new inventory is limited. Ideal for strong resale value, long-term rental hold, or investor exit, in a community that consistently outperforms. Don’t miss your chance to build in one of Calgary’s most established and sought-after neighbourhoods. (id:27476)

Property Highlights

MLS® Number
A2275237
Type
Single Family
Community Name
Inglewood
Ownership Type
Freehold
Land Size
279 m2|0-4,050 sqft
Parking Space Total
1

Building

Building Type
House
Storeys
1.50
Square Footage
1218 sqft
Bathrooms Total
1
Bedrooms Above Ground
1
Bedrooms Total
1
Amenities
Schools, Shopping
Fireplace Present
No
Basement Type
Full (Unfinished)
Basement Features
Building Heating Type
Heating Fuel
Building Cooling Type
None

Location

Street Spotlight - For sale