106, 40 Livingston Parade Ne, Calgary, Alberta T4B 3P6

Listed for:
$369,000
2 beds
3 baths
Listed 9 days ago
Row / Townhouse for rent: 106, 40 Livingston Parade Ne, Calgary, Alberta T4B 3P6

View all 28 photos

Learn more about this property
Listing provided by:
Bode Platform Inc.
MLS® number:
A2275977
Agent:
David Lofthaug
*Indicates required field
Name is required
Email is required
Please enter a valid phone number (e.g., 416-111-1111).

About

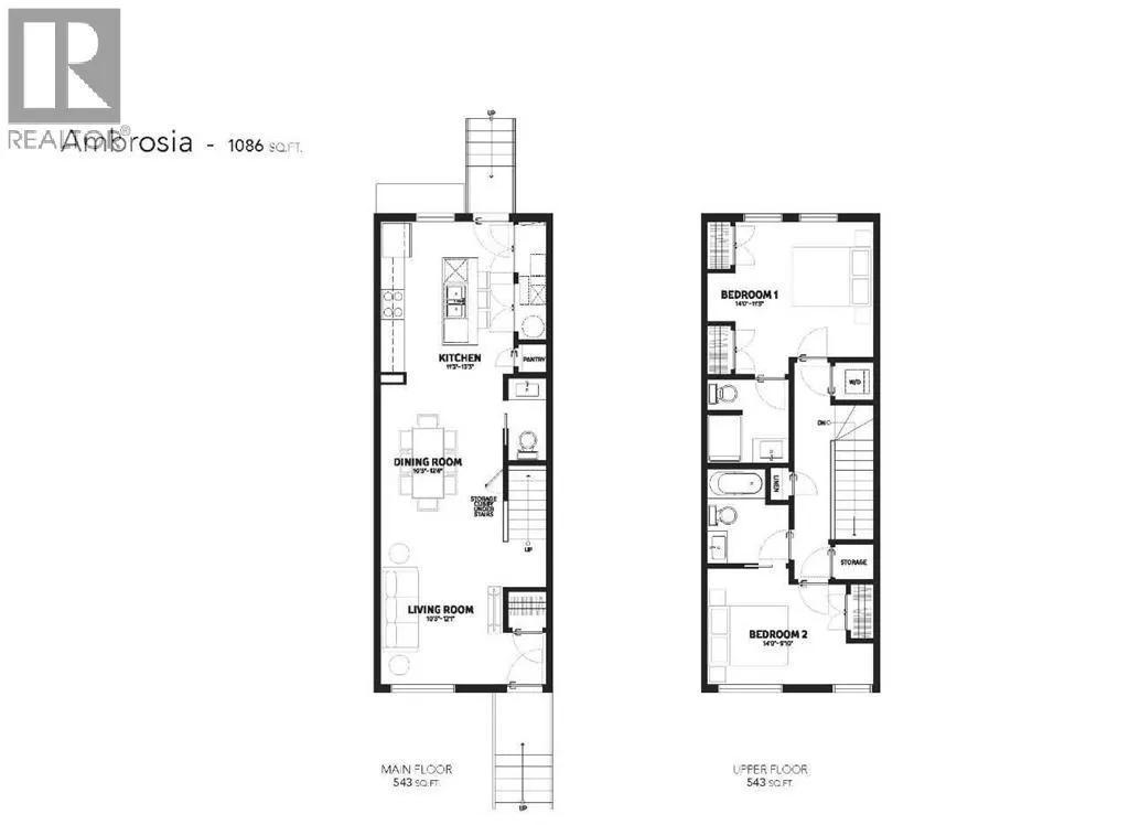
Welcome to the Ambrosia by Avalon Master Builder, a stunning 2-bedroom, 2.5-bathroom two-story townhome designed for modern living. This EnerGuide-certified home features open-concept living with a spacious kitchen island, perfect for entertaining, and luxurious vinyl plank (LVP) flooring throughout the main level and bathrooms. Each bedroom boasts its own private ensuite for added comfort and convenience, while upper-floor laundry provides maximum functionality. Built to 2030 and beyond building code standards, it features superior insulation, triple-pane windows, and advanced construction techniques that keep energy costs low and comfort high. Every square foot of this home is thoughtfully designed to maximize functionality, energy efficiency and style. Photos are representative. (id:27476)

Property Highlights

MLS® Number
A2275977
Type
Single Family
Community Name
Livingston
Maintenance Fee
248.00
Ownership Type
Condominium/Strata
Land Size
Unknown
Parking Space Total
1

Building

Building Type
Row / Townhouse
Storeys
2.00
Square Footage
1210 sqft
Bathrooms Total
3
Bedrooms Above Ground
2
Bedrooms Total
2
Amenities
Park, Playground, Schools, Shopping
Fireplace Present
No
Basement Type
None
Basement Features
Building Heating Type
Forced air
Heating Fuel
Natural gas
Building Cooling Type
None

Location

Street Spotlight - For sale