199 Corner Glen Crescent Ne, Calgary, Alberta T3N 2L8

Listed for:
$749,900
4 beds
3 baths
Listed 54 days ago
House for rent: 199 Corner Glen Crescent Ne, Calgary, Alberta T3N 2L8

View all 19 photos

About

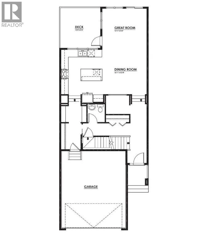
*WALK OUT BASEMENT*BRAND NEW HOME*JAKE 26*QUICK POSSESSION*10 SOLAR PANELS*MAIN FLOOR BEDROOM SUITE* Amazing Design! Unique in Features! Over 2273+ SF of Stylish design welcomes you into this stunning four-bedroom and 3-BATH home located in the beautiful community of Cornerstone. You're welcome to a thoughtfully designed living space that maximizes every inch while providing ample space for your whole family to enjoy! The Gorgeous OPEN FLOOR PLAN invites you in to discover a lovely kitchen that boasts beautiful QUARTZ countertops, a sleek stainless steel Whirlpool appliance package with an upgraded electric stove, a French Door fridge w/ Internal Water/Ice, a microwave, and a Broan power pack built-in cabinet hood fan. A large walk-through pantry and beautiful extended oversized flush centre Island that overlooks the generous great room and dining room- Ideal for all entertaining. A sizeable 4TH BEDROOM on the main floor, perfect for a large family or working from home, as you have a full bath adjacent to the functional space. Upstairs, you will discover THREE MORE BEDROOMS with a Primary Bedroom boasting a 5-piece dual vanity, a stand-alone shower, an oversized bath and two large walk-in closets. A centralized BONUS ROOM offers an additional living space and a full 4-piece bath, plus 2nd-floor laundry, completing the level. ADDITIONAL FEATURES: Jayman Complete home - Washer + Dryer + Window Blinds Included! Fit and Finish SELECT, 10' x 10' upper deck, professionally designed White Colour Palette, rear patio door, raised 9' basement ceiling height, and 3-piece rough-in plumbing. Situated close to the International Airport with quick access to both Deer Foot Trail and Stoney Trail, along with new amenities being added to the community continuously, you will enjoy all Cornerstone has to offer. A brand new build with all of the difficult decisions made along with a functional and intelligent floor plan for a large family. Perfect!! (id:27476)

Property Highlights

MLS® Number
A2275986
Type
Single Family
Community Name
Cornerstone
Ownership Type
Freehold
Land Size
421 m2|4,051 - 7,250 sqft
Parking Space Total
4

Building

Building Type
House
Storeys
2.00
Square Footage
2273 sqft
Bathrooms Total
3
Bedrooms Above Ground
4
Bedrooms Total
4
Amenities
Playground, Schools
Exterior Finish
Brick, Vinyl siding
Fireplace Present
No
Basement Type
Full (Unfinished)
Basement Features
Walk out
Building Heating Type
Forced air
Heating Fuel
Natural gas
Building Cooling Type
None

Utilities

Water
Municipal water

Room Layout

Living room
Main level
13.52 Ft x 15.00 Ft
Dining room
Main level
11.32 Ft x 15.00 Ft
Bedroom
Main level
12.24 Ft x 11.08 Ft
Kitchen
Main level
16.57 Ft x 10.50 Ft
3pc Bathroom
Main level
4.82 Ft x 8.76 Ft
Laundry room
Upper Level
11.17 Ft x 6.00 Ft
Primary Bedroom
Upper Level
15.42 Ft x 14.01 Ft
Bedroom
Upper Level
12.67 Ft x 12.50 Ft
Bonus Room
Upper Level
14.67 Ft x 12.00 Ft
5pc Bathroom
Upper Level
12.34 Ft x 13.52 Ft
Other
Upper Level
6.83 Ft x 7.75 Ft
Bedroom
Upper Level
12.92 Ft x 10.58 Ft
4pc Bathroom
Upper Level
Measurements not available

Location

Learn more about this property
Listing provided by:
Jayman Realty Inc.
MLS® number:
A2275986
Agent:
Michael R. Laprairie
*Indicates required field
Name is required
Email is required
Please enter a valid phone number (e.g., 416-111-1111).

Street Spotlight - For sale