306, 1720 13 Street Sw, Calgary, Alberta T2T 3P4

Listed for:
$298,892
2 beds
2 baths
Listed 76 days ago
Apartment for rent: 306, 1720 13 Street Sw, Calgary, Alberta T2T 3P4

View all 17 photos

About

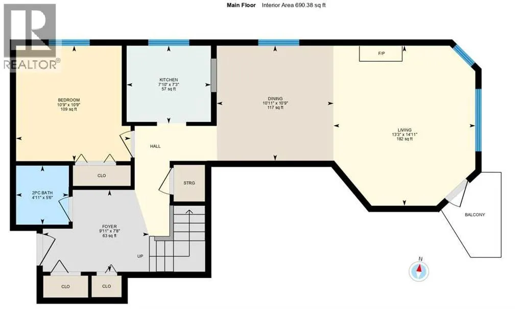
306, 1720 13 Street SW | Prime Location! | Welcome To Labatt House In Lower Mount Royal | Three Storey Boutique Style Condo With Only 20 Units | Top Floor End Unit | Stunning Open Loft Overlooking The Living Room & A Cozy Wood-Burning Fireplace | A Spacious Main Floor Bedroom Plus A Large Primary Suite On The Upper Loft Level | Two Bathrooms Main Floor 2 PCE & Upper Floor 4 PCE | East Facing Living Room Has Gorgeous Floor To Ceiling Windows & High Vaulted Ceiling Which Bring In An Abundance Of Natural Light | Assigned Covered Parking With Plugin Power Controlled From Inside Apartment | Ideally Located Just Steps To Trendy 17th Avenue Shopping, Restaurants & Entertainment | No Elevator | Condo Fees of $854.91 Include Heat, Parking, Professional Management, Reserve Fund Contributions, Sewer, Snow Removal, Trash, Water | PETS Allowed Two Cats (No Dogs or Birds) Subject to Board Approval | No Age Restrictions | In-Suite Laundry Is An Allowable Option By The Board. (id:27476)

Property Highlights

MLS® Number
A2275654
Type
Single Family
Community Name
Lower Mount Royal
Maintenance Fee
854.91
Ownership Type
Condominium/Strata
Land Size
Unknown
Parking Space Total
1

Building

Building Type
Apartment
Storeys
3.00
Square Footage
1168 sqft
Bathrooms Total
2
Bedrooms Above Ground
2
Bedrooms Total
2
Amenities
Park, Recreation Nearby, Schools, Shopping
Exterior Finish
Concrete, Vinyl siding
Fireplace Present
Yes
Basement Type
Basement Features
Building Heating Type
Baseboard heaters
Heating Fuel
Natural gas
Building Cooling Type
None

Location

Learn more about this property
Listing provided by:
Real Broker
MLS® number:
A2275654
Agent:
Deric A. Burton
*Indicates required field
Name is required
Email is required
Please enter a valid phone number (e.g., 416-111-1111).

Street Spotlight - For sale