2611 12 Avenue Nw, Calgary, Alberta T2N 1K7

Listed for:
$2,895,000
5 beds
6 baths
Listed 2 days ago
House for rent: 2611 12 Avenue Nw, Calgary, Alberta T2N 1K7

View all 20 photos

Learn more about this property
Listing provided by:
RE/MAX House of Real Estate
MLS® number:
A2277133
Agent:
Joel Semmens
*Indicates required field
Name is required
Email is required
Please enter a valid phone number (e.g., 416-111-1111).

About

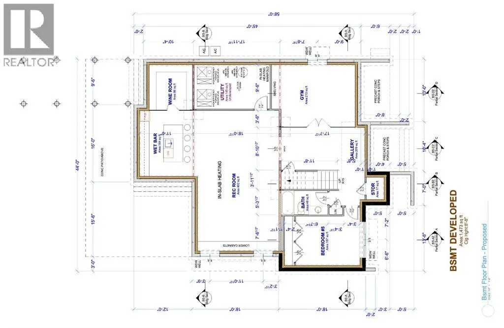
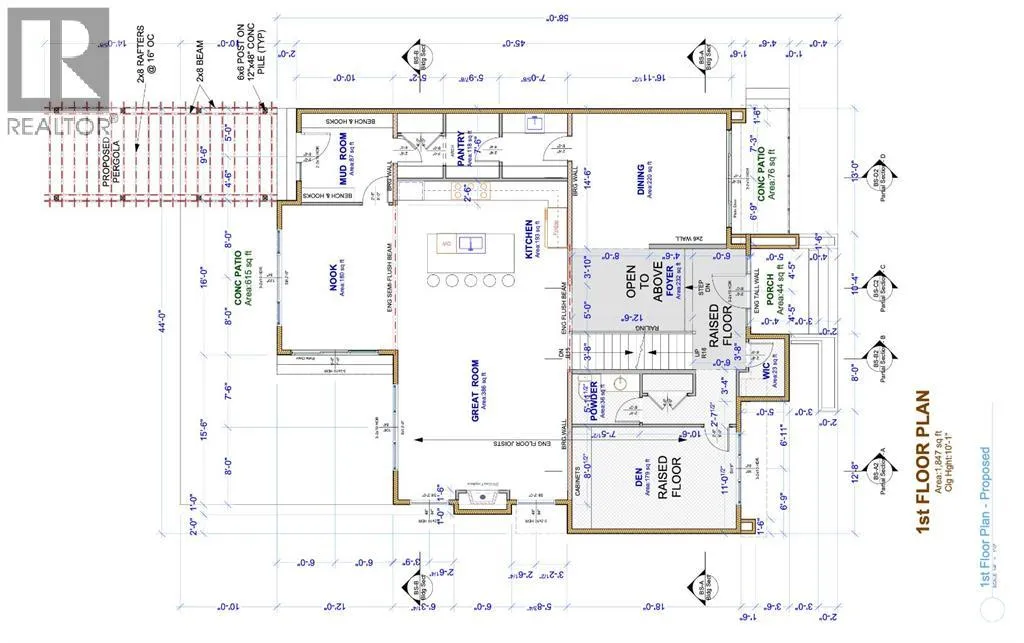
Beautifully crafted luxury living awaits in this brand new two storey home located in the highly sought-after community of St. Andrews Heights. Built by Calton Developments Ltd. in collaboration with Alana Humphreys Design, this exceptional residence blends timeless elegance with modern urban living, showcasing superior craftsmanship with European inspired high end glass and exterior detailing, and premium materials throughout. Stunning curb appeal welcomes you into a thoughtfully designed centre hall plan featuring a spacious foyer open to above, flanked by a private home office and formal dining room. Custom millwork, exquisite finishes, and gorgeous white oak hardwood floors set the tone for the home’s refined aesthetic. The open concept main living area is perfectly suited for entertaining, anchored by a chef inspired kitchen complete with quartz countertops, custom cabinetry, and premium designer appliances including a panelled Subzero refrigerator and Wolf gas cooktop, microwave, and built-in wall oven. A large centre island overlooks the breakfast nook and the bright, inviting living room, highlighted by a sleek linear gas fireplace framed by windows on either side. A massive walk-through butler’s pantry connects seamlessly to the formal dining room, offering an ideal setup for hosting and serving. The functional mudroom features custom bench seating and hooks and leads directly to the pergola covered patio. Glass panelled rails lead upstairs, a mezzanine overlooks the foyer below and is complemented by a convenient laundry room and four generously sized bedrooms, each with its own ensuite. The primary suite is a true retreat, boasting a luxurious 5pc ensuite with dual vanities, a built-in soaker tub, and a glass enclosed shower with bench, along with a stunning custom walk-in closet complete with an island dresser. The fully developed lower level offers in-floor slab heating and showcases a spacious recreation room with a wet bar, island seating, and beverag e fridge, plus an impressive glass enclosed wine room sure to delight any enthusiast. A home gym and fifth bedroom complete this level. Enjoy sunny south exposure in the backyard, thoughtfully designed to be an extension of the home’s living space and ideal for both family life and entertaining. The expansive patio offers plenty of room for outdoor dining, summer barbecues, and relaxed evenings with friends. Whether hosting weekend gatherings, celebrating milestones, or simply enjoying quiet mornings outdoors, this private and sun filled setting delivers versatility and comfort with convenient access to the double detached garage. Ideally located, St. Andrews Heights offers close proximity to the Foothills and Alberta Children’s Hospital, scenic pathways and a popular tobogganing hill, McMahon Stadium, the new University District, and the University of Calgary, making this an exceptional opportunity to enjoy luxury living in one of Calgary’s most established and desirable communities. (id:27476)

Property Highlights

MLS® Number
A2277133
Type
Single Family
Community Name
St Andrews Heights
Ownership Type
Freehold
Land Size
580 m2|4,051 - 7,250 sqft
Parking Space Total
3

Building

Building Type
House
Storeys
2.00
Square Footage
3562 sqft
Bathrooms Total
6
Bedrooms Above Ground
4
Bedrooms Total
5
Amenities
Park, Playground, Schools, Shopping
Exterior Finish
Brick, Stucco, Vinyl siding
Fireplace Present
Yes
Basement Type
Full (Finished)
Basement Features
Building Heating Type
Forced air, In Floor Heating
Heating Fuel
Natural gas
Building Cooling Type
Central air conditioning

Location

Street Spotlight - For sale