77 Sage Hill Crescent Nw, Calgary, Alberta T3R 1Y2

Listed for:
$929,900
5 beds
4 baths
Listed 3 days ago
House for rent: 77 Sage Hill Crescent Nw, Calgary, Alberta T3R 1Y2

View all 38 photos

Learn more about this property
Listing provided by:
RE/MAX Realty Professionals
MLS® number:
A2277200
Agent:
Robyn Moser
*Indicates required field
Name is required
Email is required
Please enter a valid phone number (e.g., 416-111-1111).

About

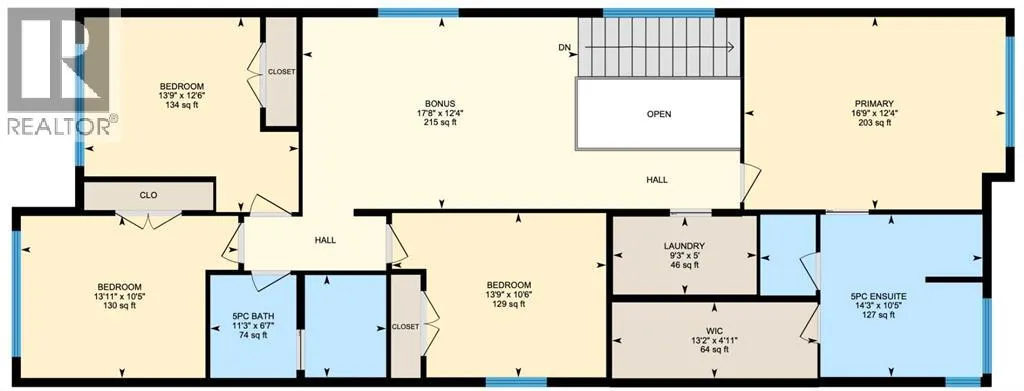
Have you ever walked into a home and had a hard time catching your breath because it's so beautiful? This is that home. Walk into this home that some house functions as a living show home. Get all the benefits of a new home without any of the headaches. Fully finished on all levels! Double attached garage! Backing onto a childrens park! High ceilings! Tons of windows! Lots of natural sunlight! Massive upstairs bonus room! Stunning primary suite with ensuite! Finished basement with extra bedroom and bathroom! AC! Landscaped! Fenced! I am serious, I don't know what more you can ask for?! Get it before it is gone (id:27476)

Property Highlights

MLS® Number
A2277200
Type
Single Family
Community Name
Sage Hill
Ownership Type
Freehold
Land Size
333 m2|0-4,050 sqft
Parking Space Total
4

Building

Building Type
House
Storeys
2.00
Square Footage
2419 sqft
Bathrooms Total
4
Bedrooms Above Ground
4
Bedrooms Total
5
Amenities
Park, Playground, Schools, Shopping
Exterior Finish
Stone, Vinyl siding
Fireplace Present
Yes
Basement Type
Full (Finished)
Basement Features
Building Heating Type
Other, Forced air
Heating Fuel
Natural gas
Building Cooling Type
Central air conditioning

Location

Street Spotlight - For sale