101, 625 2 Avenue Nw, Calgary, Alberta T2N 0E2

Listed for:
$990,000
4 beds
4 baths
Listed 39 days ago
Row / Townhouse for rent: 101, 625 2 Avenue Nw, Calgary, Alberta T2N 0E2

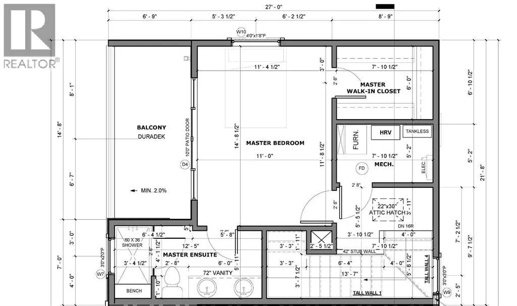
View all 11 photos

About

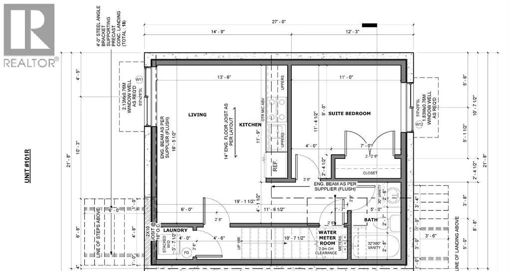
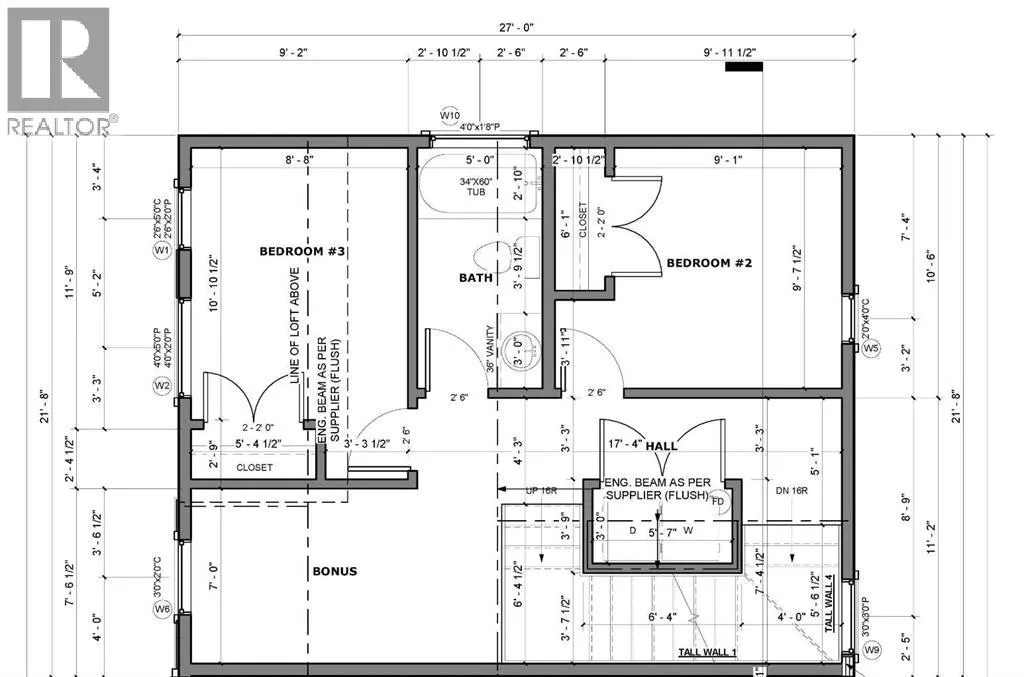
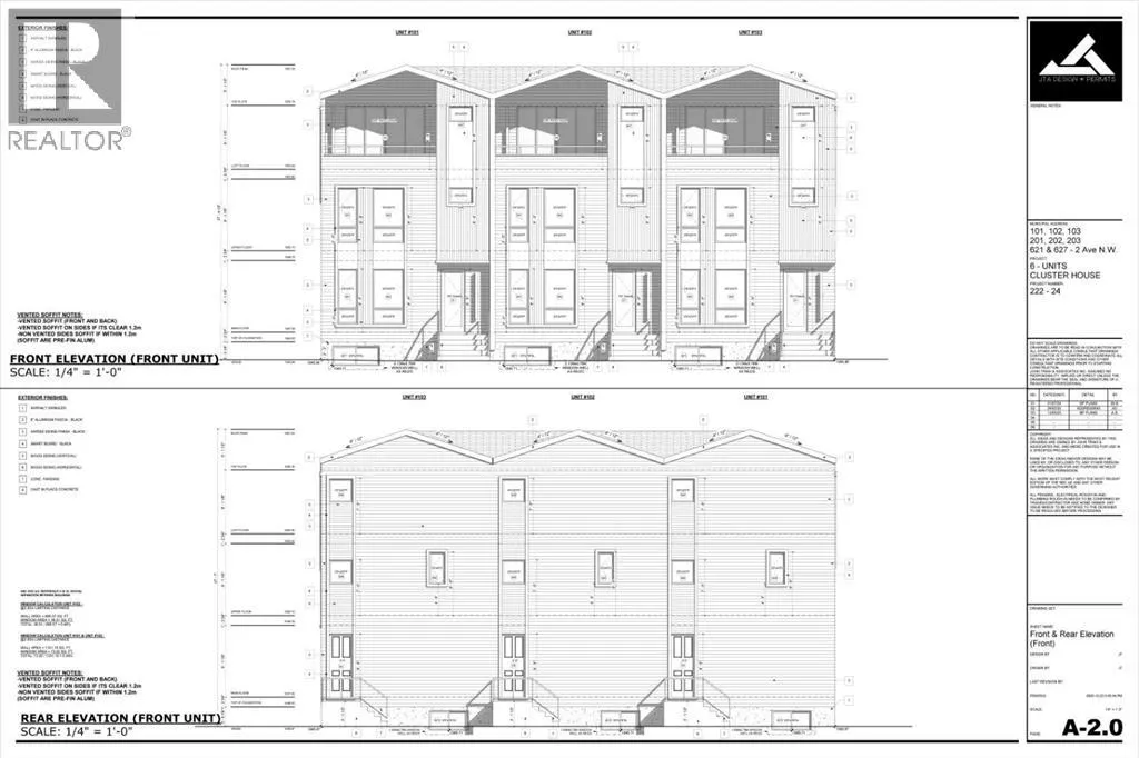
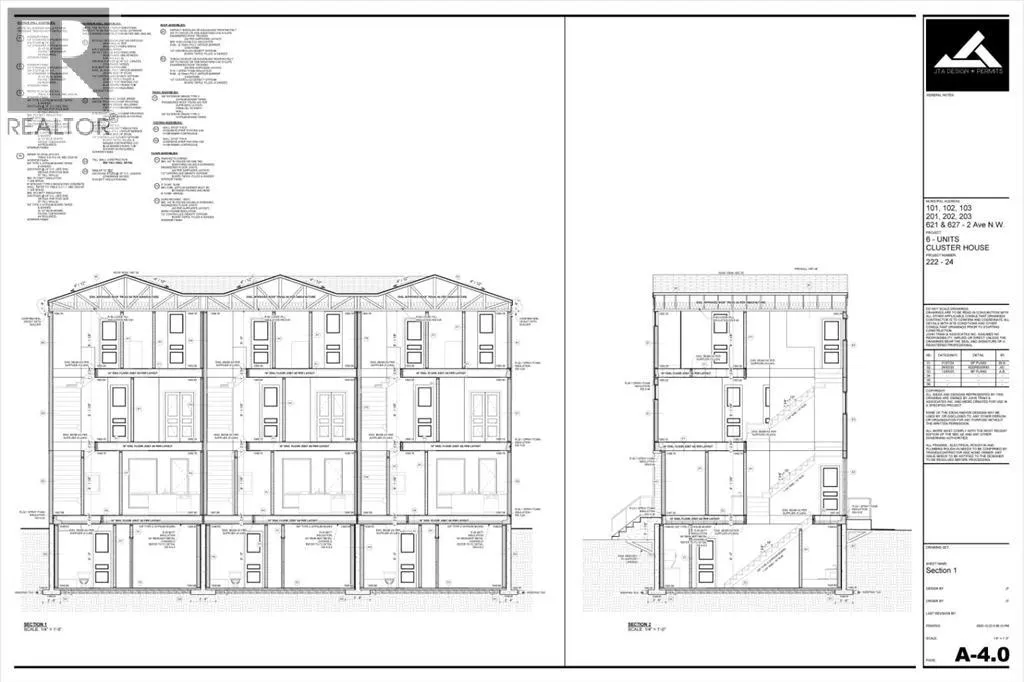
BRAND NEW FRONT FACING END-UNIT TOWNHOME | OUTSTANDING SUNNYSIDE INNER-CITY LOCATION | 3 STOREYS ABOVE GRADE | PRIVATE PRIMARY RETREAT WITH BALCONY | BONUS ROOM + 3 BEDROOMS | OPEN-CONCEPT MAIN FLOOR | LEGAL 1-BEDROOM BASEMENT SUITE | FIRE-RATED & SOUND-SEPARATED CONSTRUCTION | Brand new and currently under construction, this end-unit inner-city townhome delivers a thoughtfully designed layout paired with a fully self-contained legal basement suite, offering exceptional flexibility for homeowners, investors or multi-generational living. Quality construction, modern design and a highly functional floorplan combine to create a private and low-maintenance urban residence in one of Calgary’s most desirable neighbourhoods. The open-concept main floor is designed as a great-room style living space, seamlessly connecting the kitchen, dining and living areas to support everyday living and entertaining with ease. Designed for everyday usability, the kitchen features modern appliances and generous prep and storage space, while the end-unit position enhances privacy and natural light. The second level features 2 well-proportioned bedrooms, a full 4-piece bathroom, convenient upper-level laundry and a dedicated bonus room ideal for a home office, media space or additional living area. A true owner’s oasis, the entire third level is reserved as a private primary retreat, complete with a large walk-in closet, a luxurious ensuite and a private balcony that creates separation from the rest of the home. The fully developed legal basement suite includes a private entrance, dedicated kitchen, living area, bedroom, full bathroom and in-suite laundry, providing excellent rental potential and true separation between living spaces. Built to current code with fire-rated and sound-separated assemblies and efficient mechanical systems, this property offers peace of mind and long-term durability. Ideally located in the heart of Sunnyside, just steps from boutique shops, acclaimed restaurants, independent cafes, the LRT station, the Bow River pathway system and downtown, this home combines beautiful brand-new construction and a vibrant inner-city lifestyle. (id:27476)

Property Highlights

MLS® Number
A2277154
Type
Single Family
Community Name
Sunnyside
Maintenance Fee
0.00
Ownership Type
Condominium/Strata
Land Size
416 m2|4,051 - 7,250 sqft
Parking Space Total
1

Building

Building Type
Row / Townhouse
Storeys
3.00
Square Footage
1675 sqft
Bathrooms Total
4
Bedrooms Above Ground
3
Bedrooms Total
4
Amenities
Park, Playground, Schools, Shopping
Exterior Finish
Brick, Stucco
Fireplace Present
No
Basement Type
Full (Finished)
Basement Features
Separate entrance, Suite
Building Heating Type
Forced air
Heating Fuel
Natural gas
Building Cooling Type
None

Location

Learn more about this property
Listing provided by:
LPT Realty
MLS® number:
A2277154
Agent:
Abe M. Elhage
*Indicates required field
Name is required
Email is required
Please enter a valid phone number (e.g., 416-111-1111).

Street Spotlight - For sale