90 Walden Crescent Se, Calgary, Alberta T2X 0S9

Listed for:
$599,900
4 beds
4 baths
Listed 8 days ago
House for rent: 90 Walden Crescent Se, Calgary, Alberta T2X 0S9

View all 50 photos

About

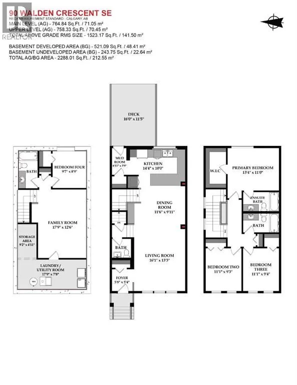
CHECK THIS ONE OUT! | JAYMAN BUILT | 4 BEDROOMS | FINISHED BASEMENT | 3.5 BATHS | AIR CONDITIONED | 2288+ SQ FT OF LIVING SPACEThis best-selling model, custom-built by the original owners, offers timeless style, modern upgrades, and a highly functional layout for today’s busy families.Set on a traditional lot (not zero-lot line) and located on a family-friendly street just steps away from ponds, parks, ice rink, pathways, schools, and shopping, this home delivers both comfort and convenience.The open-concept main floor impresses with 9-ft ceilings, luxury hardwood flooring, and an abundance of natural light. A chef’s kitchen anchors the space, featuring ample counter space, shaker-style maple cabinetry with wine shelving, extended trim, stainless steel appliances, including an electric cooktop, recessed lighting, a large peninsula island with a flush eating bar, a mudroom pantry, and a spacious dining area. The layout also includes a main floor family room with west-facing extra-tall windows. A rear mudroom adds storage and direct access to the oversized east-facing fenced yard, two parking stalls, paved back lane way, 2 sheds and a 16 x 11 deck.Upstairs, the luxurious primary suite offers a full 4-piece ensuite and a massive walk-in closet. Two additional bedrooms, a full bathroom, and a convenient linen closet complete this level.The professionally finished basement provides additional living space with a large family room, a 4th bedroom, a full bathroom, storage, and a full-sized laundry room.Additional highlights include:• Central A/C• Designer lighting, upgraded plumbing fixtures & electrical finishes• Generously sized bedrooms with large windows for natural lightWith a quick 2026 possession date, this home is move-in ready and checks all the boxes for families, professionals, or investors alike.Don’t miss out—call your friendly REALTOR® today to book your private showing! (id:27476)

Property Highlights

MLS® Number
A2279477
Type
Single Family
Community Name
Walden
Ownership Type
Freehold
Land Size
286 m2|0-4,050 sqft
Parking Space Total
2

Building

Building Type
House
Storeys
2.00
Square Footage
1523 sqft
Bathrooms Total
4
Bedrooms Above Ground
3
Bedrooms Total
4
Amenities
Park, Playground, Recreation Nearby, Schools, Shopping
Exterior Finish
Vinyl siding
Fireplace Present
No
Basement Type
Full (Finished)
Basement Features
Building Heating Type
Central heating, Other, Forced air
Heating Fuel
Natural gas
Building Cooling Type
Central air conditioning

Location

Learn more about this property
Listing provided by:
Jayman Realty Inc.
MLS® number:
A2279477
Agent:
Michael R. Laprairie
*Indicates required field
Name is required
Email is required
Please enter a valid phone number (e.g., 416-111-1111).

Street Spotlight - For sale