4535 Bowness Road Nw, Calgary, Alberta T3B 0A9

Listed for:
$35
0 beds
0 baths
Listed 29 days ago
Retail for rent: 4535 Bowness Road Nw, Calgary, Alberta T3B 0A9

View all 31 photos

About

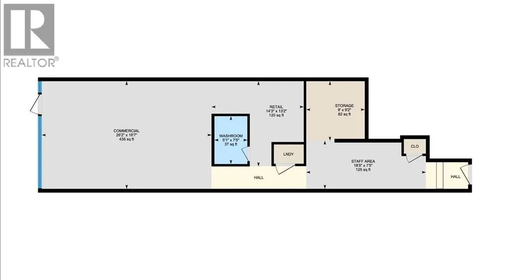
Take advantage of this 999 sq. ft. main-floor retail space in Montgomery Square, a vibrant mixed-use development located at Bowness Road NW and 16 Avenue NW. Designed by Amanda Hamilton, this unit is fully built-out and offers a turnkey retail opportunity. Existing retail fixtures valued at over $100,000 provide a rare chance to step in and begin operations immediately—without the added cost of a full build-out.The space features a welcoming front entrance, excellent storefront visibility with backlit channel signage, one bathroom, a closet, a fully enclosed room, and a kitchen equipped with a microwave, stove, and dishwasher. A washer and dryer are also included. Parking options include ample street parking, as well as one underground stall available under a separate lease for $100 per month.The neighbouring unit is also available for lease (1,200 sq. ft.), and the common wall can be removed to combine both spaces for a total of 2,199 sq. ft.Montgomery Square is part of a growing, pedestrian-friendly community envisioned under the Montgomery Area Redevelopment Plan. The location offers excellent visibility, easy access, and a lively streetscape that attracts both residents and visitors—making it an ideal location to grow your business. (id:27476)

Property Highlights

MLS® Number
A2279660
Type
Business
Community Name
Montgomery
Land Size
Unknown

Building

Building Type
Retail
Square Footage
999 sqft
Fireplace Present
No
Basement Type
Basement Features
Building Heating Type
Heating Fuel
Building Cooling Type

Location

Learn more about this property
Listing provided by:
Century 21 Bamber Realty LTD.
MLS® number:
A2279660
Agent:
Christian Ortiz Plata
*Indicates required field
Name is required
Email is required
Please enter a valid phone number (e.g., 416-111-1111).