138 Cranford Walk Se, Calgary, Alberta T3M 1R5

Listed for:
$459,900
3 beds
2 baths
Listed 26 days ago
Row / Townhouse for rent: 138 Cranford Walk Se, Calgary, Alberta T3M 1R5

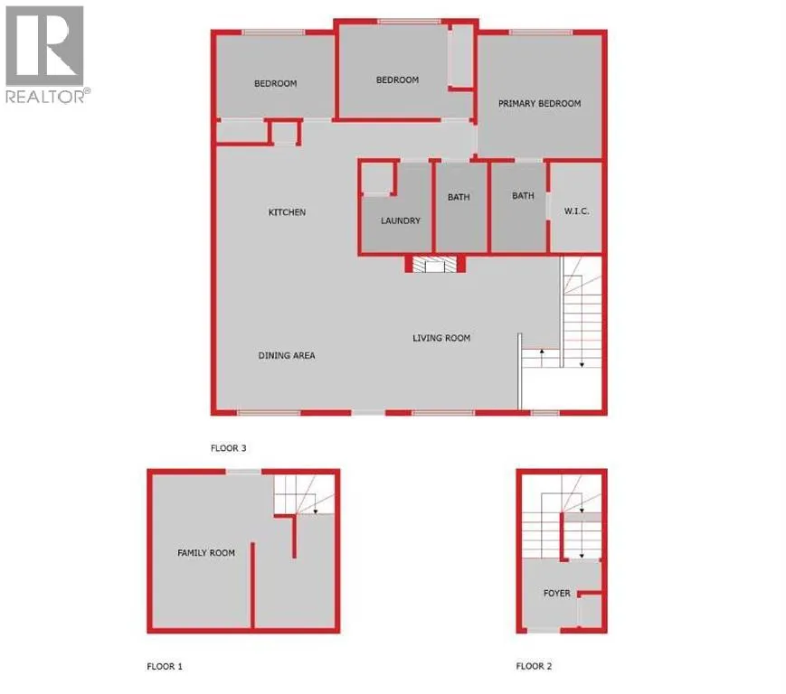
View all 31 photos

About

3 Bed, 2 Bath Stacked Townhome with Double Attached Garage. Welcome to this beautifully maintained and upgraded 3-bedroom, 2-bathroom stacked townhome in the vibrant and family-friendly community of Cranston in SE Calgary. With a private entrance at ground level and the entire living space located on the upper level, this home offers the rare benefit of no neighbours above you — ensuring quiet, comfortable living.Inside, you’ll find a bright, open-concept layout that flows seamlessly from the upgraded kitchen to the eating area and spacious living room. The kitchen features granite countertops, a large island, stainless steel appliances, and modern finishes — perfect for cooking and entertaining. The living room offers an inviting gas fireplace and access to your private balcony, ideal for relaxing or BBQing in the warmer months.The primary bedroom is generously sized and includes a stylish ensuite with tile flooring and an oversized shower. Two additional bedrooms provide space for kids, guests, or a home office, plus a second full bathroom and a convenient laundry area all on the same level.On the lower level, there’s a bonus flex room — perfect for storage, a gym, or a work-from-home space — and direct access to your double attached garage.Located just a block from local schools and walking distance to Cranston Market (featuring Sobeys, Good Earth Café, Berwick Public House, a vet, gas, and more), you’ll love the community feel and accessibility. You're also just minutes from Seton’s amenities, including the South Health Campus, YMCA, Cineplex, and restaurants.As a resident, you’ll enjoy access to the Cranston Residents Association, which offers a private recreation facility with a gym, tennis courts, a splash park, outdoor rink, and year-round programming for all ages.Whether you're a first-time buyer, a downsizer, or looking for low-maintenance living in a well-connected neighborhood — this is your opportunity to call Cranston home! (id:27476)

Property Highlights

MLS® Number
A2274859
Type
Single Family
Community Name
Cranston
Maintenance Fee
483.15
Ownership Type
Condominium/Strata
Land Size
Unknown
Parking Space Total
2

Building

Building Type
Row / Townhouse
Storeys
1.00
Square Footage
1344 sqft
Bathrooms Total
2
Bedrooms Above Ground
3
Bedrooms Total
3
Amenities
Schools, Shopping
Exterior Finish
Composite Siding
Fireplace Present
Yes
Basement Type
Partial (Unfinished)
Basement Features
Building Heating Type
Forced air
Heating Fuel
Natural gas
Building Cooling Type
Central air conditioning

Location

Learn more about this property
Listing provided by:
RE/MAX Realty Professionals
MLS® number:
A2274859
Agent:
Big John Peterson
*Indicates required field
Name is required
Email is required
Please enter a valid phone number (e.g., 416-111-1111).

Street Spotlight - For sale