904, 530 12 Avenue Sw, Calgary, Alberta T2R 0B1

Listed for:
$550,000
2 beds
2 baths
Listed 24 days ago
Apartment for rent: 904, 530 12 Avenue Sw, Calgary, Alberta T2R 0B1

View all 28 photos

About

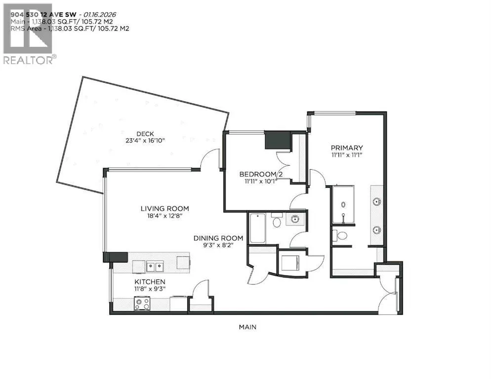
This one-of-a-kind, designer-influenced home in Castello is ready for you to move in and start living your best downtown life. Freshly painted with new carpet, the space immediately sets itself apart the moment you enter. A welcoming entry area offers ample seating to unwind after your day, while built-in speakers throughout the dining & living rooms, and primary suite create the perfect soundtrack for your life.Floor-to-ceiling windows flood the home with natural light, highlighting the modern, linear feel of the layout. Step out onto the massive 300-square-foot terrace—ideal for outdoor dining, lounging, or entertaining. A natural gas sub provides endless fuel for the BBQ or fire table, making evenings on the terrace effortlessly memorable.The kitchen is a chef’s dream with quartz countertops, stainless steel backsplash, espresso cabinetry with striking bronze hardware, floor-to-ceiling windows, a large pantry, peninsula island with built-in beverage fridge, and an eating bar—perfect for entertaining or quick weekday meals. Custom HUPPE wall systems maximize storage without compromising style.The primary suite offers a lavish ensuite with dual sinks, glass-enclosed shower, and walk-in closet with custom built-ins. The second bedroom is ideal for guests or a home office. Designer lighting, new plumbing fixtures, in-suite laundry, and built-in speakers complete the thoughtful touches throughout.Castello’s exclusive amenities elevate city living: concierge service, fitness center, guest suite, heated/secure parking, and a car wash bay. With only five units per floor in this concrete-built building, privacy and quiet are guaranteed.Perfectly positioned in the heart of downtown Calgary, you’re steps from restaurants, cafés, pubs, bike lanes, grocery stores, parks, and wellness centers. Access nearby healthcare, including Sheldon Chumir, and even a pet-friendly hospital within the block.Luxury, convenience, and thoughtful design come together in this excepti onal downtown residence—perfect for the professional who wants it all. (id:27476)

Property Highlights

MLS® Number
A2280747
Type
Single Family
Community Name
Beltline
Maintenance Fee
930.26
Ownership Type
Condominium/Strata
Land Size
Unknown
Parking Space Total
2

Building

Building Type
Apartment
Storeys
19.00
Square Footage
1138 sqft
Bathrooms Total
2
Bedrooms Above Ground
2
Bedrooms Total
2
Amenities
Car Wash, Exercise Centre, Guest Suite Recreation Nearby, Shopping
Exterior Finish
Concrete, Stone
Fireplace Present
No
Basement Type
Basement Features
Building Heating Type
Heating Fuel
Building Cooling Type
Central air conditioning

Location

Learn more about this property
Listing provided by:
Royal LePage Benchmark
MLS® number:
A2280747
Agent:
Julie C. Dempsey
*Indicates required field
Name is required
Email is required
Please enter a valid phone number (e.g., 416-111-1111).

Street Spotlight - For sale