15 Chaparral Crescent Se, Calgary, Alberta T2X 3K7

Listed for:
$729,900
4 beds
4 baths
Listed 24 days ago
House for rent: 15 Chaparral Crescent Se, Calgary, Alberta T2X 3K7

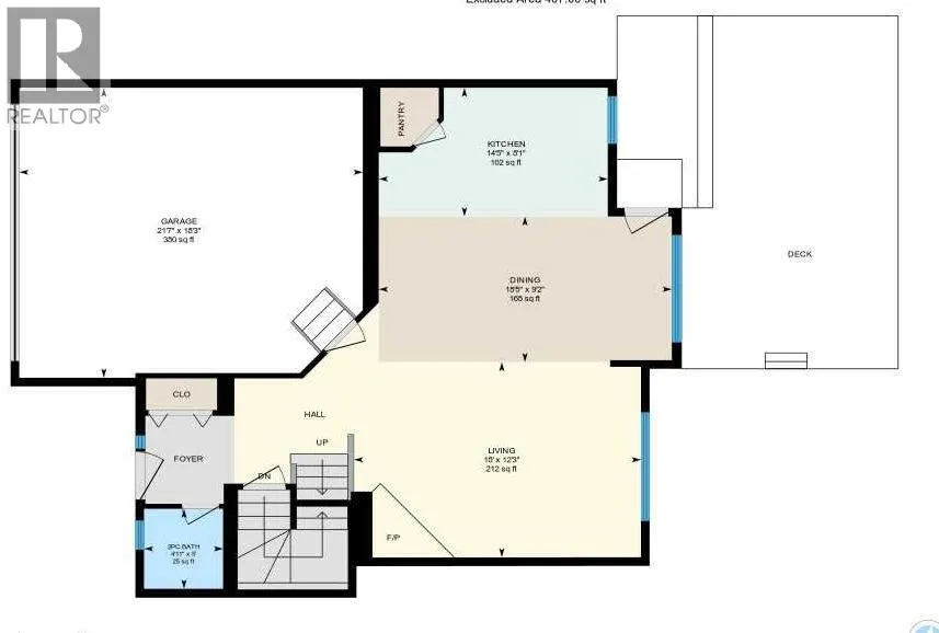
View all 50 photos

About

Discover the ultimate setup for hobbyists, mechanics, and car enthusiasts in this beautifully updated Lake Chaparral home. Offering 1,760 sq. ft. of above-grade living space plus a fully developed basement, this property is defined by its rare dual-garage configuration: a front-drive double garage plus an oversized, detached rear garage. Both are equipped with in-floor heating, and the detached shop boasts a 60-amp subpanel and 220V outlet—perfect for when you need it! Major big ticket upgrades also include Hardie board siding, new windows and doors, and a new roof. Stepping inside, you are welcomed by an open-concept main floor featuring fresh paint, updated flooring, and modern lighting. The kitchen features under cabinet and in cabinet lighting, stainless steel appliances including a built-in microwave, flowing seamlessly into a living room anchored by a cozy corner gas fireplace. Upstairs, you’ll find a spacious bonus room and a convenient laundry room. The primary retreat offers an updated ensuite with a freestanding soaker tub and walk-in tiled shower. Downstairs, the basement is warm and inviting thanks to in-floor heating and includes space for recreation, an extra bedroom, and a half bath. The home also offers the convenience of air conditioning for added comfort year-round.Enjoy a west-facing, private, compact backyard with plenty of storage space. Located just one block from the lake entrance, you'll enjoy exclusive access to Lake Chaparral’s year-round amenities: swimming, fishing, tennis, pickleball, parks, and pathways. Two elementary schools are within walking distance, and shops are close by.This home offers a unique lifestyle package and is ideal for buyers who prioritize garage space, easy-to-care-for outdoor areas, and excellent community amenities. Schedule your showing and see the advantages for yourself. (id:27476)

Property Highlights

MLS® Number
A2280399
Type
Single Family
Community Name
Chaparral
Ownership Type
Freehold
Land Size
421 m2|4,051 - 7,250 sqft
Parking Space Total
7

Building

Building Type
House
Storeys
2.00
Square Footage
1760 sqft
Bathrooms Total
4
Bedrooms Above Ground
3
Bedrooms Total
4
Amenities
Clubhouse, Party Room, Recreation Centre Golf Course, Park, Playground, Recreation Nearby, Schools, Shopping, Water Nearby
Exterior Finish
Concrete
Fireplace Present
Yes
Basement Type
Full (Finished)
Basement Features
Building Heating Type
Forced air, In Floor Heating
Heating Fuel
Building Cooling Type
Central air conditioning

Location

Learn more about this property
Listing provided by:
Real Broker
MLS® number:
A2280399
Agent:
Tanya Maksymic
*Indicates required field
Name is required
Email is required
Please enter a valid phone number (e.g., 416-111-1111).

Street Spotlight - For sale