3001, 433 11 Avenue Se, Calgary, Alberta T2G 0C7

Listed for:
$1,450,000
2 beds
3 baths
Listed 21 days ago
Apartment for rent: 3001, 433 11 Avenue Se, Calgary, Alberta T2G 0C7

View all 36 photos

About

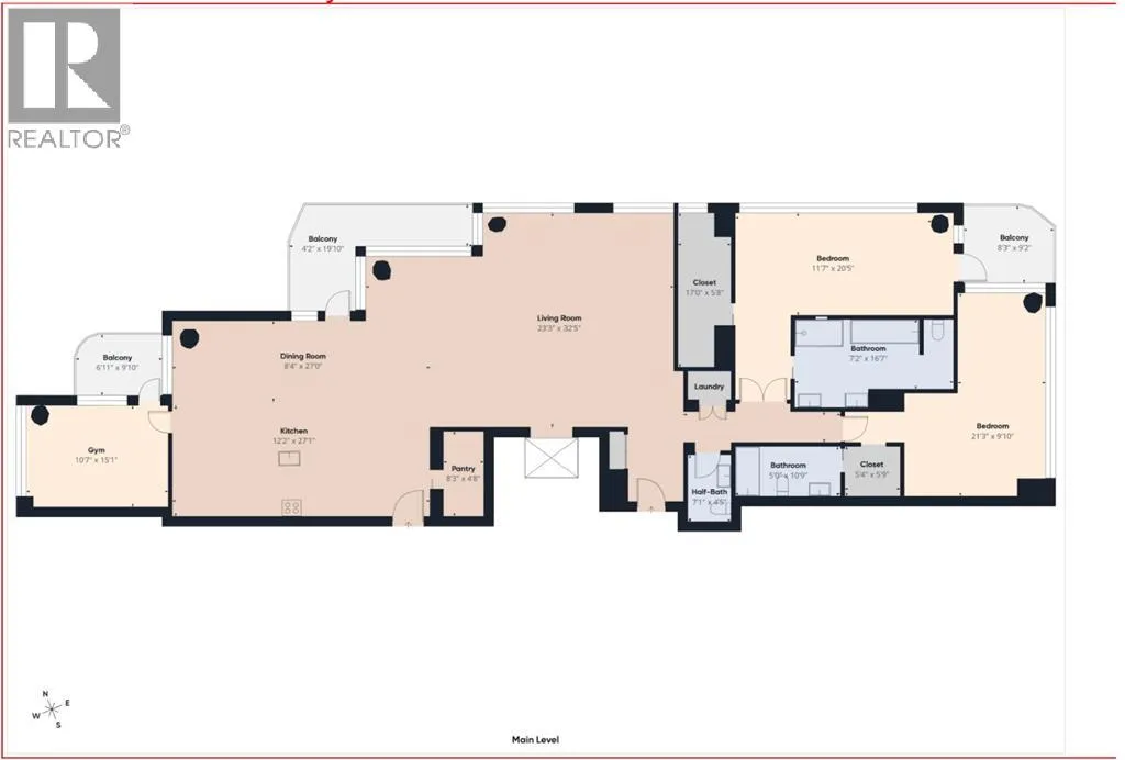
Your day begins with the soft glow of the morning sun spilling through floor-to-ceiling windows, offering panoramic views of downtown Calgary from every room. After a workout in your private home gym, you enjoy breakfast at the leathered granite counter perfectly positioned by the window to take in the city skyline. This 2,600+ sq ft sanctuary is a masterclass in executive hosting; as evening nears, the gentle trickle of the custom stone waterfall sets the mood while you select a vintage from your full-size, dual-zone wine fridge. Whether you are preparing drinks at the sophisticated leathered granite dry bar or a gourmet meal using the suite's high-end appliances, the space flows effortlessly for any occasion. The layout offers unmatched privacy with two spacious primary bedrooms, each featuring its own ensuite—including a lavish 5-piece spa retreat in the main suite. When you’re ready to head out, your private elevator opens directly into your suite, whisking you down to the vibrant pulse of the Beltline. You are perfectly positioned in the new Entertainment District, just steps from the new Calgary Flames arena, Stampede grounds, and river pathways. Living at the Arriva means effortless luxury, supported by 24-hour security and concierge services, a rooftop garden, owner’s lounge, guest suites, and central A/C—all complemented by modern updates including a new washer and ventless dryer. (id:27476)

Property Highlights

MLS® Number
A2287345
Type
Single Family
Community Name
Beltline
Maintenance Fee
2217.00
Ownership Type
Condominium/Strata
Land Size
Unknown
Parking Space Total
2

Building

Building Type
Apartment
Storeys
34.00
Square Footage
2607 sqft
Bathrooms Total
3
Bedrooms Above Ground
2
Bedrooms Total
2
Amenities
Guest Suite, Party Room, Recreation Centre
Exterior Finish
Concrete
Fireplace Present
Yes
Basement Type
Basement Features
Building Heating Type
Baseboard heaters
Heating Fuel
Building Cooling Type
Central air conditioning

Location

Learn more about this property
Listing provided by:
The Real Estate District
MLS® number:
A2287345
Agent:
Paul Singh Bal
*Indicates required field
Name is required
Email is required
Please enter a valid phone number (e.g., 416-111-1111).

Street Spotlight - For sale