2401 17 Street Sw, Calgary, Alberta T2T 4M9

Listed for:
$580,000
2 beds
2 baths
Listed 10 days ago
Row / Townhouse for rent: 2401 17 Street Sw, Calgary, Alberta T2T 4M9

View all 44 photos

About

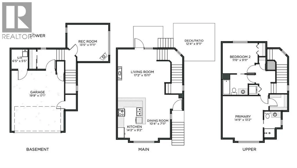
Fantastic end-unit townhome in the heart of Bankview offering a rare double car garage and an incredible rooftop patio! With 1,564 square feet of thoughtfully designed living space, this is an exceptional opportunity to live walking distance to downtown and directly across from a large park and tennis courts. Step inside to a welcoming open-concept main floor featuring 9-foot ceilings and a spacious layout designed for both everyday living and entertaining. The dedicated dining area easily accommodates a large table, while the impressive U-shaped kitchen offers stainless steel appliances, granite countertops, abundant cabinetry, and generous counter space. Enjoy beautiful park views right from your window as the kitchen flows seamlessly into the expansive living room, centred around a cozy gas fireplace with a designated nook for a desk or workspace.French doors lead to the show-stopping outdoor space — a private patio that wraps around to stairs leading up to the massive rooftop terrace, perfect for entertaining, relaxing, and enjoying the surrounding views. Upstairs you’ll find two well-sized bedrooms, two full bathrooms, and convenient upper-floor laundry. The primary suite is generously sized with large windows overlooking the park, an updated ensuite bathroom, and a walk-in closet.Between the main level and lower level, you’ll discover a fantastic and unique recreation room exclusive to this unit — ideal for a man cave, movie room, home office, or flex space. Complete with a second gas fireplace and beautiful California shutters, it’s a cozy and versatile retreat. The double attached garage truly feels like an extension of the home, featuring epoxy flooring, space for two vehicles, and two dedicated storage areas.Additional upgrades include triple-pane windows (2023), a high-efficiency furnace, heat pump, tankless water heater, water softener, humidifier and thermostat (2022), along with updated paint, bathrooms, fixtures and more. Low condo fees of $367 per month and an unbeatable location make this home a standout opportunity. This impressive Bankview townhome truly has it all — space, style, updates, and exceptional outdoor living. Be sure to review the attached feature sheet for a complete list of upgrades and features. (id:27476)

Property Highlights

MLS® Number
A2287457
Type
Single Family
Community Name
Bankview
Maintenance Fee
367.72
Ownership Type
Bare Land Condo/Strata
Land Size
198 m2|0-4,050 sqft
Parking Space Total
4

Building

Building Type
Row / Townhouse
Storeys
3.00
Square Footage
1564 sqft
Bathrooms Total
2
Bedrooms Above Ground
2
Bedrooms Total
2
Amenities
Playground, Recreation Nearby, Schools, Shopping
Exterior Finish
Stucco
Fireplace Present
Yes
Basement Type
None
Basement Features
Building Heating Type
Forced air, Heat Pump
Heating Fuel
Electric, Natural gas
Building Cooling Type
Central air conditioning

Location

Learn more about this property
Listing provided by:
Sotheby's International Realty Canada
MLS® number:
A2287457
Agent:
Kimberly Courchesne
*Indicates required field
Name is required
Email is required
Please enter a valid phone number (e.g., 416-111-1111).

Street Spotlight - For sale