320, 68, 7930 Bowness Road Nw, Calgary, Alberta T3B 0H3

Listed for:
$12
0 beds
0 baths
Listed 80 days ago
Offices for rent: 320, 68, 7930 Bowness Road Nw, Calgary, Alberta T3B 0H3

View all 5 photos

About

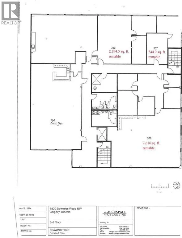
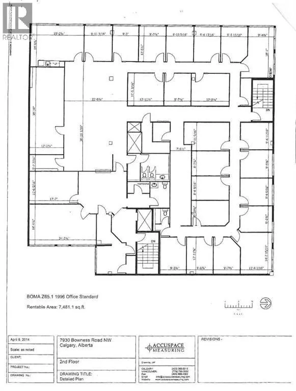
Entire 2nd floor, 7,481 sq. ft. of secure well developed space with abundant natural light, former formerly occupied by Child Family services space. 3rd floor suite of 2,394 sq. ft., can be subdivided. Elevator access, excellent parking, below market rates including utilities, and great Bowness Road location. 3 story retail /office building with elevator access. Landlord completing upgrades to common areas. Accessible location with public transit and close proximity to Hwy 1, Sarcee Trail, Stoney Trail, Crowchild Trail and Downtown. Ample front parking. (id:27476)

Property Highlights

MLS® Number
A2286147
Type
Office
Community Name
Bowness
Land Size
Unknown

Building

Building Type
Offices
Square Footage
2395 sqft
Fireplace Present
No
Basement Type
Basement Features
Building Heating Type
Heating Fuel
Building Cooling Type

Location

Learn more about this property
Listing provided by:
Century 21 Bamber Realty LTD.
MLS® number:
A2286147
Agent:
Paul Loutitt
*Indicates required field
Name is required
Email is required
Please enter a valid phone number (e.g., 416-111-1111).