120 8 Avenue Nw, Calgary, Alberta T2M 0A4

Listed for:
$2,199,000
5 beds
4 baths
Listed 26 days ago
House for rent: 120 8 Avenue Nw, Calgary, Alberta T2M 0A4

View all 9 photos

About

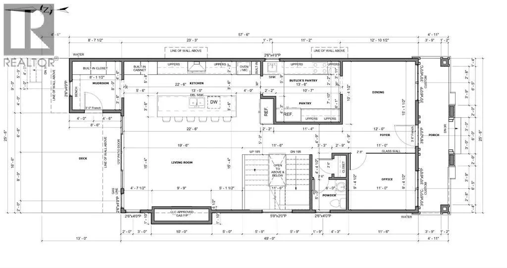
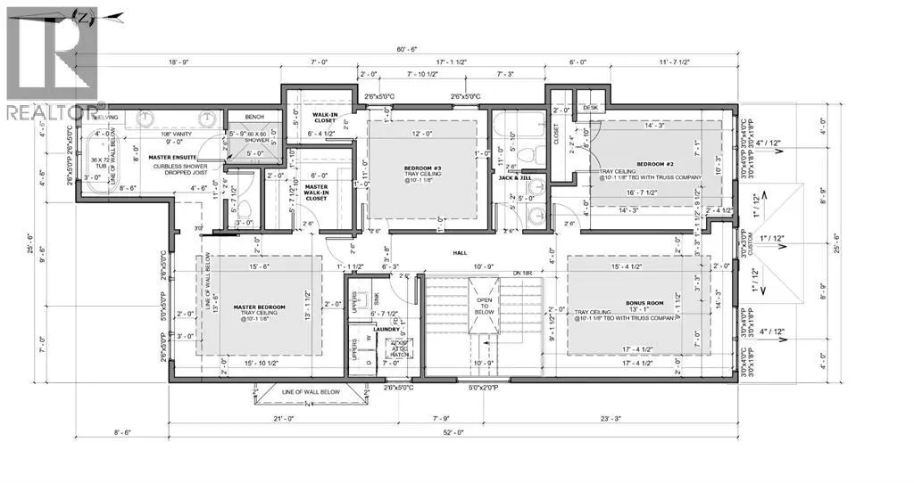
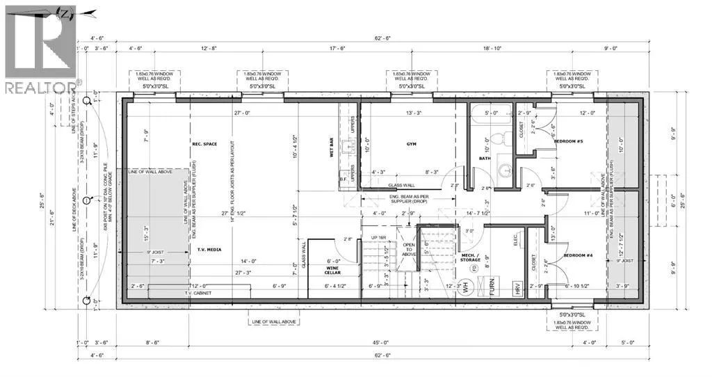
The Ultimate Inner-City Location – Steps from Crescent Park! Enjoy life just moments from tennis and basketball courts, a skating rink, playground, curling rink, and two baseball diamonds. Tucked away behind Crescent Road in a quiet setting, this home is within walking distance to downtown, Prince’s Island, St. Patrick’s Island, and the Bow River pathways. Bordering Rosedale, it offers stunning city, river, and mountain views.This custom-built 5-bedroom home boasts over 4,200 sq. ft. of luxurious living space, blending timeless design with modern comfort. Featuring 10’ceilings in basement and main floor and 9’ ceilings on upper floor with all rooms having tray ceilings, a massive chef’s kitchen with quartz counters and a butler’s pantry, high end JENN AIR appliances, black triple pane high efficiency windows, the open-concept layout flows seamlessly into the elegant living room with fireplace and French doors leading to a beautiful backyard oasis. The main floor also includes a spacious office and a formal dining room with city views. Upstairs, enjoy a bonus room, two additional bedrooms, and a private master retreat with barrel ceilings, fireplace, city views, a spa-like 5-piece en-suite, and a walk-in closet. The upstairs laundry adds extra convenience. The fully finished lower level features a media room, bar, gym, wine cellar, two more bedrooms, and a custom 4-piece bath—perfect for family or guests. This is truly a rare find in one of Calgary’s most desirable inner-city locations. (id:27476)

Property Highlights

MLS® Number
A2291389
Type
Single Family
Community Name
Crescent Heights
Ownership Type
Freehold
Land Size
373 m2|0-4,050 sqft
Parking Space Total
2

Building

Building Type
House
Storeys
2.00
Square Footage
2771 sqft
Bathrooms Total
4
Bedrooms Above Ground
3
Bedrooms Total
5
Amenities
Park, Playground, Recreation Nearby, Schools
Exterior Finish
Brick, Stucco
Fireplace Present
Yes
Basement Type
Full (Finished)
Basement Features
Building Heating Type
Forced air
Heating Fuel
Natural gas
Building Cooling Type
Central air conditioning

Location

Learn more about this property
Listing provided by:
eXp Realty
MLS® number:
A2291389
Agent:
Jobanpreet Brar
*Indicates required field
Name is required
Email is required
Please enter a valid phone number (e.g., 416-111-1111).

Street Spotlight - For sale