6428 33 Avenue Nw, Calgary, Alberta T3B 1L1

Listed for:
$950,000
5 beds
4 baths
Listed 22 days ago
Duplex for rent: 6428 33 Avenue Nw, Calgary, Alberta T3B 1L1

View all 7 photos

About

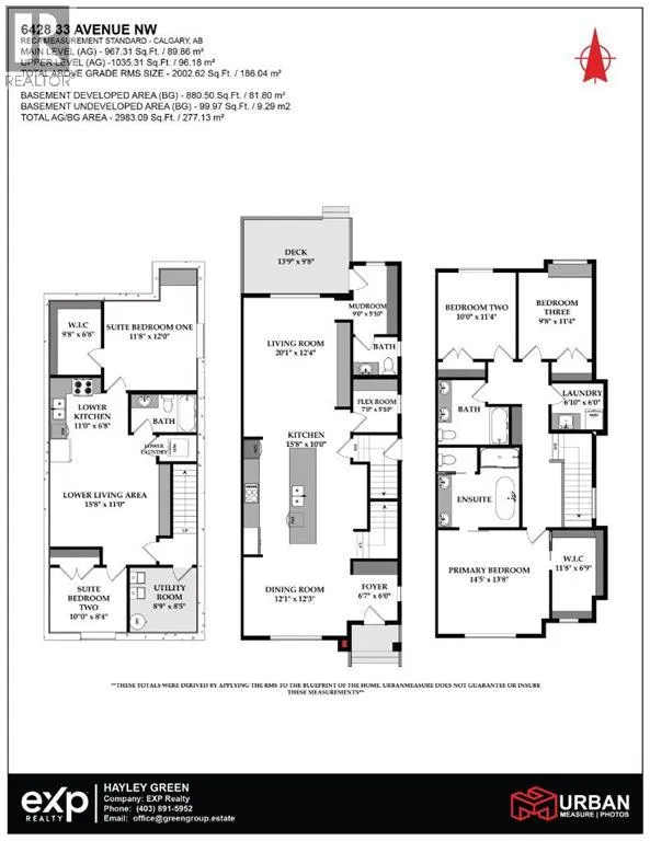
Experience refined living in this exceptional new 5-bedroom, 4-bathroom luxury duplex in the highly sought-after community of Bowness. Offering over 2,900 sq. ft. of meticulously designed living space and a projected completion of June 2026, this residence blends sophisticated design with modern functionality. The foyer opens to soaring 10-foot ceilings and an open-concept layout. The main floor features a spacious dining area, and a gourmet chef’s kitchen appointed with sleek, modern appliances, premium finishes, and ample workspace. Just off the kitchen, a versatile flex space offers the perfect setting for a home office. The main living area flows into an elegant living room centred with an electric fireplace. Upstairs, the primary bedroom offers a spacious walk-in closet and a spa inspired 5-piece ensuite. Two additional bedrooms, a 5-piece bathroom, and a convenient upper-level laundry room complete the upper floor. Adding incredible versatility, the legal basement suite includes a separate private entrance, two bedrooms, a 4-piece bathroom, and its own laundry. This space makes it ideal for extended family, guests, or generating rental income. Outdoors, the private deck is accompanied by fully a landscaped and fenced backyard. Located in the vibrant and evolving community of Bowness, residents enjoy easy access to scenic river pathways, parks, and year-round recreation at nearby destinations such as Bowness Park and WinSport. With quick connections to downtown Calgary, major roadways, and the Rocky Mountains, Bowness offers an exceptional lifestyle that blends urban convenience with outdoor adventure. The neighbouring unit (6430) is also available. (id:27476)

Property Highlights

MLS® Number
A2291937
Type
Single Family
Community Name
Bowness
Ownership Type
Freehold
Land Size
566 m2|4,051 - 7,250 sqft
Parking Space Total
2

Building

Building Type
Duplex
Storeys
2.00
Square Footage
2003 sqft
Bathrooms Total
4
Bedrooms Above Ground
3
Bedrooms Total
5
Amenities
Playground, Schools, Shopping
Exterior Finish
Brick, Concrete, Stucco
Fireplace Present
Yes
Basement Type
Full (Finished)
Basement Features
Separate entrance, Suite
Building Heating Type
Central heating
Heating Fuel
Building Cooling Type
None

Location

Learn more about this property
Listing provided by:
eXp Realty
MLS® number:
A2291937
Agent:
Hayley Green
*Indicates required field
Name is required
Email is required
Please enter a valid phone number (e.g., 416-111-1111).

Street Spotlight - For sale