2, 1930 24a Street Sw, Calgary, Alberta T3E 1V3

Listed for:
$499,900
2 beds
2 baths
Listed 21 days ago
Row / Townhouse for rent: 2, 1930 24a Street Sw, Calgary, Alberta T3E 1V3

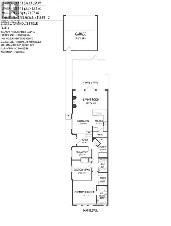
View all 28 photos

About

Welcome to comfortable inner-city living in the vibrant community of Killarney. This beautifully maintained bungalow-style townhome offers the perfect blend of style, comfort, and convenience in a quiet residential setting, just moments from the energy of 17th Avenue.Freshly painted throughout, the home feels bright and inviting from the moment you step inside. Large windows fill the space with natural light, highlighting the dramatic 12-foot ceilings, luxury vinyl plank and slate flooring, and the warmth of in-floor heating. The open design creates a welcoming flow that’s ideal for both relaxing and entertaining.The kitchen is thoughtfully designed with an eating bar, pantry, new black double sink, and stylish new backsplash, making it both functional and attractive for everyday living. Just off the main living area, step outside to your cozy, private fenced patio—a perfect spot to enjoy a quiet morning coffee or unwind at the end of the day.This spacious home offers over 1,200 sq. ft. of living space with two bedrooms and a versatile den area ideal for a home office. The generous primary bedroom features a walk-in closet and a private ensuite with a jetted soaker tub and separate shower, creating a comfortable retreat. A second full bathroom adds convenience for guests or family.The well-maintained complex consists of only four units and is self-managed, helping keep condo fees low while maintaining pride of ownership throughout.You’ll appreciate the convenience of your garage parking stall at the rear, along with easy access to 17th Avenue, Crowchild Trail, parks, playgrounds, schools, transit, shops, and restaurants.If you’re looking for bright, low-maintenance inner-city living in one of Calgary’s most loved neighbourhoods, this Killarney gem is a must see. BOOK YOUR APPOINTMENT TODAY. Some of the photos have been virtually staged. (id:27476)

Property Highlights

MLS® Number
A2292046
Type
Single Family
Community Name
Richmond
Maintenance Fee
325.00
Ownership Type
Condominium/Strata
Land Size
Unknown
Parking Space Total
1

Building

Building Type
Row / Townhouse
Storeys
1.00
Square Footage
1280 sqft
Bathrooms Total
2
Bedrooms Above Ground
2
Bedrooms Total
2
Amenities
Park, Playground, Recreation Nearby, Schools, Shopping
Exterior Finish
Stucco, Vinyl siding
Fireplace Present
Yes
Basement Type
None
Basement Features
Building Heating Type
In Floor Heating
Heating Fuel
Natural gas
Building Cooling Type
None

Location

Learn more about this property
Listing provided by:
Real Broker
MLS® number:
A2292046
Agent:
Dave E. Gowryluk
*Indicates required field
Name is required
Email is required
Please enter a valid phone number (e.g., 416-111-1111).

Street Spotlight - For sale