186 Covecreek Place Ne, Calgary, Alberta T3K 0L3

Listed for:
$668,800
5 beds
4 baths
Listed 13 days ago
House for rent: 186 Covecreek Place Ne, Calgary, Alberta T3K 0L3

View all 50 photos

About

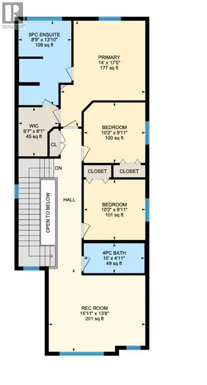
***OPEN HOUSES -- SATURDAY, APRIL 4TH FROM 11AM-2PM -- SATURDAY, APRIL 11TH FROM 10AM-1PM *** Where to even begin! So many features... Starting outside, you’ll love the impressive 29’ front driveway and the beautifully finished backyard featuring stamped concrete and a gas line for effortless BBQing. The yard offers plenty of space for kids to run and even the potential to add a garage or shed (with approval). The exterior has been extensively updated with a newer roof and flashing, replaced siding along the north side, plus new gutters and downspouts. Durable metal cladding at the front adds a modern touch while keeping maintenance simple—just posts and a beam to paint. Additional features like custom window well covers and a recently serviced A/C add to the home’s comfort and peace of mind.Step inside to a bright and inviting main floor, where a spacious living, dining, and kitchen area is anchored by a cozy gas fireplace and large windows. The pull-through pantry—with storage on both sides—is perfect for busy families, while the laundry and mudroom provide convenient access to the garage. The stunning open-to-above design creates an airy, welcoming feel as you head upstairs.Upstairs, you’ll find two generously sized kids’ bedrooms (Both with built in closet inserts), a bonus room at the front of the home perfect for play or relaxation, and an extra-long main bathroom with the option to add a second sink. The primary suite is tucked away at the back, offering a true retreat with a massive closet, double vanities, a soaker tub, and a large shower—plus plenty of room for a full king-sized bedroom set.The fully finished basement is designed for both comfort and functionality, featuring upgraded cozy carpet, spray foam insulation in the exterior walls, and added ceiling insulation for extra warmth and quiet. Down here, you’ll find a spacious rec room, a beautiful full bathroom with custom cabinetry and a shower niche, and two large bedrooms complete with wainscotti ng and custom closets.To top it all off, the garage is equipped with a newer door (replaced in 2021) and upgraded opener, rounding out this well-maintained and move-in ready home. You better come check it out today! (id:27476)

Property Highlights

MLS® Number
A2294333
Type
Single Family
Community Name
Coventry Hills
Ownership Type
Freehold
Land Size
384 m2|4,051 - 7,250 sqft
Parking Space Total
4

Building

Building Type
House
Storeys
2.00
Square Footage
2001 sqft
Bathrooms Total
4
Bedrooms Above Ground
3
Bedrooms Total
5
Amenities
Park, Playground, Recreation Nearby, Schools, Shopping
Exterior Finish
Stone
Fireplace Present
Yes
Basement Type
Full (Finished)
Basement Features
Building Heating Type
Forced air
Heating Fuel
Building Cooling Type
Central air conditioning

Location

Learn more about this property
Listing provided by:
CIR Realty
MLS® number:
A2294333
Agent:
Ali Larsen
*Indicates required field
Name is required
Email is required
Please enter a valid phone number (e.g., 416-111-1111).