9085 Cityscape Drive Ne, Calgary, Alberta T3J 4G1

Listed for:
$447,990
3 beds
3 baths
Listed 13 days ago
Row / Townhouse for rent: 9085 Cityscape Drive Ne, Calgary, Alberta T3J 4G1

View all 2 photos

About

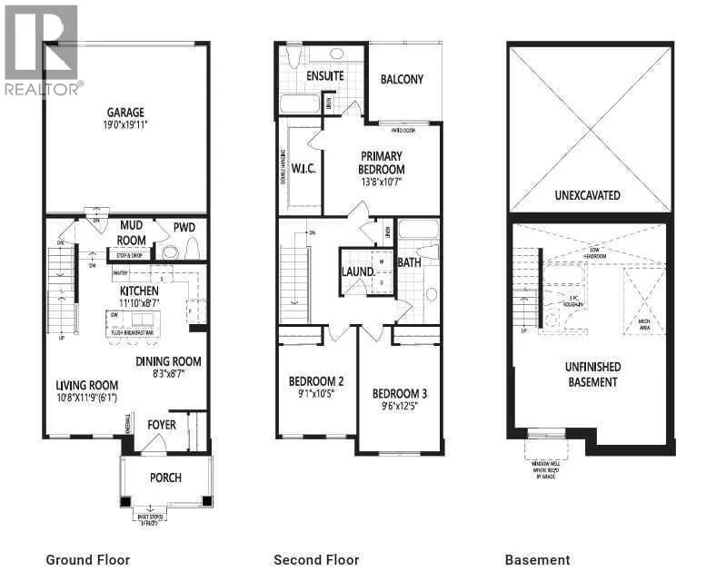
Click brochure link for more details** The Fisher welcomes you through a bright foyer into an open main floor where the living and dining areas connect effortlessly. The L-shaped kitchen sits at the heart of the home, featuring a central quartz island with breakfast bar seating and ample counter space for daily routines or hosting guests. At the rear, a practical mudroom with garage access and a discreet powder room keep the main level organized and functional. Upstairs, bedrooms two and three are positioned near a full bathroom and laundry room and linen storage conveniently located nearby. At the back of the home, the primary bedroom offers a private balcony, generous walk-in closet and extra-large ensuite, creating a comfortable retreat that feels both separate and connected. Mattamy includes 8 solar panels on all homes as a standard inclusion! *Renderings are representative - exterior colours may vary. (id:27476)

Property Highlights

MLS® Number
A2294744
Type
Single Family
Community Name
Cityscape
Ownership Type
Freehold
Land Size
120.8 m2|0-4,050 sqft
Parking Space Total
2

Building

Building Type
Row / Townhouse
Storeys
2.00
Square Footage
1380 sqft
Bathrooms Total
3
Bedrooms Above Ground
3
Bedrooms Total
3
Amenities
Airport, Park, Playground, Schools, Shopping
Exterior Finish
Vinyl siding
Fireplace Present
No
Basement Type
Full (Unfinished)
Basement Features
Building Heating Type
Forced air
Heating Fuel
Natural gas
Building Cooling Type
None

Location

Learn more about this property
Listing provided by:
Honestdoor Inc.
MLS® number:
A2294744
Agent:
Michelle Plach
*Indicates required field
Name is required
Email is required
Please enter a valid phone number (e.g., 416-111-1111).

Street Spotlight - For sale