1928 Home Road Nw, Calgary, Alberta T1X 0Y4

Listed for:
$1,099,000
0 beds
0 baths
Listed 32 days ago
1928 Home Road Nw, Calgary, Alberta T1X 0Y4

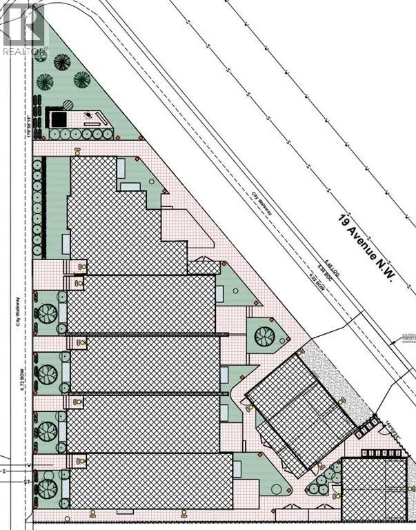
View all 19 photos

About

OVER 10,000 SQFT LOT! DP IN PLACE!! READY TO BUILD! LUXURY TOWNHOMES PERFECT FOR SEPERATE TITLED SALES! (Potentially 2 additional adjacent 50x120ft lots available should you be looking for even more development land!) Exceptional development opportunity in the heart of Montgomery! Situated on a massive corner lot, this property comes with development permits already in place for five executive townhomes, each featuring its own legal suite, plus a total of 5 garages. With professionally designed plans by one of Calgary’s top designers, this is a turnkey, ready-to-break-ground project—and not your typical small-scale townhome development. The thoughtfully designed site also includes ample green space for residents, enhancing livability and long-term appeal.Ideally located close to numerous amenities, public transit, the University of Calgary, and the Foothills Hospital, this site also offers quick access to major roadways and an easy escape to the mountains. Montgomery continues to be one of Calgary’s most sought-after inner-city communities, making this an excellent opportunity for builders and investors alike.Perfect for rental income, MLI select, or resale, this is a rare chance to secure a premium development on a standout lot in a prime location. (id:27476)

Property Highlights

MLS® Number
A2295227
Type
Vacant Land
Community Name
Montgomery
Ownership Type
Freehold
Land Size
970 m2|7,251 - 10,889 sqft

Building

Fireplace Present
No
Basement Type
Basement Features
Building Heating Type
Heating Fuel
Building Cooling Type

Location

Learn more about this property
Listing provided by:
The Real Estate District
MLS® number:
A2295227
Agent:
Adil Thobani
*Indicates required field
Name is required
Email is required
Please enter a valid phone number (e.g., 416-111-1111).