2202, 1850 80 Street Sw, Calgary, Alberta T3H 3W5

Listed for:
$621,600
3 beds
2 baths
Listed 1 day ago
Apartment for rent: 2202, 1850 80 Street Sw, Calgary, Alberta T3H 3W5

View all 26 photos

About

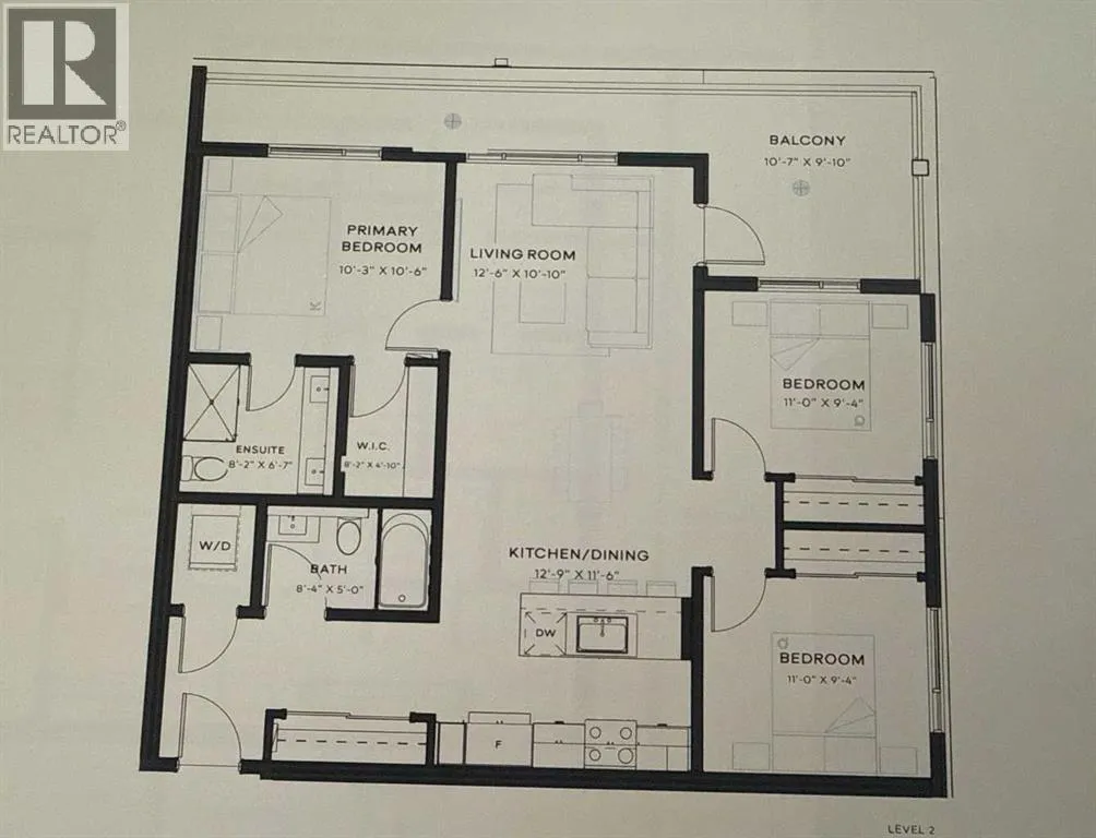
Welcome to Aspen Village by Vesta Properties! This is modern urban living in a thoughtfully designed 3-bedroom residence offering exceptional functionality, contemporary finishes, and a vibrant lifestyle setting. Featuring an open-concept layout, this home combines comfort and style with a spacious living area and designer kitchen ideal for both everyday living and entertaining.The sleek kitchen showcases quartz countertops, full-height cabinetry, under-mount sinks, and a large central island with pendant lighting. Energy-efficient stainless-steel appliances and in-suite laundry provide both convenience and modern efficiency. The primary suite offers a private retreat complete with a walk-in closet and elegant ensuite, while two additional bedrooms provide flexibility for family living, guests, or a stylish home office. A well-appointed main bathroom features clean modern detailing, quartz surfaces, and timeless fixtures.Durable luxury vinyl plank flooring flows throughout, complemented by curated interior palettes and contemporary ceiling finishes. Enjoy outdoor relaxation and entertaining on your oversized private balcony. Built with quality construction standards including triple-pane windows, engineered floor systems, and enhanced soundproofing, this home offers comfort, quiet, and energy efficiency.Residents will have the opportunity to join the members-only Aspen Club, a private amenity hub featuring collaborative workspaces, lounge areas, a state-of-the-art fitness centre and spin studio, yoga and games rooms, and beautifully designed rooftop gathering spaces. Aspen Village will also feature a vibrant Urban Village with over 60,000 sq. ft. of planned retail and services, including boutique shopping, cafés, dining, wellness studios, daycare, medical services, and everyday conveniences—creating a truly connected and walkable community atmosphere.Ideally positioned close to transit, parks, shopping, and key lifestyle amenities, this residence pre sents an exceptional opportunity for families, downsizers, or investors seeking long-term value in one of Calgary’s most exciting emerging communities. Anticipated possession is scheduled for 2027. (id:27476)

Property Highlights

MLS® Number
A2296637
Type
Single Family
Community Name
Springbank Hill
Maintenance Fee
472.92
Ownership Type
Condominium/Strata
Land Size
Unknown
Parking Space Total
1

Building

Building Type
Apartment
Storeys
6.00
Square Footage
1126 sqft
Bathrooms Total
2
Bedrooms Above Ground
3
Bedrooms Total
3
Amenities
Exercise Centre, Party Room Park, Playground, Schools, Shopping
Exterior Finish
Concrete
Fireplace Present
No
Basement Type
Basement Features
Building Heating Type
Baseboard heaters
Heating Fuel
Building Cooling Type
Central air conditioning

Location

Learn more about this property
Listing provided by:
LPT Realty
MLS® number:
A2296637
Agent:
Travis Collins
*Indicates required field
Name is required
Email is required
Please enter a valid phone number (e.g., 416-111-1111).

Street Spotlight - For sale