2412 1 Avenue Nw, Calgary, Alberta T2N 0B9

Listed for:
$1,495,000
5 beds
5 baths
Listed 8 days ago
House for rent: 2412 1 Avenue Nw, Calgary, Alberta T2N 0B9

View all 12 photos

About

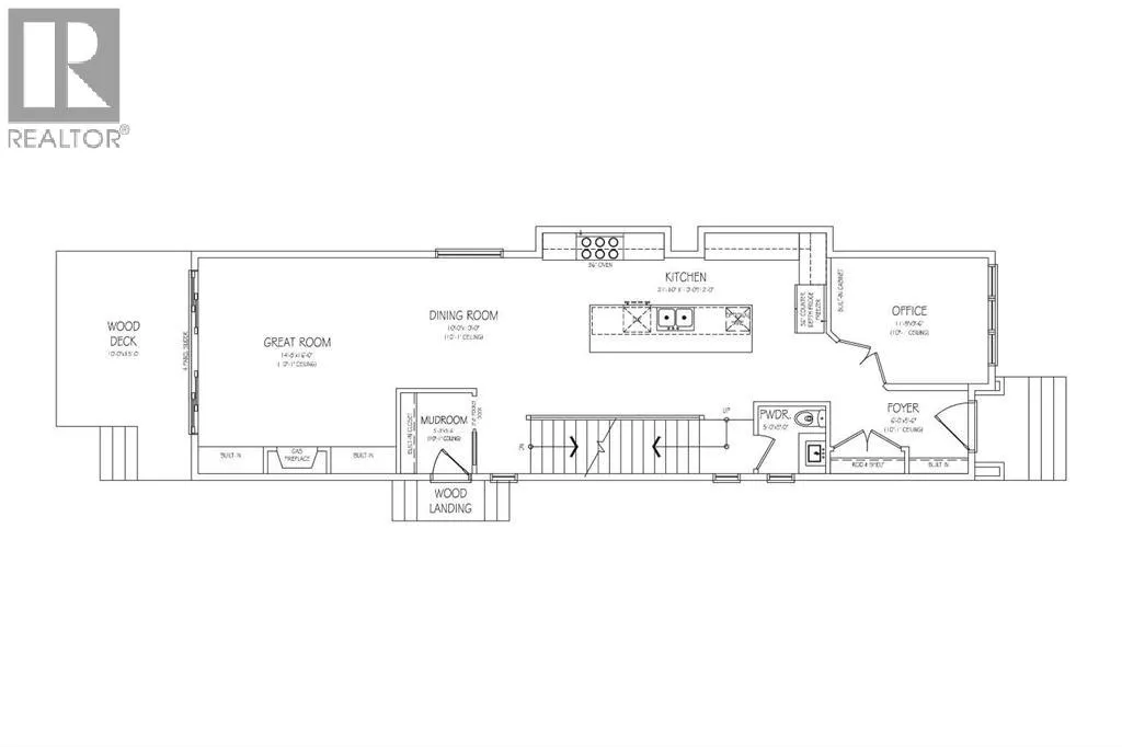
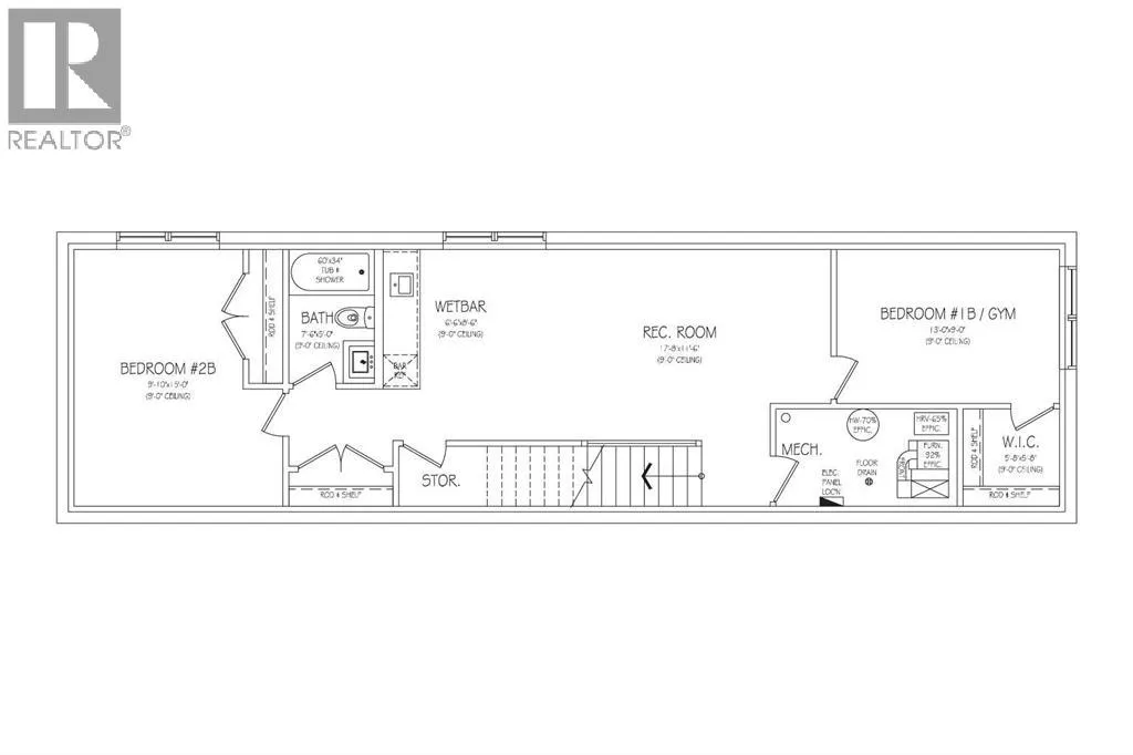
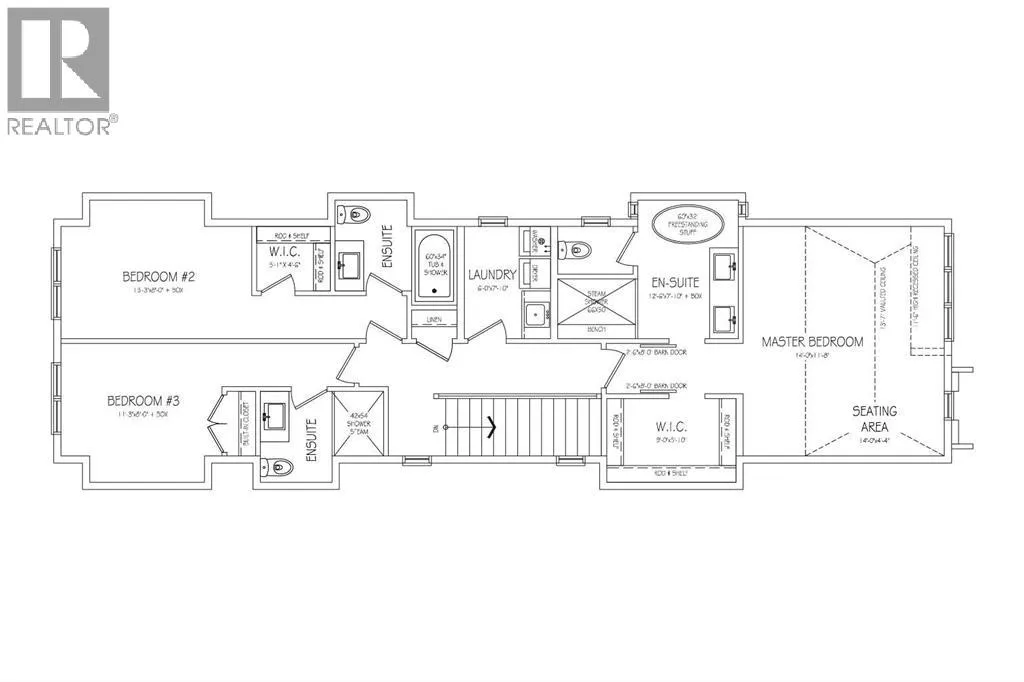
COMING THIS SUMMER TO WEST HILLHURST! Surrounded by parks, pathways, and vibrant Kensington amenities – you won’t want to miss this PREMIUM LUXURY DETACHED home Complete w/ 4-BEDS (optional gym in basement), LARGE BACKYARD, high-end finishes, & luxury upgrades including engineered hardwood flooring, 10’ ceilings, & custom detailing throughout.The open-concept main floor features a HOME OFFICE with views into the main living/dining areas and an impressive, upscale kitchen. Offering custom-built cabinetry, a large central island, a flush eating bar, premium stainless-steel appliances, large pantry & a built-in custom range hood. The spacious living room enjoys an inset gas fireplace w/ tile surround & built-in cabinetry w/ large sliding glass doors that take you out to the FULLY LANDSCAPED backyard. A side mudroom with a custom closet keeps your family organized & a gorgeous powder room finishes off the main floor.The second level hosts the primary suite featuring a vaulted ceiling, a large walk-in closet, & a 5-pc ensuite w/ dual vanity, heated floors, large glass enclosed shower, a free-standing soaker tub, & a private water closet. Two additional bedrooms have custom closets & their own ENSUITE w/ quartz counters, an under-mount sink, & walk-in shower.The fully finished basement makes the perfect entertainment space with a large family room, wet bar w/ sink, 4th bedroom w/ a walk-in closet & easy access to a 4pc bathroom. A large HOME GYM area or optional 5th bedroom nicely completes this level.West Hillhurst is a highly sought-after inner-city community known for its tree-lined streets, proximity to the Bow River pathways, and easy access to downtown. Enjoy walking or biking along the river, visiting nearby parks and playgrounds, or spending time in the popular Kensington district with its boutique shops, cafés, and restaurants. The community also features the West Hillhurst Community Association with fitness facilities, programs, and year-round activities .Commuting is effortless with quick access to Crowchild Trail, Memorial Drive, and downtown Calgary just minutes away. This is the perfect house and community to call home!Currently under construction with an estimated completion mid July to early August, there is still time to customize the finishes in this elegant upscale home! (id:27476)

Property Highlights

MLS® Number
A2295824
Type
Single Family
Community Name
West Hillhurst
Ownership Type
Freehold
Land Size
301.5 m2|0-4,050 sqft
Parking Space Total
2

Building

Building Type
House
Storeys
2.00
Square Footage
2189 sqft
Bathrooms Total
5
Bedrooms Above Ground
3
Bedrooms Total
5
Amenities
Park, Playground, Schools, Shopping
Exterior Finish
Concrete, Stucco
Fireplace Present
Yes
Basement Type
Full (Finished)
Basement Features
Building Heating Type
Forced air
Heating Fuel
Natural gas
Building Cooling Type
None

Location

Learn more about this property
Listing provided by:
RE/MAX House of Real Estate
MLS® number:
A2295824
Agent:
Lisa Johnson
*Indicates required field
Name is required
Email is required
Please enter a valid phone number (e.g., 416-111-1111).

Street Spotlight - For sale