2305 Richmond Road Sw, Calgary, Alberta T2E 5E3

Listed for:
$1,295,000
5 beds
5 baths
Listed 3 days ago
Duplex for rent: 2305 Richmond Road Sw, Calgary, Alberta T2E 5E3

View all 9 photos

About

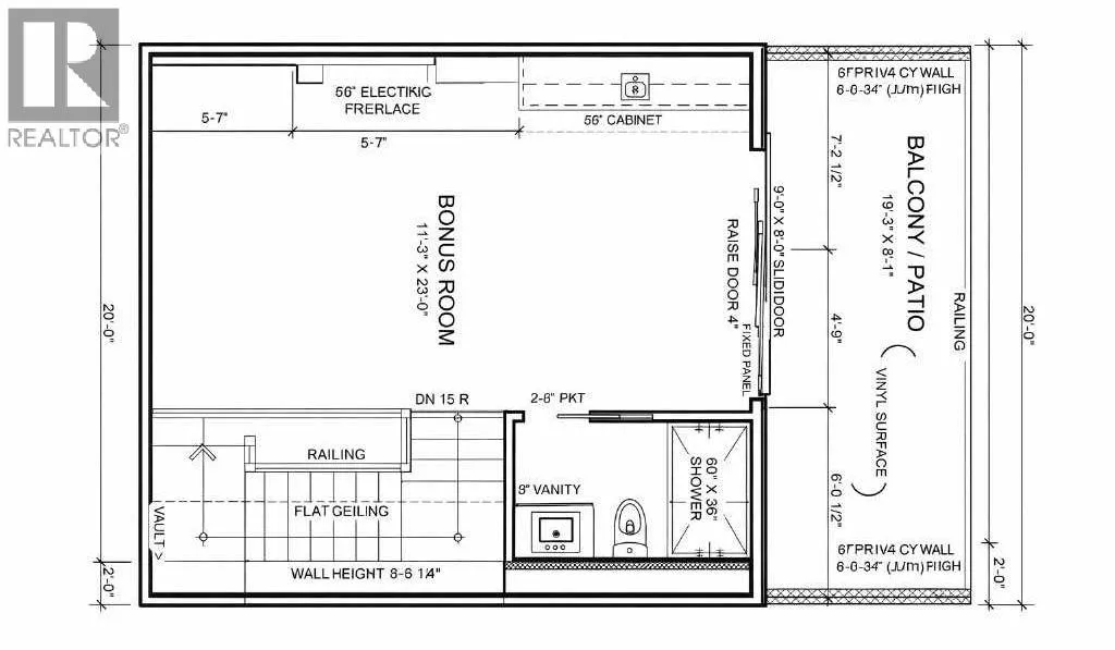
This UNDER CONSTRUCTION 3 STOREY home will be ready in August and offers refined design, elevated living & a location that blends luxury with city convenience. This exceptional semi-detached residence offers over four thoughtfully developed levels, including a fully finished legal suite, and is perfectly positioned BAKING ONTO A PARK with a sun-filled WEST-facing backyard—delivering both tranquility and rare inner-city views.Situated in the highly sought-after community of RICHMOND, this home places you moments from Calgary’s most desirable amenities while offering the serenity of park-side living. Enjoy direct access to green space, walking paths, and playgrounds just beyond your backyard, with effortless connectivity to downtown, top-rated schools, boutique shopping, and vibrant dining along 17TH AVE SW and MARDA LOOP.Step inside and experience a refined, modern interior where clean lines and intentional design create a sense of understated luxury. The welcoming FOYER opens to a bright dining room perfect for family gatherings or entertaining. A discreetly tucked away POWDER ROOM adds convenience without compromising flow.At the heart of the home, the main living area unfolds with seamless elegance. The kitchen is both functional and striking, anchored by an oversized island and complemented by a generous pantry—perfect for everyday living or elevated entertaining. The adjoining family room is warm and inviting, centred around a fireplace with custom built-in cabinetry, while expansive rear windows frame picturesque park views and fill the space with natural light.Step outside to the WEST-FACING BACKYARD, where a private patio is an ideal setting for sunset evenings, summer gatherings, or quiet morning coffee surrounded by greenery. A thoughtfully designed mud room with built-in storage ensures effortless organization.The second level is designed for comfort and retreat. The PRIMARY SUITE offers a serene escape with vaulted ceilings, a spacious walk-in c loset, and a spa-inspired ensuite featuring a freestanding tub and separate shower. Two additional bedrooms, each with walk-in closets, a full bathroom, and convenient upper laundry complete this level.Elevating the home even further, the THIRD LEVEL LOFT provides a truly standout space. This open-concept retreat features a built-in bar, a stylish 3-piece bathroom, and access to a large, sunny west-facing balcony overlooking the park. Whether used as an entertainment lounge, executive workspace, or private getaway, this level captures stunning elevated park views and unforgettable sunsets.Downstairs, the fully developed LEGAL BASEMENT SUITE offers exceptional flexibility and income potential. Complete with its own kitchen, spacious rec room, two bedrooms, bathroom & laundry, it’s perfectly suited for extended family, guests, or rental opportunities.Living in Richmond means enjoying a quiet, established inner-city neighbourhood with unparalleled access to Calgary’s best outdoor and urban amenities. (id:27476)

Property Highlights

MLS® Number
A2293408
Type
Single Family
Community Name
Richmond
Ownership Type
Freehold
Land Size
269.5 m2|0-4,050 sqft
Parking Space Total
2

Building

Building Type
Duplex
Storeys
3.00
Square Footage
2349 sqft
Bathrooms Total
5
Bedrooms Above Ground
3
Bedrooms Total
5
Amenities
Park, Playground, Recreation Nearby, Schools, Shopping
Exterior Finish
Composite Siding, Concrete
Fireplace Present
Yes
Basement Type
Full (Finished)
Basement Features
Separate entrance, Suite
Building Heating Type
Forced air
Heating Fuel
Natural gas
Building Cooling Type
None

Location

Learn more about this property
Listing provided by:
RE/MAX House of Real Estate
MLS® number:
A2293408
Agent:
Lisa Johnson
*Indicates required field
Name is required
Email is required
Please enter a valid phone number (e.g., 416-111-1111).