7107 54 Avenue Nw, Calgary, Alberta T3B 3P5

Listed for:
$829,900
6 beds
4 baths
Listed 50 days ago
House for rent: 7107 54 Avenue Nw, Calgary, Alberta T3B 3P5

View all 49 photos

About

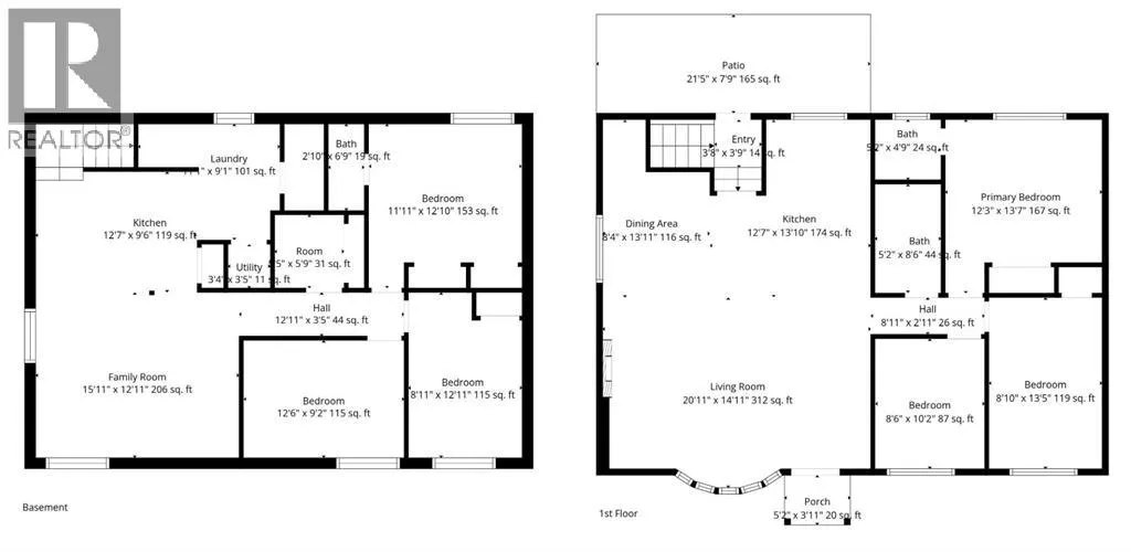
RARE FIND GREAT VALUE. Perfectly positioned in sought-after Silver Springs, this extensively renovated home introduces a flexible 6-BEDROOM layout with a beautifully finished illegal SUITE, ideal for multi-generational living or added versatility. NORTH-SOUTH facing. Step inside to experience a bright, open-concept main level where luxury vinyl plank flooring and LED lighting establish a clean, modern aesthetic while maintaining everyday durability. Built-in storage at the front entry keeps daily routines organized while creating an immediate sense of intention and design. Gather around the gas fireplace in the living room as expansive windows draw in natural light throughout the day, enhancing both comfort and atmosphere. Entertain with ease as clear sightlines connect the dining area, where designer lighting elevates both casual meals and special occasions. Stay productive at the integrated workstation that adapts seamlessly to work or study needs without sacrificing living space. Effortlessly prepare meals in the thoughtfully designed kitchen showcasing quartz countertops, full-height cabinetry, high-end appliances including a gas stove, and a large island that anchors conversation and connection. Retreat at the end of the day to a private primary bedroom featuring its own stylish 2-piece ensuite, while two additional bedrooms and a well-appointed 4-piece bathroom complete the main level. Head downstairs through a SEPARATE ENTRANCE to discover a fully self-contained lower level equipped with its own laundry, ensuring privacy and independence. Enjoy a modern open layout that mirrors the quality and finish of the upper level, complemented by a spacious living area and a full kitchen finished with quartz surfaces, stainless steel appliances and a central island. Rest comfortably in three additional bedrooms with egress windows that enhance both safety and natural light, including a primary space with its own 2-piece ensuite, while a 4-piece bathroom serves the rem ainder of the level. Benefit from MAJOR UPGRADES COMPLETED IN 2024 including a furnace, hot water tank, roof shingles, and windows, delivering peace of mind for years ahead. Spend time outdoors in the expansive backyard where mature trees create a private setting, a paver stone patio encourages outdoor dining and relaxation and generous lawn space supports play or gardening. Appreciate the quiet location just steps from pathways leading to the Bow River, where nature, recreation and scenic views become part of daily life. It is a short drive to nearby Winsport, Silver Springs golf and country club, U of C, Market Mall and the Foothills Hospital. Don't miss out on the opportunity (id:27476)

Property Highlights

MLS® Number
A2298706
Type
Single Family
Community Name
Silver Springs
Ownership Type
Freehold
Land Size
490 m2|4,051 - 7,250 sqft
Parking Space Total
2

Building

Building Type
House
Storeys
1.00
Square Footage
1144 sqft
Bathrooms Total
4
Bedrooms Above Ground
3
Bedrooms Total
6
Amenities
Park, Playground, Schools, Shopping
Exterior Finish
Brick, Vinyl siding
Fireplace Present
Yes
Basement Type
Full (Finished)
Basement Features
Separate entrance, Suite
Building Heating Type
Forced air
Heating Fuel
Natural gas
Building Cooling Type
None

Location

Learn more about this property
Listing provided by:
Royal LePage Solutions
MLS® number:
A2298706
Agent:
Jeffery Rombough
*Indicates required field
Name is required
Email is required
Please enter a valid phone number (e.g., 416-111-1111).

Street Spotlight - For sale