1444 40 Street Sw, Calgary, Alberta T3C 1W7

Listed for:
$775,000
4 beds
4 baths
Listed 6 days ago
Duplex for rent: 1444 40 Street Sw, Calgary, Alberta T3C 1W7

View all 40 photos

About

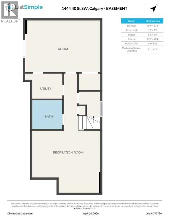
*Open House: Sunday, April 26th 1:00-3:00pm* PRIME INNER-CITY OPPORTUNITY | ROSSCARROCKWelcome to this well-maintained semi-detached home offering over 1,840 sq ft above grade and 2,600+ sq ft of total developed living space in the desirable community of Rosscarrock. Featuring 3 bedrooms up + 1 down and multiple living areas, this property is ideal for families, investors, or those seeking inner-city convenience.The main floor offers 9’ ceilings, a bright and functional layout, and a cozy gas fireplace. The kitchen features ample cabinetry and flows seamlessly into the dining and living areas, perfect for everyday living and entertaining. Upstairs, all bedrooms include walk-in closets, with a spacious primary retreat showcasing a 5-piece ensuite.Additional highlights include wired-in sound throughout, skylight, projector and screen setup, HRV system, and central vacuum. The fully developed basement provides additional living space, a bedroom, and bathroom flexibility.Outside, enjoy a private yard, rear deck with projector setup and gas fireplace, and a double detached garage. Ideally located just minutes to downtown, with quick access to shopping, schools, transit, and major routes.A solid inner-city property with excellent potential, adjacent to a corner lot, and offering flexible possession. (id:27476)

Property Highlights

MLS® Number
A2303492
Type
Single Family
Community Name
Rosscarrock
Ownership Type
Freehold
Land Size
280 m2|0-4,050 sqft
Parking Space Total
2

Building

Building Type
Duplex
Storeys
2.00
Square Footage
1846 sqft
Bathrooms Total
4
Bedrooms Above Ground
3
Bedrooms Total
4
Amenities
Park, Playground, Recreation Nearby, Shopping
Exterior Finish
Vinyl siding
Fireplace Present
Yes
Basement Type
Full (Finished)
Basement Features
Building Heating Type
Forced air
Heating Fuel
Natural gas
Building Cooling Type
None

Location

Learn more about this property
Listing provided by:
CIR Realty
MLS® number:
A2303492
Agent:
Glen Godlonton
*Indicates required field
Name is required
Email is required
Please enter a valid phone number (e.g., 416-111-1111).

Street Spotlight - For sale