5403 48 Avenue, Camrose, Alberta T4V 0J6

Listed for:
$22
0 beds
0 baths
Listed 60 days ago
Commercial Mix for rent: 5403 48 Avenue, Camrose, Alberta T4V 0J6

View all 17 photos

Learn more about this property
Listing provided by:
CIR Realty
MLS® number:
A2080115
Agent:
Cole Walker
*Indicates required field
Name is required
Email is required
Please enter a valid phone number (e.g., 416-111-1111).

About

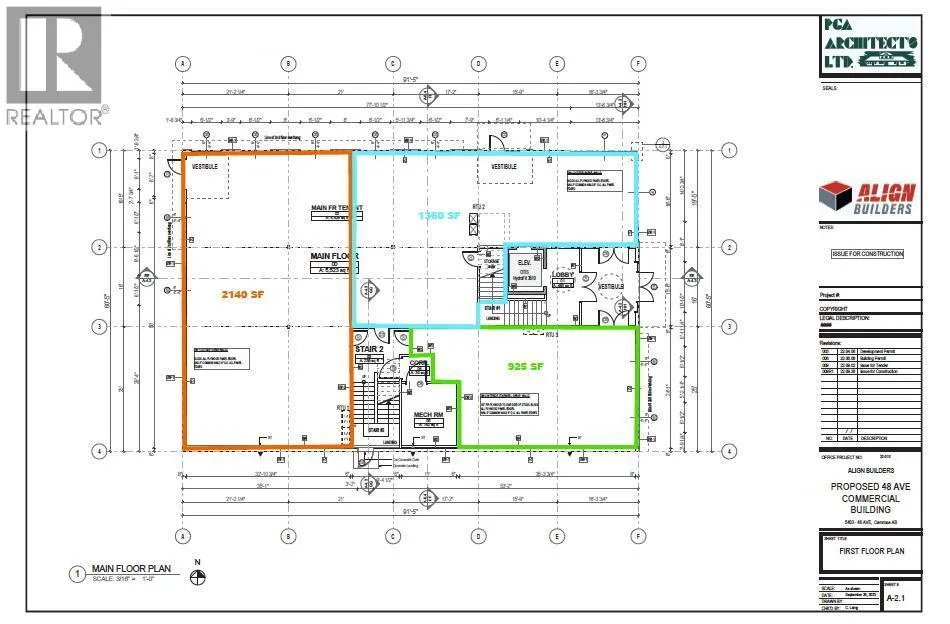
Join current tenants Mirror Lake Dental and Camrose Pharmacy. Excellent opportunity for a number of businesses that could include a medical professional, accountant , law firm and the list goes on. 1360 sq ft and 2140 sq ft available. Or combine them both to have a total of 3500 sq ft. This immaculate new building with excellent high visibility exposure could be ideal for your business. Situated in the heart of the city and directly across from Camrose's iconic Mirror Lake. Built by local builders and a location that truly doesn't get any better. Asking lease rates are $22.50/sqft NNN. (id:27476)

Property Highlights

MLS® Number
A2080115
Type
Other
Community Name
Downtown Camrose
Land Size
Unknown

Building

Building Type
Commercial Mix
Square Footage
3500 sqft
Fireplace Present
No
Basement Type
Basement Features
Building Heating Type
Heating Fuel
Building Cooling Type

Location