4917 47 St, Camrose, Alberta T4V 1J9

Listed for:
$1,100,000
0 beds
0 baths
Listed 6 days ago
4917  47 St, Camrose, Alberta T4V 1J9

View all 21 photos

About

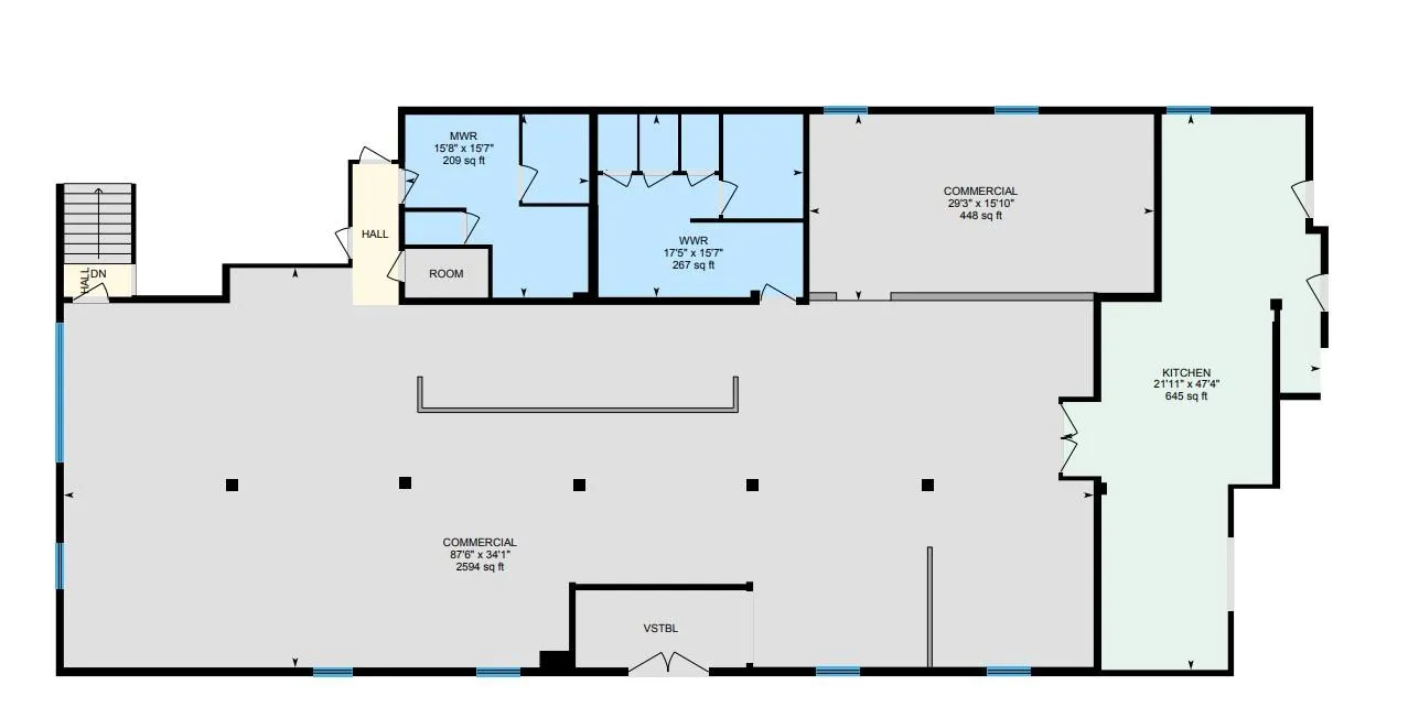
Prime Value-Add Commercial Investment Opportunity – Camrose, AlbertaCAPITALIZATION RATE 7% - 14% WITH ADDITIONAL SPACEAn exceptional value-add commercial investment located in the heart of Camrose, Alberta, featuring a well-maintained Two-storey building anchored by The Marrow Restaurant & Lounge, a highly regarded upscale dining establishment and strong destination tenant.The property is currently leased on a triple-net basis and produces a solid 7% capitalization rate with the main floor tenant in place, offering immediate and stable cash flow.The true upside lies in the development potential of the additional two floors, consisting of approximately 6,000 square feet across the second floor and basement. These levels are well suited for a variety of uses (office, professional services, retail, or complementary hospitality concepts), providing a clear path for a new owner to significantly increase income. For Example:Existing Lease $13 a sq ft x 6000 sq ft = $78,000 base rent divided by $1.1 Million for building = 7% Cap RateDevelop the following spaceTop Floor @ $8.00 sq ft x 6000 sq ft = $48,000Basement @ $6.00 sq ft x 6000 sq ft = $36,000Total potential revenue base rent $162,000 = 14.7% Capitalization rate.Lots of power on site for Data Centers 800 AMP & 600 Volt.With full development and lease-up of the additional space, there is a strong opportunity to substantially increase net operating income and potentially double the capitalization rate, making this an ideal acquisition for investors seeking both income stability and long-term growth.Highlights:Two-storey commercial building with Full Basement Ceiling Height 94Anchor tenant: The Marrow Restaurant & Lounge (upscale, well-established)Triple-net lease with current 7% cap rateSignificant value-add and income-growth potentialPrime Camrose locationA rare opportunity to acquire a stabilized asset with immediate cash flow and exceptional upside. I have attached as well a business plan for a Banquet Facility in the second story. (id:27476)

Property Highlights

MLS® Number
44106092
Type
Retail
Land Size
12445.1878 sqft|under 1/2 acre
Parking Space Total
16

Building

Square Footage
18000 sqft
Fireplace Present
No
Basement Type
Basement Features
Building Heating Type
Heating Fuel
Building Cooling Type

Location

Learn more about this property
Listing provided by:
Coldwell Banker Mountain Central
MLS® number:
44106092
Agent:
Wesley B. Henderson
*Indicates required field
Name is required
Email is required
Please enter a valid phone number (e.g., 416-111-1111).