101 Waterford Passage, Chestermere, Alberta T1X 3B4

Listed for:
$935,000
5 beds
4 baths
Listed 29 days ago
House for rent: 101 Waterford Passage, Chestermere, Alberta T1X 3B4

View all 4 photos

Learn more about this property
Listing provided by:
Real Broker
MLS® number:
A2263541
Agent:
Jim Sidhu
*Indicates required field
Name is required
Email is required
Please enter a valid phone number (e.g., 416-111-1111).

About

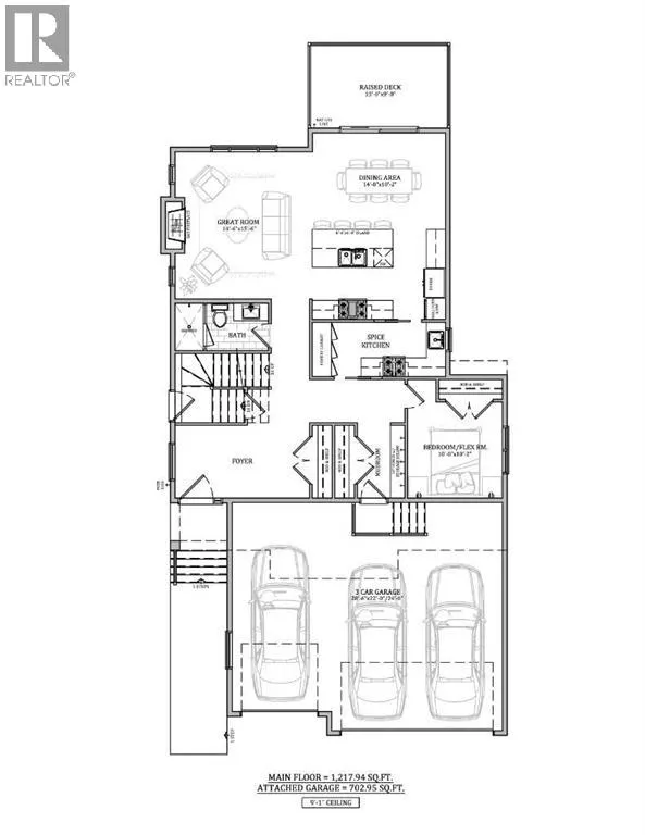
***Limited-Time Offer! Get $15,000 in upgrades when you submit a firm offer by November 30, 2025 — make your dream home even better at no extra cost!***Welcome to this stunning and thoughtfully designed home, located in the highly sought-after Waterford community of Chestermere. Situated on a wide corner lot, this residence offers over 2,500 sq ft of beautifully appointed living space, perfect for growing families or multi-generational living. Step through the grand entry into a bright and spacious main floor that features a full bedroom and 3-piece bathroom ideal for guests or extended family. The heart of the home is the open-concept kitchen, complemented by a large, fully enclosed spice kitchen with direct access from both the mudroom and main kitchen, providing the ultimate convenience for culinary enthusiasts. Upstairs, you’ll find four well-sized bedrooms, including a luxurious primary suite with a spa-inspired ensuite and walk-in closet, as well as a second master suite with its own private ensuite. A large bonus room and an upstairs laundry room add practicality and comfort to this upper level. The unfinished basement offers exceptional potential, with a separate side entrance that allows for the development of a legal basement suite or custom space tailored to your needs. Located just minutes from schools, parks, shopping, and all amenities, this is an incredible opportunity to own a versatile and spacious home in one of Chestermere’s fastest-growing neighborhoods. (id:27476)

Property Highlights

MLS® Number
A2263541
Type
Single Family
Community Name
Waterford
Ownership Type
Freehold
Land Size
6012.93 sqft|4,051 - 7,250 sqft
Parking Space Total
6

Building

Building Type
House
Storeys
2.00
Square Footage
2587 sqft
Bathrooms Total
4
Bedrooms Above Ground
5
Bedrooms Total
5
Amenities
Park, Schools, Shopping
Exterior Finish
Composite Siding, Concrete
Fireplace Present
Yes
Basement Type
Full (Unfinished)
Basement Features
Separate entrance
Building Heating Type
Forced air
Heating Fuel
Building Cooling Type
None

Location

Street Spotlight - For sale